Omschrijving

LIEF VRIJSTAAND HUISJE OP ZOEK NAAR EEN HANDIGE KLUSSER!

Deze karakteristieke woning met een leuke mansardedak ligt tegen het centrum van Pijnacker, beschikt over een garage en staat op 182m² eigen grond. Het charmante huisje ademt de sfeer van oudere tijden uit, maar is op basis van hedendaagse comfort wel aan een grondige renovatie, isolatie en verduurzaming toe. Alles dient gemoderniseerd te worden.

Begane grond:…

Lees meer

Kenmerken

  • Status Verkocht
  • Vraagprijs € 400.000,- kosten koper
  • Woonoppervlakte ca. 72 m2
  • Aantal slaapkamers 2
  • Bouwjaar 1935
Meer kenmerken
Heb je vragen? Of wil je even binnenkijken?

Neem vrijblijvend contact met ons op

De Laen
Download de brochure

Bekijk op het gemak de brochure van deze woning

Downloaden

Omschrijving

LIEF VRIJSTAAND HUISJE OP ZOEK NAAR EEN HANDIGE KLUSSER!

Deze karakteristieke woning met een leuke mansardedak ligt tegen het centrum van Pijnacker, beschikt over een garage en staat op 182m² eigen grond. Het charmante huisje ademt de sfeer van oudere tijden uit, maar is op basis van hedendaagse comfort wel aan een grondige renovatie, isolatie en verduurzaming toe. Alles dient gemoderniseerd te worden.

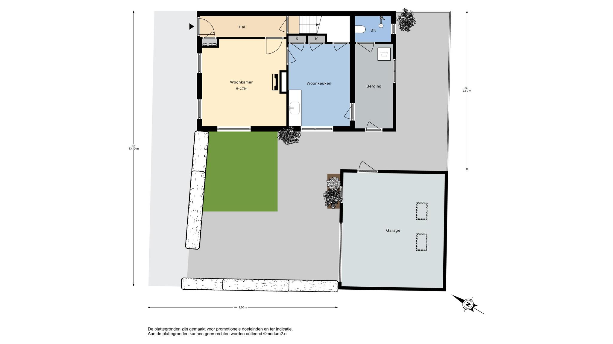
Begane grond: Hal/gang met oude groepenkast, trapopgang naar slaapverdieping. Woonkamer aan de voorzijde, grote ramen, verwarming door middel van gaskachel. Keuken aan achterzijde, eenvoudig keukenblok, kast onder de trap. Bijkeuken/berging met combinatie van eenvoudige douche en toilet. Tuin aan achter- en zijzijde van het perceel. Grote garage.

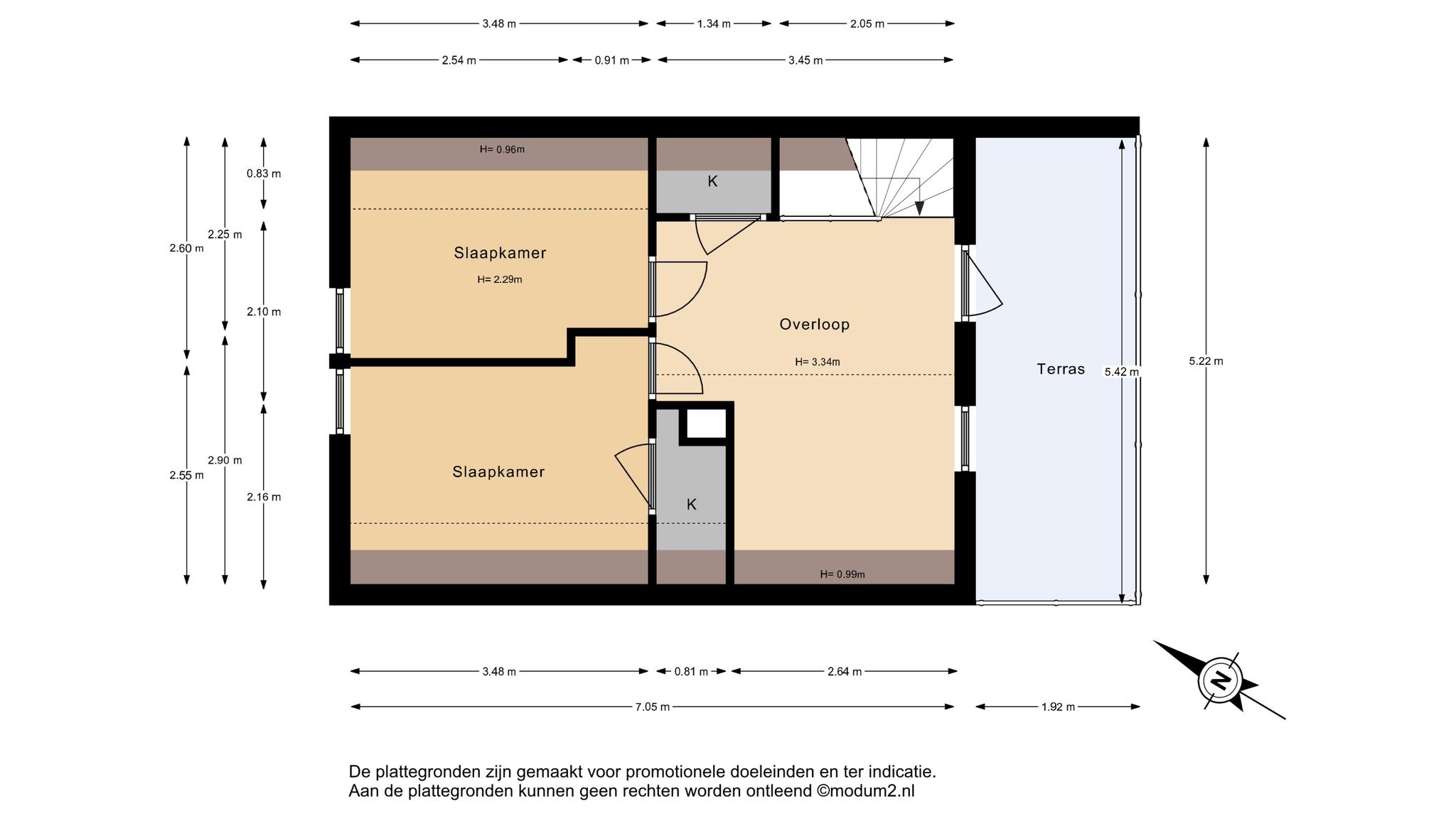
Slaapverdieping: Open ruimte en aan voorzijde 2 slaapkamers. Leuk vooruitzicht om een nieuwe indeling te plannen met het realiseren van een badkamer op de slaapverdieping.

Bijzonderheden:
– Vrijstaand wonen dichtbij het centrum
– Karakteristieke woning
– Geheel te moderniseren
– BAG bouwjaar 1935
– Recht van overpad van toepassing
– Geen NVM vragenlijst en lijst van zaken aanwezig
– Asbest- en as if where is-clausules zijn van toepassing

Oplevering kan snel, in overleg.

Interesse in deze woning? Schakel direct uw eigen NVM-aankoopmakelaar in. Uw NVM-aankoopmakelaar komt op voor uw belang en bespaart u tijd, geld en zorgen.

Heb je vragen? Of wil je even binnenkijken?

Neem vrijblijvend contact met ons op

De Laen
Download de brochure

Bekijk op het gemak de brochure van deze woning

Downloaden

Kenmerken

Overdracht

  • Status Verkocht
  • Vraagprijs € 400.000,- Kosten koper
  • Aanvaarding In overleg

Bouwvorm & Onderhoud

  • Soort woonhuis Vrijstaande woning
  • Soort bouw Bestaande bouw
  • Bouwjaar 1935
  • Soort dak Mansarde dak
  • Onderhoud binnen Matig
  • Onderhoud buiten Matig tot redelijk

Oppervlakten & inhoud

  • Gebruiksoppervlakte wonen ca. 72 m2
  • Gebouwgebonden buitenruimte ca. 10m2
  • Externe bergruimte ca. 26m2
  • Overige inpandige ruimte ca. 7m2
  • Inhoud ca. 304m3
  • Perceeloppervlakte ca. 182m2

Indeling

  • Aantal kamers 3 kamers
  • Aantal slaapkamers 2
  • Aantal badkamers
  • Badkamervoorzieningen
  • Aantal woonlagen 3 woonlagen
  • Voorzieningen

Energie & Installatie

  • Energielabel G
  • Isolatie Geen isolatie
  • Verwarming Gaskachels
  • Warm water Geiser huur
  • C.v.-ketel type
  • C.v.-ketel bouwjaar
  • Eigendom

Tuin & Buitenruimte

  • Ligging Beschutte ligging
  • Hoofdtuin Voortuin
  • Oppervlakte hoofdtuin ca. 50m2
  • Ligging hoofdtuin West
  • Achterom
  • Kwaliteit tuin Normaal

Bergruimte

  • Schuur / berging
  • Aantal schuren / bergingen
  • Voorzieningen

Parkeergelegenheid

  • Parkeerfaciliteiten Openbaar parkeren, op eigen terrein
  • Garage Vrijstaand steen

Wijk statistieken

Burgerlijke staat
  • Gehuwd
  • Ongehuwd
  • Gescheiden
  • Verweduwd
Leeftijd in gemeente
0 - 15 jaar
15 - 25 jaar
25-45 jaar
45 - 65 jaar
65+ jaar
  • 0 - 15 jaar
  • 15 - 25 jaar
  • 25 - 45 jaar
  • 45 - 65 jaar
  • 65+ jaar
Gezinnen met kinderen
Met kinderen
Zonder kinderen
Alleenstaand
  • Met kinderen
  • Zonder kinderen
  • Alleenstaand
Leeftijd buurtbewoners
0 - 15 jaar
15 - 25 jaar
25-45 jaar
45 - 65 jaar
65+ jaar
  • 0 - 15 jaar
  • 15 - 25 jaar
  • 25 - 45 jaar
  • 45 - 65 jaar
  • 65+ jaar
Bewoners in de straat
Man
Vrouw
  • Man
  • Vrouw

In de buurt

    Documenten

      Je nieuwe huis vinden we samen

      Neem vrijblijvend contact met ons op

      De Laen