Omschrijving

Wonen in pure luxe! Een werkelijk prachtige 2-onder-1 kap woning in de mooie woonwijk Ackerswoude. Deze woning is tip top verzorgd, voorzien van alle gemakken en luxe. Uitgebouwde woonkamer, 2 badkamers, een luxe keuken en parkeren op eigen terrein zijn slechts enkele pluspunten. De rest moet je ervaren wanneer je de woning zelf bezoekt! In de wijk Ackerswoude is een basisschool, kinderopvang en gezondheidscentrum gevestigd. Daarnaast is…

Lees meer

Kenmerken

  • Status Verkocht
  • Vraagprijs € 980.000,- kosten koper
  • Woonoppervlakte ca. 184 m2
  • Aantal slaapkamers 5
  • Bouwjaar 2021
Meer kenmerken
Heb je vragen? Of wil je even binnenkijken?

Neem vrijblijvend contact met ons op

De Laen
Download de brochure

Bekijk op het gemak de brochure van deze woning

Downloaden

Omschrijving

Wonen in pure luxe! Een werkelijk prachtige 2-onder-1 kap woning in de mooie woonwijk Ackerswoude. Deze woning is tip top verzorgd, voorzien van alle gemakken en luxe. Uitgebouwde woonkamer, 2 badkamers, een luxe keuken en parkeren op eigen terrein zijn slechts enkele pluspunten. De rest moet je ervaren wanneer je de woning zelf bezoekt! In de wijk Ackerswoude is een basisschool, kinderopvang en gezondheidscentrum gevestigd. Daarnaast is het winkelcentrum Ackershof en de metro op loopafstand te bereiken. Heel veel faciliteiten binnen handbereik dus!

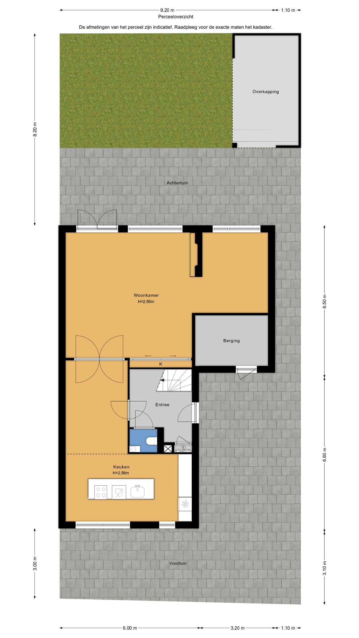
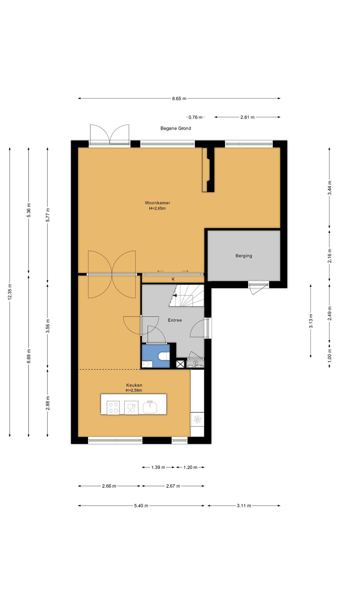
Hal: hal met toilet, meterkast en trapopgang.

Woonkamer: grote woonkamer met uitzicht op de tuin. De woonkamer wordt gesierd door een prachtige wandkast, een gashaard en separate tv-hoek afgeschermd met mooie stalen deuren. De complete begane grond is v.v. een visgraat pvc vloer.

Keuken: aan de voorzijde een ruime keuken met kookeiland. De keuken is voorzien van alle inbouwapparatuur van Siemens. Ruimte voor een grote eethoek.

Tuin: leuk aangelegde tuin met verhoogd terras en terrasoverkapping. De tuin is modern aangelegd. Tuin bereikbaar via het zijpad naast de garage. Aan de voorzijde een voortuin en ruimte voor 2 auto’s op eigen terrein.

Slaapkamers 1e etage: aan de voorzijde een slaapkamer met inloopkast. Aan de achterzijde 2 slaapkamers waarvan 1 in gebruik als werkkamer en de ander als wellness – kamer. Ook op deze verdieping compleet een pvc vloer.

Badkamer & toilet: luxe badkamer met inloopdouche, ligbad en wastafelmeubel met kranen uitgevoerd in het prachtige gun-metal. Het toilet is separaat vanaf de overloop bereikbaar.

2e etage: op deze etage 2 grote slaapkamers met dakramen en de 2e badkamer. De badkamer is v.v. een inloopdouche en wastafelmeubel. Aparte ruimte met aansluiting voor de wasapparatuur en de c.v.-ketel.

Bijzonderheden:

– Hoogwaardige afwerking
– 8 zonnepanelen
– Alles domotica gestuurd
– Overal kunststof kozijnen
– 5 slaapkamers
– Kosten Vve mandelig terrein € 18,64 per maand.

Oplevering: in onderling overleg

Heb je vragen? Of wil je even binnenkijken?

Neem vrijblijvend contact met ons op

De Laen
Download de brochure

Bekijk op het gemak de brochure van deze woning

Downloaden

Kenmerken

Overdracht

  • Status Verkocht
  • Vraagprijs € 980.000,- Kosten koper
  • Aanvaarding In overleg

Bouwvorm & Onderhoud

  • Soort woonhuis Twee onder een kapwoning
  • Soort bouw Bestaande bouw
  • Bouwjaar 2021
  • Soort dak
  • Onderhoud binnen Goed
  • Onderhoud buiten Goed

Oppervlakten & inhoud

  • Gebruiksoppervlakte wonen ca. 184 m2
  • Gebouwgebonden buitenruimte
  • Externe bergruimte
  • Overige inpandige ruimte ca. 7m2
  • Inhoud ca. 733m3
  • Perceeloppervlakte ca. 954m2

Indeling

  • Aantal kamers 6 kamers
  • Aantal slaapkamers 5
  • Aantal badkamers 2 badkamers
  • Badkamervoorzieningen Wastafel, inloopdouche, ligbad, wastafel, inloopdouche
  • Aantal woonlagen 4 woonlagen
  • Voorzieningen Mechanische ventilatie, sauna, zonnepanelen

Energie & Installatie

  • Energielabel A+
  • Isolatie Volledig geisoleerd
  • Verwarming Cv ketel
  • Warm water Cv ketel
  • C.v.-ketel type Gas
  • C.v.-ketel bouwjaar 2021
  • Eigendom Eigendom

Tuin & Buitenruimte

  • Ligging
  • Hoofdtuin Achtertuin
  • Oppervlakte hoofdtuin ca. 75m2
  • Ligging hoofdtuin Noordoost
  • Achterom 1
  • Kwaliteit tuin Fraai aangelegd

Bergruimte

  • Schuur / berging
  • Aantal schuren / bergingen
  • Voorzieningen

Parkeergelegenheid

  • Parkeerfaciliteiten Openbaar parkeren
  • Garage Geen garage

In de buurt

    Documenten

      Je nieuwe huis vinden we samen

      Neem vrijblijvend contact met ons op

      De Laen