Omschrijving

LEVENSLOOPBESTENDIG WONEN in deze unieke eengezinswoning op loopafstand van de supermarkt en natuurgebied De Balij.

Deze prachtige tussenwoning biedt een zeldzame combinatie van gelijkvloers wonen met volop ruimte én comfort! Tijdens de bouw in 2016 is de woning volledig aangepast naar een levensloopbestendige en rolstoeltoegankelijke woning, met onder andere 2 slaapkamers (3e is eenvoudig te realiseren) en 2 badkamers.
De…

Lees meer

Kenmerken

  • Status Verkocht
  • Vraagprijs € 510.000,- kosten koper
  • Woonoppervlakte ca. 122 m2
  • Aantal slaapkamers 2
  • Bouwjaar 2016
Meer kenmerken
Heb je vragen? Of wil je even binnenkijken?

Neem vrijblijvend contact met ons op

De Laen
Download de brochure

Bekijk op het gemak de brochure van deze woning

Downloaden

Omschrijving

LEVENSLOOPBESTENDIG WONEN in deze unieke eengezinswoning op loopafstand van de supermarkt en natuurgebied De Balij.

Deze prachtige tussenwoning biedt een zeldzame combinatie van gelijkvloers wonen met volop ruimte én comfort! Tijdens de bouw in 2016 is de woning volledig aangepast naar een levensloopbestendige en rolstoeltoegankelijke woning, met onder andere 2 slaapkamers (3e is eenvoudig te realiseren) en 2 badkamers.
De woning is volledig geïsoleerd en energiezuinig dankzij 9 zonnepanelen en een airco.

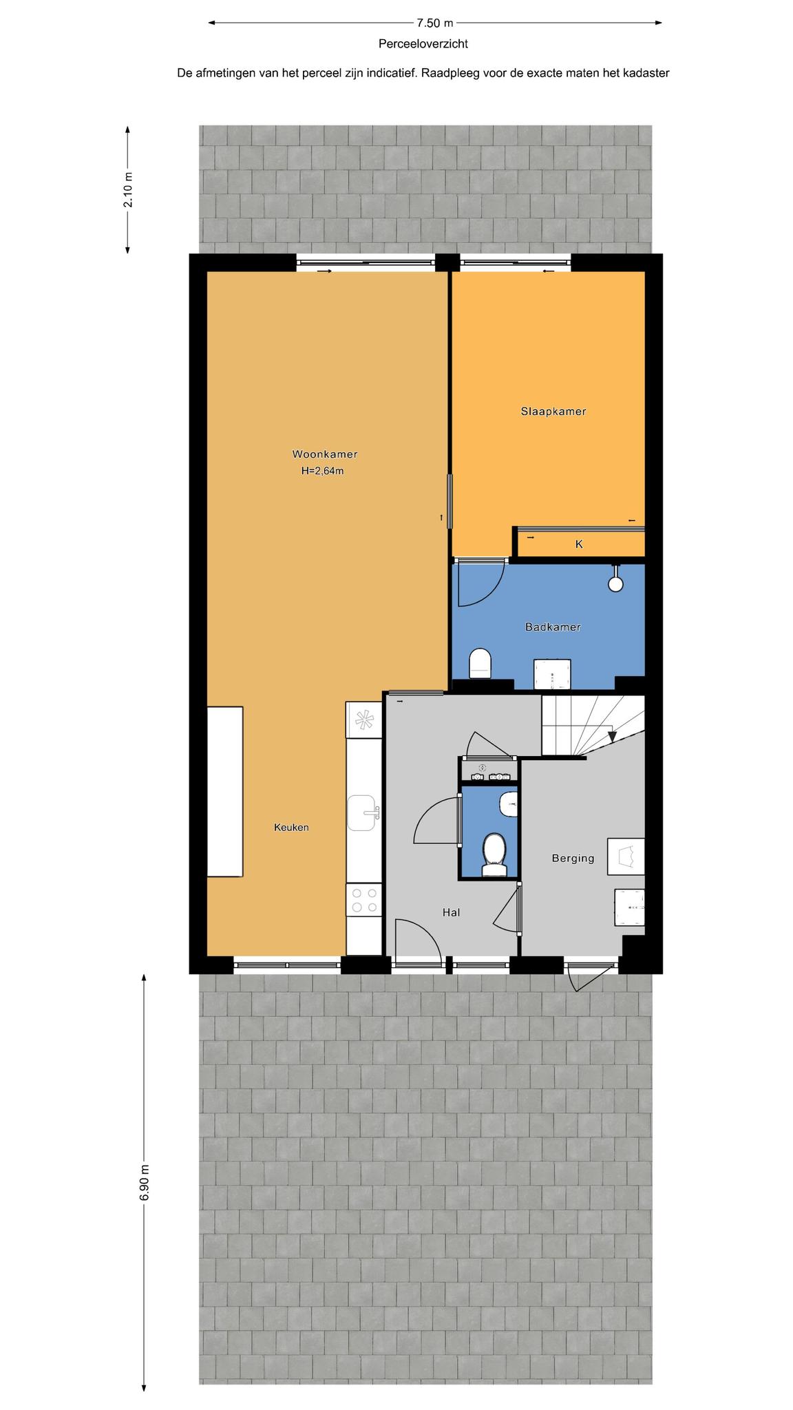
Indeling
Begane grond:
Parkeer de auto op eigen terrein en kom binnen. Entree hal met toiletruimte, meterkast en trapopgang. Bij binnenkomst valt direct de grote raampartijen met prettig veel lichtinval op. De moderne open keuken is rolstoelvriendelijk en voorzien van divers inbouwapparatuur, te weten een inbouw koelkast, vriezer, oven en een inductiekookplaat. Vanuit de woonkamer, voorzien van een airco en een grote schuifpui naar de achtertuin, geniet u van een prettig binnen-buitengevoel.

Op de begane grond bevindt zich een royale slaapkamer, wat de woning uitstekend geschikt maakt voor gelijkvloers wonen. Ook de slaapkamer geniet van een grote schuifpui richting de achtertuin.
De moderne badkamer is voorzien van een inloopdouche, wastafel en toilet.
Ideaal is de inpandige berging/wasruimte, hier bevindt zich de wasmachine aansluiting. Deze berging heeft ook directe toegang naar de voortuin.

Tuin:
De woning is voorzien van een ruime voortuin, welke sfeervol is ingericht met sierbestrating, veel groen en een gezellig zithoek. Met een ligging op het noordwesten kunt u tot laat op de dag genieten van de zon.
Vanuit zowel de woonkamer als de slaapkamer is de achtertuin toegankelijk. De achtertuin is eveneens keurig afgewerkt, met sierbestrating en een sfeervolle pergola. Geniet met een ligging op het zuidoosten van de ochtend en middag zon in deze fijne tuin.

1e verdieping:
Deze verdieping biedt volop ruimte met een grote slaapkamer, die eenvoudig op te delen is in twee kamers. De 2e badkamer is keurig afgewerkt, compleet met ligbad, wastafel en toilet. Vanuit de overloop is de berging toegankelijk. Hier zijn alle installaties keurig weggewerkt en is er voldoende opbergruimte.

Bijzonderheden:
– Levensloopbestendig en rolstoeltoegankelijk;
– Grote raampartijen met prettig lichtinval;
– Slaapkamer en badkamer op de begane grond;
– Extra grote slaapkamer op de 1e verdieping (eventueel op te delen);
– 2e badkamer op de 1e verdieping;
– Begane grond afgewerkt met vloerverwarming;
– Energiezuinig dankzij volledig isolatie, 9 zonnepanelen en de airco;
– Ruime voortuin met parkeergelegenheid;
– Ligging nabij het natuurgebied De Balij en voorzieningen zoals winkels, openbaar vervoer en uitvalswegen.

Deze informatie is door ons met de nodige zorgvuldigheid samengesteld. Onzerzijds wordt echter geen enkele aansprakelijkheid aanvaard voor enige onvolledigheid, onjuistheid of anderszins, dan wel de gevolgen daarvan. Alle opgegeven maten en oppervlakten zijn indicatief.

Wilt u comfortabel wonen met alle voorzieningen op de begane grond én toch genieten van extra ruimte op de 1e verdieping? Neem dan contact met ons op voor een bezichtiging en ontdek de mogelijkheden!

Heb je vragen? Of wil je even binnenkijken?

Neem vrijblijvend contact met ons op

De Laen
Download de brochure

Bekijk op het gemak de brochure van deze woning

Downloaden

Kenmerken

Overdracht

  • Status Verkocht
  • Vraagprijs € 510.000,- Kosten koper
  • Aanvaarding In overleg

Bouwvorm & Onderhoud

  • Soort woonhuis Tussenwoning
  • Soort bouw Bestaande bouw
  • Bouwjaar 2016
  • Soort dak Plat dak
  • Onderhoud binnen Goed
  • Onderhoud buiten Goed

Oppervlakten & inhoud

  • Gebruiksoppervlakte wonen ca. 122 m2
  • Gebouwgebonden buitenruimte
  • Externe bergruimte
  • Overige inpandige ruimte
  • Inhoud ca. 437m3
  • Perceeloppervlakte ca. 157m2

Indeling

  • Aantal kamers 3 kamers
  • Aantal slaapkamers 2
  • Aantal badkamers 2 badkamers
  • Badkamervoorzieningen Toilet, wastafel, inloopdouche, ligbad, toilet, wastafel
  • Aantal woonlagen 2 woonlagen
  • Voorzieningen Airconditioning, schuifpui, zonnepanelen

Energie & Installatie

  • Energielabel A
  • Isolatie Dakisolatie, muurisolatie, vloerisolatie, dubbel glas, volledig geisoleerd
  • Verwarming Cv ketel
  • Warm water Cv ketel
  • C.v.-ketel type Gas
  • C.v.-ketel bouwjaar 2016
  • Eigendom Eigendom

Tuin & Buitenruimte

  • Ligging In woonwijk
  • Hoofdtuin Voortuin
  • Oppervlakte hoofdtuin ca. 53m2
  • Ligging hoofdtuin Noordwest
  • Achterom
  • Kwaliteit tuin Fraai aangelegd

Bergruimte

  • Schuur / berging Inpandig
  • Aantal schuren / bergingen 1
  • Voorzieningen Voorzien van verwarming, voorzien van elektra, voorzien van water

Parkeergelegenheid

  • Parkeerfaciliteiten Openbaar parkeren, op eigen terrein
  • Garage Geen garage

Wijk statistieken

Burgerlijke staat
  • Gehuwd
  • Ongehuwd
  • Gescheiden
  • Verweduwd
Leeftijd in gemeente
0 - 15 jaar
15 - 25 jaar
25-45 jaar
45 - 65 jaar
65+ jaar
  • 0 - 15 jaar
  • 15 - 25 jaar
  • 25 - 45 jaar
  • 45 - 65 jaar
  • 65+ jaar
Gezinnen met kinderen
Met kinderen
Zonder kinderen
Alleenstaand
  • Met kinderen
  • Zonder kinderen
  • Alleenstaand
Leeftijd buurtbewoners
0 - 15 jaar
15 - 25 jaar
25-45 jaar
45 - 65 jaar
65+ jaar
  • 0 - 15 jaar
  • 15 - 25 jaar
  • 25 - 45 jaar
  • 45 - 65 jaar
  • 65+ jaar
Bewoners in de straat
Man
Vrouw
  • Man
  • Vrouw

Documenten

    Je nieuwe huis vinden we samen

    Neem vrijblijvend contact met ons op

    De Laen