Omschrijving

Aan de rand van de populaire wijk Emerald gelegen, ruim en goed onderhouden 3-kamer-HOEK-appartement op de derde verdieping met lift, berging en separate fietsenberging.

Aan de voorzijde van het gebouw uitzicht over groen en water, het appartement is gelegen nabij uitvalswegen, het winkelcentrum van Emerald met o.a. Albert Heijn, bakker, snackbar en doordeweeks verschillende vers-kramen bij de ingang van het winkelcentrum. En op…

Lees meer

Kenmerken

  • Status Verkocht
  • Vraagprijs € 365.000,- kosten koper
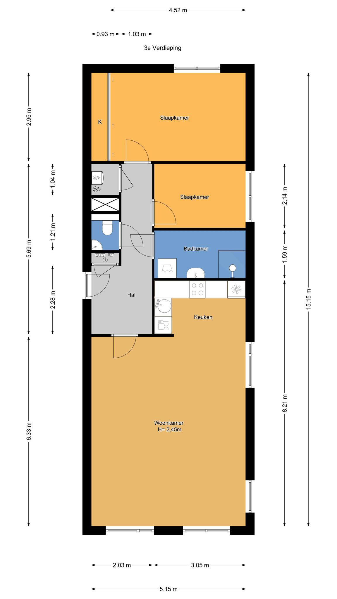
  • Woonoppervlakte ca. 78 m2
  • Aantal slaapkamers 2
  • Bouwjaar 2003
Meer kenmerken
Heb je vragen? Of wil je even binnenkijken?

Neem vrijblijvend contact met ons op

De Laen
Download de brochure

Bekijk op het gemak de brochure van deze woning

Downloaden

Omschrijving

Aan de rand van de populaire wijk Emerald gelegen, ruim en goed onderhouden 3-kamer-HOEK-appartement op de derde verdieping met lift, berging en separate fietsenberging.

Aan de voorzijde van het gebouw uitzicht over groen en water, het appartement is gelegen nabij uitvalswegen, het winkelcentrum van Emerald met o.a. Albert Heijn, bakker, snackbar en doordeweeks verschillende vers-kramen bij de ingang van het winkelcentrum. En op fiets afstand van de binnenstad van Delft en recreatiegebied “Delftse Hout”.

Ideale ligging ten opzichte van de TU-Delft, het oude centrum, treinstation Delft-Zuid, natuurgebied Delftse Hout en uitvalswegen!

Centrale entree met brievenbussen en bellentableau. Toegang tot het trappenhuis, de lift en de bergingen.

Tegenover de lift de entree/hal met toegang tot alle vertrekken. Separaat toilet, bergruimte met opstelplaats C.V. en balansventilatiesysteem. De ruime woonkamer is door de hoekligging uitgerust met veel raampartijen en heeft daardoor veel lichtinval. De open keuken is opgesteld in een hoekvorm en voorzien van een 5-pits-gaskookplaat, recirculatiekap, koel-/vriescombinatie en vaatwasser. Keuken is uitgevoerd in lichte tinten met een donkere granieten aanrechtblad. Het appartement is uitgerust met een Frans balkon. Twee ruime slaapkamers van circa 8m2 en 15m2 en een nette badkamer voorzien van een douchecabine en wastafelcombinatie. In de badkamer is tevens de mogelijkheid om een wasmachine en droger te plaatsen.

Voldoende parkeergelegenheid met 3 laadpunten voor elektrische auto’s dichtbij het appartementencomplex.

Bijzonderheden:
– Gehele appartement heeft een lichte tegelvloer;
– Frans balkon met leuk uitzicht;
– Nabij het oude centrum van Delft;
– Nabij recreatiegebied de Delftse Hout;
– Actieve VvE, bijdrage VvE € 143,48 per maand.
– Oplevering in overleg/eind november 2024.

Deze informatie is een uitnodiging tot het doen van een bod. Ondanks het feit dat deze informatie met zorg is samengesteld, kunnen er geen rechten aan worden ontleend. Van toepassing zijn de NVM voorwaarden.

Interesse in dit huis? Schakel direct uw eigen NVM-aankoopmakelaar in.
Uw NVM-aankoopmakelaar komt op voor uw belang en bespaart u tijd, geld en zorgen.

Heb je vragen? Of wil je even binnenkijken?

Neem vrijblijvend contact met ons op

De Laen
Download de brochure

Bekijk op het gemak de brochure van deze woning

Downloaden

Kenmerken

Overdracht

  • Status Verkocht
  • Vraagprijs € 365.000,- Kosten koper
  • Aanvaarding In overleg

Bouwvorm & Onderhoud

  • Soort woonhuis
  • Soort bouw Bestaande bouw
  • Bouwjaar 2003
  • Soort dak Plat dak
  • Onderhoud binnen Goed
  • Onderhoud buiten Goed

Oppervlakten & inhoud

  • Gebruiksoppervlakte wonen ca. 78 m2
  • Gebouwgebonden buitenruimte
  • Externe bergruimte ca. 5m2
  • Overige inpandige ruimte
  • Inhoud ca. 243m3
  • Perceeloppervlakte

Indeling

  • Aantal kamers 3 kamers
  • Aantal slaapkamers 2
  • Aantal badkamers 1 badkamer
  • Badkamervoorzieningen Douche, wastafelmeubel, wasmachineaansluiting
  • Aantal woonlagen 1 woonlagen
  • Voorzieningen Mechanische ventilatie, lift, frans balkon, balansventilatie

Energie & Installatie

  • Energielabel B
  • Isolatie Volledig geisoleerd
  • Verwarming Cv ketel
  • Warm water Cv ketel
  • C.v.-ketel type Gas
  • C.v.-ketel bouwjaar
  • Eigendom Eigendom

Tuin & Buitenruimte

  • Ligging Aan rustige weg, in woonwijk, beschutte ligging
  • Hoofdtuin
  • Oppervlakte hoofdtuin
  • Ligging hoofdtuin
  • Achterom
  • Kwaliteit tuin

Bergruimte

  • Schuur / berging Box
  • Aantal schuren / bergingen 1
  • Voorzieningen

Parkeergelegenheid

  • Parkeerfaciliteiten Openbaar parkeren
  • Garage Geen garage

Wijk statistieken

Burgerlijke staat
  • Gehuwd
  • Ongehuwd
  • Gescheiden
  • Verweduwd
Leeftijd in gemeente
0 - 15 jaar
15 - 25 jaar
25-45 jaar
45 - 65 jaar
65+ jaar
  • 0 - 15 jaar
  • 15 - 25 jaar
  • 25 - 45 jaar
  • 45 - 65 jaar
  • 65+ jaar
Gezinnen met kinderen
Met kinderen
Zonder kinderen
Alleenstaand
  • Met kinderen
  • Zonder kinderen
  • Alleenstaand
Leeftijd buurtbewoners
0 - 15 jaar
15 - 25 jaar
25-45 jaar
45 - 65 jaar
65+ jaar
  • 0 - 15 jaar
  • 15 - 25 jaar
  • 25 - 45 jaar
  • 45 - 65 jaar
  • 65+ jaar
Bewoners in de straat
Man
Vrouw
  • Man
  • Vrouw

Documenten

    Je nieuwe huis vinden we samen

    Neem vrijblijvend contact met ons op

    De Laen