Omschrijving

Instapklaar, strak en heerlijk licht wonen? Dit moderne appartement op de 2e etage heeft alles wat je zoekt. Denk aan een gloednieuwe keuken, 2 slaapkamers, een compleet nieuwe laminaatvloer en een zonnige woonkamer op het zuiden. Geen standaard balkon, maar wel openslaande deuren met een Frans balkon én uitzicht op het wijkpark. Extra fijn: je beschikt over een eigen parkeerplaats én een privéberging op de begane…

Lees meer

Kenmerken

  • Status Beschikbaar
  • Vraagprijs € 400.000,- kosten koper
  • Woonoppervlakte ca. 79 m2
  • Aantal slaapkamers 2
  • Bouwjaar 2004
Meer kenmerken
Heb je vragen? Of wil je even binnenkijken?

Neem vrijblijvend contact met ons op

De Laen
Download de brochure

Bekijk op het gemak de brochure van deze woning

Downloaden

Omschrijving

Instapklaar, strak en heerlijk licht wonen? Dit moderne appartement op de 2e etage heeft alles wat je zoekt. Denk aan een gloednieuwe keuken, 2 slaapkamers, een compleet nieuwe laminaatvloer en een zonnige woonkamer op het zuiden. Geen standaard balkon, maar wel openslaande deuren met een Frans balkon én uitzicht op het wijkpark. Extra fijn: je beschikt over een eigen parkeerplaats én een privéberging op de begane grond.

Ligging:
Het appartement ligt in Tolhek en gunstig ten opzichte van winkels, openbaar vervoer en uitvalswegen. Supermarkten, dagelijkse voorzieningen en OV zijn vlot bereikbaar en met de auto zit je zo op de belangrijkste snelwegen richting omliggende steden. Tolhek kenmerkt zich ook door het grote wijkpark en het aangrenzende recreatiegebied De Groenzoom.

Begane grond:
Afgesloten entree met bellentableau en brievenbussen.
Privéberging en eigen parkeerplaats.

1e etage:
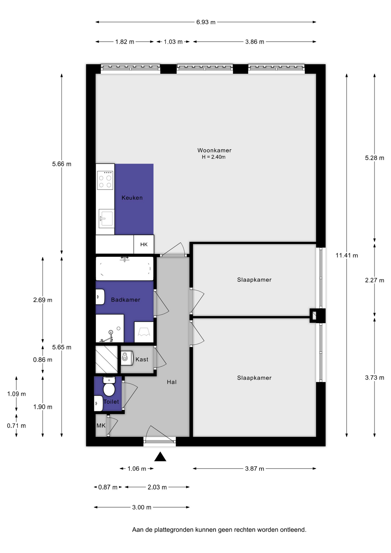
Gang met meterkast, toilet, stookruimte en toegang tot slaapkamers, badkamer en woonkamer.
Lichte woonkamer met zuidligging en openslaande deuren met Frans balkon.
Gloednieuwe keuken, modern uitgevoerd en voorzien van alle benodigde inbouwapparatuur.
Twee slaapkamers.
Badkamer met douche, ligbad en wastafel. In de badkamer aansluiting voor de wasapparatuur.

Oplevering: zo spoedig mogelijk / in overleg

Bijzonderheden

– Gloednieuwe keuken
– Compleet nieuwe laminaatvloer
– Eigen parkeerplaats
– Privéberging op de begane grond
– Energielabel A
– As is where is clausule van toepassing
– Oplevering later dan 2 maanden, dan 6% rentevergoeding op jaarbasis
– Geen vragenlijst / lijst van zaken aanwezig
– Project notaris: Ligthelm & Dekker Notarissen / Rotterdam

De Laen makelaardij is de NVM-makelaar van de verkoper. Wij adviseren u uw eigen NVM-makelaar in te schakelen om uw belangen te behartigen bij de aankoop van dit object. 
Deze advertentie en de bijbehorende vragenlijst zijn met de grootst mogelijke zorg samengesteld.
Onzerzijds wordt echter geen enkele aansprakelijkheid aanvaard voor enige onvolledigheid, onjuistheid of anderszins, dan wel de gevolgen daarvan. 
Alle opgegeven maten en oppervlakten zijn indicatief.

Heb je vragen? Of wil je even binnenkijken?

Neem vrijblijvend contact met ons op

De Laen
Download de brochure

Bekijk op het gemak de brochure van deze woning

Downloaden

Kenmerken

Overdracht

  • Status Beschikbaar
  • Vraagprijs € 400.000,- Kosten koper
  • Aanvaarding In overleg

Bouwvorm & Onderhoud

  • Soort woonhuis
  • Soort bouw Bestaande bouw
  • Bouwjaar 2004
  • Soort dak Plat dak
  • Onderhoud binnen Goed
  • Onderhoud buiten Goed

Oppervlakten & inhoud

  • Gebruiksoppervlakte wonen ca. 79 m2
  • Gebouwgebonden buitenruimte
  • Externe bergruimte ca. 5m2
  • Overige inpandige ruimte
  • Inhoud ca. 239m3
  • Perceeloppervlakte

Indeling

  • Aantal kamers 3 kamers
  • Aantal slaapkamers 2
  • Aantal badkamers 1 badkamer
  • Badkamervoorzieningen Ligbad, douche, wastafel
  • Aantal woonlagen 1 woonlagen
  • Voorzieningen Mechanische ventilatie, tv kabel, lift

Energie & Installatie

  • Energielabel A
  • Isolatie Volledig geisoleerd
  • Verwarming Cv ketel
  • Warm water Cv ketel
  • C.v.-ketel type Gas
  • C.v.-ketel bouwjaar 2004
  • Eigendom Eigendom

Tuin & Buitenruimte

  • Ligging Aan park, in woonwijk, vrij uitzicht
  • Hoofdtuin
  • Oppervlakte hoofdtuin
  • Ligging hoofdtuin
  • Achterom
  • Kwaliteit tuin

Bergruimte

  • Schuur / berging
  • Aantal schuren / bergingen 1
  • Voorzieningen Voorzien van elektra

Parkeergelegenheid

  • Parkeerfaciliteiten Op eigen terrein
  • Garage Parkeerplaats

Wijk statistieken

Burgerlijke staat
  • Gehuwd
  • Ongehuwd
  • Gescheiden
  • Verweduwd
Leeftijd in gemeente
0 - 15 jaar
15 - 25 jaar
25-45 jaar
45 - 65 jaar
65+ jaar
  • 0 - 15 jaar
  • 15 - 25 jaar
  • 25 - 45 jaar
  • 45 - 65 jaar
  • 65+ jaar
Gezinnen met kinderen
Met kinderen
Zonder kinderen
Alleenstaand
  • Met kinderen
  • Zonder kinderen
  • Alleenstaand
Leeftijd buurtbewoners
0 - 15 jaar
15 - 25 jaar
25-45 jaar
45 - 65 jaar
65+ jaar
  • 0 - 15 jaar
  • 15 - 25 jaar
  • 25 - 45 jaar
  • 45 - 65 jaar
  • 65+ jaar
Bewoners in de straat
Man
Vrouw
  • Man
  • Vrouw

Documenten

    Je nieuwe huis vinden we samen

    Neem vrijblijvend contact met ons op

    De Laen