Omschrijving

Ruime hoekwoning met 4 slaapkamers en een zonnige, ca. 15 meter diepe achtertuin op het Westen.

Deze fijne gezinswoning ligt in de geliefde en kindvriendelijke woonwijk Tolhek, een rustige en groene buurt waar je je snel thuis voelt. Dankzij de hoekligging en grote raampartijen geniet je hier van veel lichtinval in huis. De diepe achtertuin op het Westen zorgt ervoor dat je vrijwel de hele dag van de zon kunt genieten – van de…

Lees meer

Kenmerken

  • Status Beschikbaar
  • Vraagprijs € 539.000,- kosten koper
  • Woonoppervlakte ca. 115 m2
  • Aantal slaapkamers 4
  • Bouwjaar 2003
Meer kenmerken
Heb je vragen? Of wil je even binnenkijken?

Neem vrijblijvend contact met ons op

De Laen
Download de brochure

Bekijk op het gemak de brochure van deze woning

Downloaden

Omschrijving

Ruime hoekwoning met 4 slaapkamers en een zonnige, ca. 15 meter diepe achtertuin op het Westen.

Deze fijne gezinswoning ligt in de geliefde en kindvriendelijke woonwijk Tolhek, een rustige en groene buurt waar je je snel thuis voelt. Dankzij de hoekligging en grote raampartijen geniet je hier van veel lichtinval in huis. De diepe achtertuin op het Westen zorgt ervoor dat je vrijwel de hele dag van de zon kunt genieten – van de eerste kop koffie tot een lange zomeravond buiten.

In de directe omgeving vind je diverse basisscholen, middelbare scholen en de RandstadRail, waardoor voorzieningen en steden in de regio eenvoudig bereikbaar zijn. Met vier slaapkamers en volop leefruimte is dit een ideale plek voor gezinnen die comfortabel en licht willen wonen.

Globale indeling:

Begane grond:
– Entree / hal met meterkast en toilet
– Woonkamer met een zij-uitbouw d.m.v. een groter erker wat de ruimte een prettige lichtinval geeft, verder is er een eiken houtenvloer, trap-/bergkast en openslaande deuren naar de tuin
– Open keuken aan de voorzijde met apparatuur zoals koelkast, vriezer, vaatwasser, oven, 4-pits gaskookplaat en een Quooker.

1e verdieping:
– 3 Slaapkamers
– Badkamer met ligbad, douchecabine, wastafelmeubel, 2e toilet en elektrische vloerverwarming

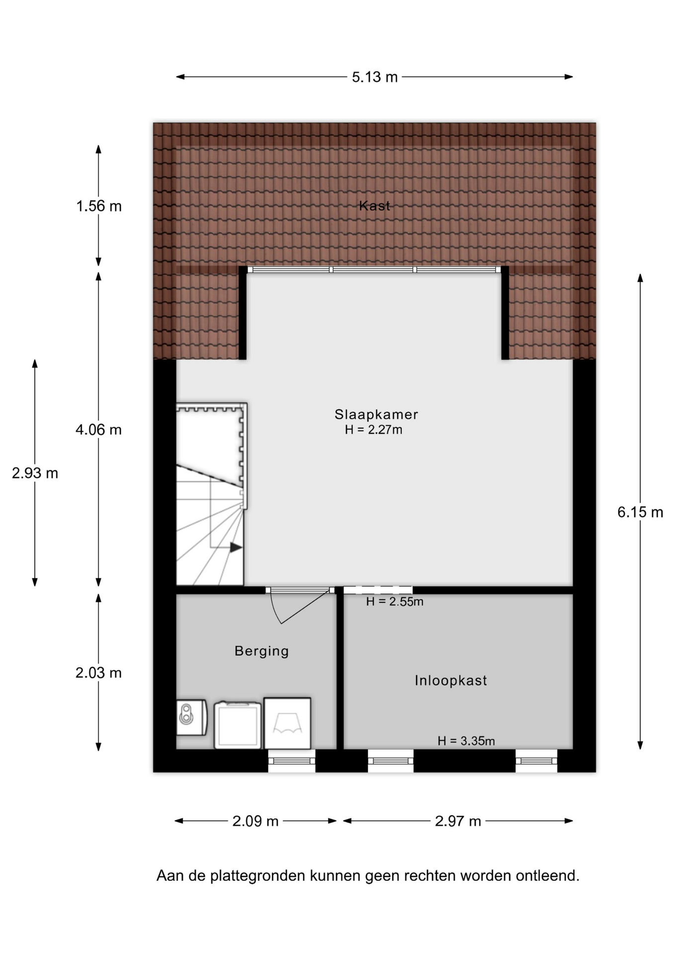
2e verdieping:
– Grote zolderslaapkamer met dakkapel en inloopkast
– Bergruimte met c.v., wasmachine-aansluiting, omvormer en mechanische ventilatie

De achtertuin is maar liefst ca. 15 meter diep en gesitueerd op het Westen.

Bijzonderheden:
– Circa 15 x 6,80 meter diepe achtertuin gesitueerd op het Westen (100 m2)
– Buitenschilderwerk in 2024 uitgevoerd aan de achterzijde
– C.V. ketel van 2017
– Screens op de 1e en 2e verdieping en begane grond, tevens is er een zonnescherm aanwezig op de begane grond.
– Kruipruimte ingespoten met zand
– 13 Zonnepanelen, opgewekte capaciteit zonnepanelen: 3400 kWh
– Glasvezelaansluiting aanwezig
– Oplevering ca. zomer 2026

de Laen makelaardij is de NVM-makelaar van de verkoper. Wij adviseren u uw eigen NVM-makelaar in te schakelen om uw belangen te behartigen bij de aankoop van dit object.
Deze advertentie en de bijbehorende vragenlijst zijn met de grootst mogelijke zorg samengesteld.
Onzerzijds wordt echter geen enkele aansprakelijkheid aanvaard voor enige onvolledigheid, onjuistheid of anderszins, dan wel de gevolgen daarvan.
Alle opgegeven maten en oppervlakten zijn indicatief.

Heb je vragen? Of wil je even binnenkijken?

Neem vrijblijvend contact met ons op

De Laen
Download de brochure

Bekijk op het gemak de brochure van deze woning

Downloaden

Kenmerken

Overdracht

  • Status Beschikbaar
  • Vraagprijs € 539.000,- Kosten koper
  • Aanvaarding In overleg

Bouwvorm & Onderhoud

  • Soort woonhuis Hoekwoning
  • Soort bouw Bestaande bouw
  • Bouwjaar 2003
  • Soort dak Lessenaardak
  • Onderhoud binnen Goed
  • Onderhoud buiten Goed

Oppervlakten & inhoud

  • Gebruiksoppervlakte wonen ca. 115 m2
  • Gebouwgebonden buitenruimte
  • Externe bergruimte ca. 8m2
  • Overige inpandige ruimte
  • Inhoud ca. 382m3
  • Perceeloppervlakte ca. 187m2

Indeling

  • Aantal kamers 5 kamers
  • Aantal slaapkamers 4
  • Aantal badkamers 1 badkamer
  • Badkamervoorzieningen Ligbad, toilet, douche, wastafelmeubel
  • Aantal woonlagen 3 woonlagen
  • Voorzieningen Mechanische ventilatie, tv kabel, zonnepanelen

Energie & Installatie

  • Energielabel A
  • Isolatie Volledig geisoleerd
  • Verwarming Cv ketel
  • Warm water Cv ketel
  • C.v.-ketel type Gas
  • C.v.-ketel bouwjaar 2017
  • Eigendom Eigendom

Tuin & Buitenruimte

  • Ligging Aan rustige weg, in woonwijk, vrij uitzicht
  • Hoofdtuin Achtertuin
  • Oppervlakte hoofdtuin
  • Ligging hoofdtuin West
  • Achterom 1
  • Kwaliteit tuin Fraai aangelegd

Bergruimte

  • Schuur / berging Vrijstaand hout
  • Aantal schuren / bergingen 1
  • Voorzieningen

Parkeergelegenheid

  • Parkeerfaciliteiten Openbaar parkeren
  • Garage Geen garage

Wijk statistieken

Burgerlijke staat
  • Gehuwd
  • Ongehuwd
  • Gescheiden
  • Verweduwd
Leeftijd in gemeente
0 - 15 jaar
15 - 25 jaar
25-45 jaar
45 - 65 jaar
65+ jaar
  • 0 - 15 jaar
  • 15 - 25 jaar
  • 25 - 45 jaar
  • 45 - 65 jaar
  • 65+ jaar
Gezinnen met kinderen
Met kinderen
Zonder kinderen
Alleenstaand
  • Met kinderen
  • Zonder kinderen
  • Alleenstaand
Leeftijd buurtbewoners
0 - 15 jaar
15 - 25 jaar
25-45 jaar
45 - 65 jaar
65+ jaar
  • 0 - 15 jaar
  • 15 - 25 jaar
  • 25 - 45 jaar
  • 45 - 65 jaar
  • 65+ jaar
Bewoners in de straat
Man
Vrouw
  • Man
  • Vrouw

Documenten

    Je nieuwe huis vinden we samen

    Neem vrijblijvend contact met ons op

    De Laen