Omschrijving

Zo'n fijn gezinshuis! Te koop wordt aangeboden Wollebrand 12, een ruime 5 kamer hoekwoning met diepe, zonnige tuin op het zuidwesten. Aan de achterzijde is de woning uitgebouwd waardoor een heerlijke leefruimte is ontstaan.

De woning ligt aan brede straat met veel groen aan de voorzijde, vlakbij een park met ontsluiting naar recreatiegebied de Groenzoom. En in de directe nabijheid van scholen, winkels, kinderdagverblijf en…

Lees meer

Kenmerken

  • Status Verkocht
  • Vraagprijs € 535.000,- kosten koper
  • Woonoppervlakte ca. 123 m2
  • Aantal slaapkamers 4
  • Bouwjaar 2003
Meer kenmerken
Heb je vragen? Of wil je even binnenkijken?

Neem vrijblijvend contact met ons op

De Laen
Download de brochure

Bekijk op het gemak de brochure van deze woning

Downloaden

Omschrijving

Zo’n fijn gezinshuis! Te koop wordt aangeboden Wollebrand 12, een ruime 5 kamer hoekwoning met diepe, zonnige tuin op het zuidwesten. Aan de achterzijde is de woning uitgebouwd waardoor een heerlijke leefruimte is ontstaan.

De woning ligt aan brede straat met veel groen aan de voorzijde, vlakbij een park met ontsluiting naar recreatiegebied de Groenzoom. En in de directe nabijheid van scholen, winkels, kinderdagverblijf en sportgelegenheden met het metrostation op loopafstand.

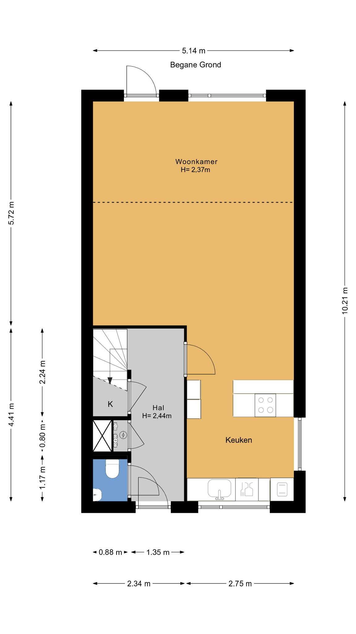
Begane grond: Entree/hal, toiletruimte met hangend closet, meterkast en berging onder de trap. Aan de voorzijde gelegen open keuken met een kook-schiereiland voorzien van diverse inbouwapparatuur. Vanwege de hoekligging zijn er extra ramen aan de zijkant wat veel extra lichtinval genereert. Heerlijk ruime, aan de achterzijde uitgebouwde woonkamer. Op de vloer ligt een mooie tegelvloer in patroon gelegd en v.v. vloerverwarming. De achtertuin ligt gunstig qua bezonning op het zuidwesten, heeft diverse terrassen zodat er altijd wel een plek in de zon (of schaduw) te vinden is, aan achterzijde staat de fietsenberging en achterom.

1e verdieping: Overloop, 3 slaapkamers, 2 slaapkamers aan de achterzijde en 3e slaapkamer aan de voorzijde. Aan de voorzijde bevindt zich de badkamer, voorzien van douchecabine, 2e toilet, twee wastafels en een badkamermeubel.

2e verdieping: Heerlijke ruime verdieping, mede door de brede dakkapel aan de achterzijde. Overloop/open ruimte met de mogelijkheid om nog een werkplek in te richten. Ruime 4e slaapkamer. Aan voorzijde eveneens praktische was- en stookruimte met opstelplaats voor de wasmachine en CV ketel. Optioneel is deze ruimte geschikt om nog een 2e doucheruimte te realiseren.

Oplevering prognose maart/april 2025.

Heb je vragen? Of wil je even binnenkijken?

Neem vrijblijvend contact met ons op

De Laen
Download de brochure

Bekijk op het gemak de brochure van deze woning

Downloaden

Kenmerken

Overdracht

  • Status Verkocht
  • Vraagprijs € 535.000,- Kosten koper
  • Aanvaarding In overleg

Bouwvorm & Onderhoud

  • Soort woonhuis Eindwoning
  • Soort bouw Bestaande bouw
  • Bouwjaar 2003
  • Soort dak Lessenaardak
  • Onderhoud binnen Goed
  • Onderhoud buiten Goed

Oppervlakten & inhoud

  • Gebruiksoppervlakte wonen ca. 123 m2
  • Gebouwgebonden buitenruimte
  • Externe bergruimte ca. 7m2
  • Overige inpandige ruimte
  • Inhoud ca. 413m3
  • Perceeloppervlakte ca. 166m2

Indeling

  • Aantal kamers 5 kamers
  • Aantal slaapkamers 4
  • Aantal badkamers 1 badkamer
  • Badkamervoorzieningen Toilet, douche, dubbele wastafel, wastafelmeubel
  • Aantal woonlagen 3 woonlagen
  • Voorzieningen Mechanische ventilatie, natuurlijke ventilatie

Energie & Installatie

  • Energielabel A
  • Isolatie Volledig geisoleerd
  • Verwarming Cv ketel
  • Warm water Cv ketel
  • C.v.-ketel type Gas
  • C.v.-ketel bouwjaar 2019
  • Eigendom Eigendom

Tuin & Buitenruimte

  • Ligging Aan rustige weg, in woonwijk
  • Hoofdtuin Achtertuin
  • Oppervlakte hoofdtuin ca. 91m2
  • Ligging hoofdtuin Zuidwest
  • Achterom
  • Kwaliteit tuin Normaal

Bergruimte

  • Schuur / berging Vrijstaand steen
  • Aantal schuren / bergingen 1
  • Voorzieningen

Parkeergelegenheid

  • Parkeerfaciliteiten Openbaar parkeren
  • Garage Geen garage

Wijk statistieken

Burgerlijke staat
  • Gehuwd
  • Ongehuwd
  • Gescheiden
  • Verweduwd
Leeftijd in gemeente
0 - 15 jaar
15 - 25 jaar
25-45 jaar
45 - 65 jaar
65+ jaar
  • 0 - 15 jaar
  • 15 - 25 jaar
  • 25 - 45 jaar
  • 45 - 65 jaar
  • 65+ jaar
Gezinnen met kinderen
Met kinderen
Zonder kinderen
Alleenstaand
  • Met kinderen
  • Zonder kinderen
  • Alleenstaand
Leeftijd buurtbewoners
0 - 15 jaar
15 - 25 jaar
25-45 jaar
45 - 65 jaar
65+ jaar
  • 0 - 15 jaar
  • 15 - 25 jaar
  • 25 - 45 jaar
  • 45 - 65 jaar
  • 65+ jaar
Bewoners in de straat
Man
Vrouw
  • Man
  • Vrouw

In de buurt

    Documenten

      Je nieuwe huis vinden we samen

      Neem vrijblijvend contact met ons op

      De Laen