Omschrijving

Ben je op zoek naar een huis met karakter én de kans om er helemaal jouw eigen plek van te maken? Dan is deze charmante hoekwoning aan de Wilhelminasingel precies wat je zoekt. Met een garage, een parkeerplaats voor de deur en een fijne ligging in een rustige straat. De Wilhelminasingel is een geliefde, karaktervolle straat met veel sfeer en authentieke woningen. Hier woon je in de oude dorpskern van Pijnacker, waar buren elkaar nog…

Lees meer

Kenmerken

  • Status Onder voorbehoud verkocht
  • Vraagprijs € 465.000,- kosten koper
  • Woonoppervlakte ca. 90 m2
  • Aantal slaapkamers 4
  • Bouwjaar 1956
Meer kenmerken
Heb je vragen? Of wil je even binnenkijken?

Neem vrijblijvend contact met ons op

De Laen
Download de brochure

Bekijk op het gemak de brochure van deze woning

Downloaden

Omschrijving

Ben je op zoek naar een huis met karakter én de kans om er helemaal jouw eigen plek van te maken? Dan is deze charmante hoekwoning aan de Wilhelminasingel precies wat je zoekt. Met een garage, een parkeerplaats voor de deur en een fijne ligging in een rustige straat. De Wilhelminasingel is een geliefde, karaktervolle straat met veel sfeer en authentieke woningen. Hier woon je in de oude dorpskern van Pijnacker, waar buren elkaar nog groeten en waar het centrum letterlijk om de hoek ligt. Perfect voor wie houdt van een levendige, vriendelijke buurt met een vleugje nostalgie – en die het leuk vindt om een woning naar eigen smaak op te knappen.

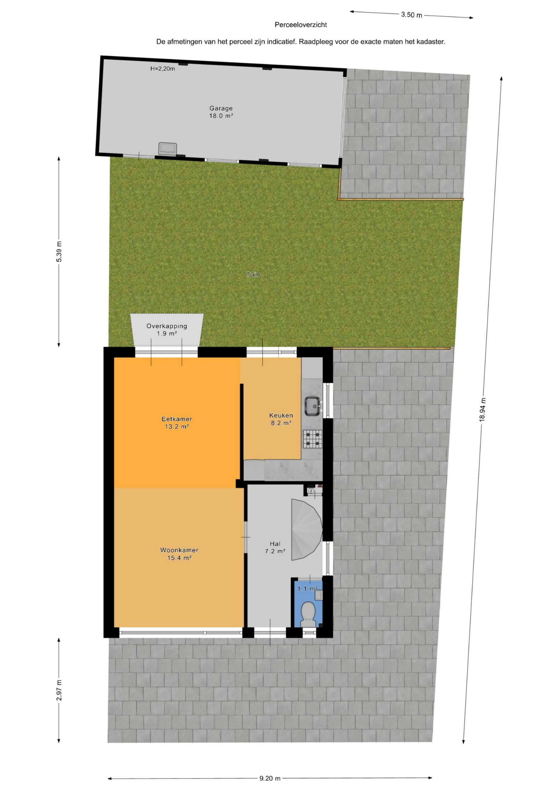
Begane grond:
Je komt binnen in de hal met meterkast en toilet. De woonkamer is licht en gezellig, met veel glas-in-loodramen. De keuken is een aantal jaar geleden vernieuwd en sluit mooi aan op de tuin.

1e verdieping
Op de overloop vind je drie slaapkamers en de badkamer. De slaapkamer aan de achterzijde is v.v. een balkon.

2e verdieping
De zolderverdieping is voorzien van een dakkapel en heeft een stahoogte van circa 1,85 meter. Deze ruimte telt officieel niet mee als woonoppervlak, maar is wél perfect als slaapkamer/werkkamer als je niet te lang bent.

Tuin
De achtertuin ligt gunstig ten opzichte van de zon (NW) en biedt toegang tot de garage. Voor de garage is ruimte om een kleinere auto te parkeren. Tuin rondom het huis met poortdeur richting de voortuin.

Bijzonderheden:

– Gunstige hoekligging
– Woonoppervlak met zolder: 107 m²
– Bouwkundig rapport aanwezig
– Garage en eigen parkeerplaats (voor kleine auto)
– Ouderdomsclausule, asbestclausule en “verkoper is geen bewoner”-clausule van toepassing

Oplevering: direct.

De Laen Makelaardij is de NVM-makelaar van de verkoper. We adviseren je om je eigen NVM-makelaar in te schakelen om jouw belangen te behartigen bij de aankoop van deze woning.
Deze advertentie en de bijbehorende vragenlijst zijn met de grootst mogelijke zorg samengesteld. Onzerzijds wordt echter geen enkele aansprakelijkheid aanvaard voor eventuele onvolledigheden of onjuistheden, dan wel de gevolgen daarvan.
Alle opgegeven maten en oppervlakten zijn indicatief.

Heb je vragen? Of wil je even binnenkijken?

Neem vrijblijvend contact met ons op

De Laen
Download de brochure

Bekijk op het gemak de brochure van deze woning

Downloaden

Kenmerken

Overdracht

  • Status Onder voorbehoud verkocht
  • Vraagprijs € 465.000,- Kosten koper
  • Aanvaarding Direct

Bouwvorm & Onderhoud

  • Soort woonhuis Hoekwoning
  • Soort bouw Bestaande bouw
  • Bouwjaar 1956
  • Soort dak Zadeldak
  • Onderhoud binnen Redelijk
  • Onderhoud buiten Redelijk

Oppervlakten & inhoud

  • Gebruiksoppervlakte wonen ca. 90 m2
  • Gebouwgebonden buitenruimte ca. 4m2
  • Externe bergruimte ca. 18m2
  • Overige inpandige ruimte ca. 17m2
  • Inhoud ca. 378m3
  • Perceeloppervlakte ca. 197m2

Indeling

  • Aantal kamers 5 kamers
  • Aantal slaapkamers 4
  • Aantal badkamers 1 badkamer
  • Badkamervoorzieningen Toilet, douche, wastafel
  • Aantal woonlagen 3 woonlagen
  • Voorzieningen Tv kabel, buitenzonwering, rookkanaal

Energie & Installatie

  • Energielabel F
  • Isolatie Gedeeltelijk dubbel glas
  • Verwarming Cv ketel
  • Warm water Cv ketel
  • C.v.-ketel type Gas
  • C.v.-ketel bouwjaar 2007
  • Eigendom Eigendom

Tuin & Buitenruimte

  • Ligging In centrum, in woonwijk
  • Hoofdtuin Achtertuin
  • Oppervlakte hoofdtuin ca. 50m2
  • Ligging hoofdtuin Noordwest
  • Achterom 1
  • Kwaliteit tuin Normaal

Bergruimte

  • Schuur / berging
  • Aantal schuren / bergingen
  • Voorzieningen

Parkeergelegenheid

  • Parkeerfaciliteiten Openbaar parkeren, op eigen terrein
  • Garage Vrijstaand steen, parkeerplaats

Wijk statistieken

Burgerlijke staat
  • Gehuwd
  • Ongehuwd
  • Gescheiden
  • Verweduwd
Leeftijd in gemeente
0 - 15 jaar
15 - 25 jaar
25-45 jaar
45 - 65 jaar
65+ jaar
  • 0 - 15 jaar
  • 15 - 25 jaar
  • 25 - 45 jaar
  • 45 - 65 jaar
  • 65+ jaar
Gezinnen met kinderen
Met kinderen
Zonder kinderen
Alleenstaand
  • Met kinderen
  • Zonder kinderen
  • Alleenstaand
Leeftijd buurtbewoners
0 - 15 jaar
15 - 25 jaar
25-45 jaar
45 - 65 jaar
65+ jaar
  • 0 - 15 jaar
  • 15 - 25 jaar
  • 25 - 45 jaar
  • 45 - 65 jaar
  • 65+ jaar
Bewoners in de straat
Man
Vrouw
  • Man
  • Vrouw

Documenten

    Je nieuwe huis vinden we samen

    Neem vrijblijvend contact met ons op

    De Laen