Omschrijving

Verrassend ruime tussenwoning met zonnige tuin én dakterras in hartje Pijnacker!

Op zoek naar een ruime, instapklare woning midden in het gezellige centrum van Pijnacker? Deze verrassend royale woning biedt alles wat je zoekt: een uitgebouwde woonkamer, 4 (voorheen 5) grote slaapkamers, een zonnige tuin én een heerlijk dakterras op het zuiden. Een ideale gezinswoning met volop leefruimte, comfort en een centrale…

Lees meer

Kenmerken

  • Status Verkocht
  • Vraagprijs € 550.000,- kosten koper
  • Woonoppervlakte ca. 127 m2
  • Aantal slaapkamers 4
  • Bouwjaar 1987
Meer kenmerken
Heb je vragen? Of wil je even binnenkijken?

Neem vrijblijvend contact met ons op

De Laen
Download de brochure

Bekijk op het gemak de brochure van deze woning

Downloaden

Omschrijving

Verrassend ruime tussenwoning met zonnige tuin én dakterras in hartje Pijnacker!

Op zoek naar een ruime, instapklare woning midden in het gezellige centrum van Pijnacker? Deze verrassend royale woning biedt alles wat je zoekt: een uitgebouwde woonkamer, 4 (voorheen 5) grote slaapkamers, een zonnige tuin én een heerlijk dakterras op het zuiden. Een ideale gezinswoning met volop leefruimte, comfort en een centrale ligging!

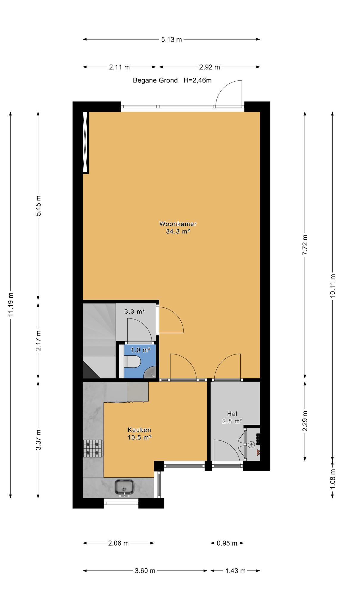
Indeling:
Bij aankomst valt direct de ruime voortuin op. Kom binnen in de hal met meterkast en garderoberuimte, waarna je wordt verrast door de royale leefruimte. De uitgebouwde woonkamer is een echte eyecatcher: veel lichtinval, een open en ruime sfeer, en voldoende plek voor zowel een grote eethoek als een comfortabele zithoek.
Aan de voorzijde van de woning is de gezellige woonkeuken. Deze is modern ingericht met een praktische opstelling en voorzien van diverse inbouwapparatuur, te weten een gaskookplaat, vaatwasser, koelkast, vriezer en een combi-oven. Vanuit de hal is er toegang tot de toiletruimte en de trapopgang.

1e verdieping:
Aan de voorzijde is een ruime slaapkamer en de moderne badkamer. De badkamer is compleet met een heerlijke inloopdouche en een stijlvol wastafelmeubel. Aan de achterzijde bevindt zich een zeer royale slaapkamer die de volledige breedte van de woning beslaat, voorheen waren dit 2 slaapkamers. Vanuit deze kamer heb je direct toegang tot het zonnige dakterras. Wat een heerlijke plek om te ontspannen en te genieten van de middag- en avondzon!

2e verdieping:
Deze verdieping is vergroot met een dakkapel, waardoor er 2 ruime slaapkamers zijn ontstaan. De slaapkamer aan de voorzijde is voorzien van vaste kasten. Op de overloop bevinden zich de cv-ketel en de wasmachineaansluiting. De knieschotten zijn netjes afgewerkt en bieden extra opbergruimte. Tot slot is er nog een praktische vliering, ideaal voor nóg meer opbergruimte!

Tuin:
Wat een heerlijke tuin! Een fijne, onderhoudsvriendelijke buitenruimte met een zonnige ligging op het zuidwesten. De tuin is fraai aangelegd met sierbestrating, kunstgras en groene borders. Achterin de tuin staat een ruime berging met elektra, perfect voor fietsen, gereedschap of hobbyspullen.

Bijzonderheden:
– Uitgebouwd met een aanbouw en een dakkapel;
– Zonnige tuin én dakterras;
– Moderne keuken geplaatst in 2018;
– Badkamer gerenoveerd in 2018;
– Meterkast vervangen in 2018;
– 4 (voormalig 5) slaapkamers;
– Platte daken vervangen vanaf 2023;
– Energielabel C;
– Het volledige meubilair is ter overname;
– Ouderdoms- en asbestclausule van toepassing.

Heb je vragen? Of wil je even binnenkijken?

Neem vrijblijvend contact met ons op

De Laen
Download de brochure

Bekijk op het gemak de brochure van deze woning

Downloaden

Kenmerken

Overdracht

  • Status Verkocht
  • Vraagprijs € 550.000,- Kosten koper
  • Aanvaarding In overleg

Bouwvorm & Onderhoud

  • Soort woonhuis Tussenwoning
  • Soort bouw Bestaande bouw
  • Bouwjaar 1987
  • Soort dak Zadeldak
  • Onderhoud binnen Goed
  • Onderhoud buiten Goed

Oppervlakten & inhoud

  • Gebruiksoppervlakte wonen ca. 127 m2
  • Gebouwgebonden buitenruimte ca. 8m2
  • Externe bergruimte ca. 8m2
  • Overige inpandige ruimte ca. 4m2
  • Inhoud ca. 444m3
  • Perceeloppervlakte ca. 130m2

Indeling

  • Aantal kamers 5 kamers
  • Aantal slaapkamers 4
  • Aantal badkamers 1 badkamer
  • Badkamervoorzieningen Toilet, wastafelmeubel, inloopdouche
  • Aantal woonlagen 4 woonlagen
  • Voorzieningen Mechanische ventilatie, buitenzonwering, dakraam

Energie & Installatie

  • Energielabel C
  • Isolatie Dakisolatie, muurisolatie, vloerisolatie, dubbel glas
  • Verwarming Cv ketel
  • Warm water Cv ketel
  • C.v.-ketel type Gas
  • C.v.-ketel bouwjaar 2020
  • Eigendom Eigendom

Tuin & Buitenruimte

  • Ligging In woonwijk
  • Hoofdtuin Achtertuin
  • Oppervlakte hoofdtuin ca. 51m2
  • Ligging hoofdtuin Zuid
  • Achterom 1
  • Kwaliteit tuin Fraai aangelegd

Bergruimte

  • Schuur / berging Vrijstaand hout
  • Aantal schuren / bergingen 1
  • Voorzieningen Voorzien van elektra

Parkeergelegenheid

  • Parkeerfaciliteiten Openbaar parkeren
  • Garage Geen garage

Wijk statistieken

Burgerlijke staat
  • Gehuwd
  • Ongehuwd
  • Gescheiden
  • Verweduwd
Leeftijd in gemeente
0 - 15 jaar
15 - 25 jaar
25-45 jaar
45 - 65 jaar
65+ jaar
  • 0 - 15 jaar
  • 15 - 25 jaar
  • 25 - 45 jaar
  • 45 - 65 jaar
  • 65+ jaar
Gezinnen met kinderen
Met kinderen
Zonder kinderen
Alleenstaand
  • Met kinderen
  • Zonder kinderen
  • Alleenstaand
Leeftijd buurtbewoners
0 - 15 jaar
15 - 25 jaar
25-45 jaar
45 - 65 jaar
65+ jaar
  • 0 - 15 jaar
  • 15 - 25 jaar
  • 25 - 45 jaar
  • 45 - 65 jaar
  • 65+ jaar
Bewoners in de straat
Man
Vrouw
  • Man
  • Vrouw

In de buurt

    Documenten

      Je nieuwe huis vinden we samen

      Neem vrijblijvend contact met ons op

      De Laen