Omschrijving

Verrassende hoekwoning in het centrum van Pijnacker met veel ruimte en comfort!
De woning beschikt over 3 (voormalig 4) grote slaapkamers, een moderne keuken (2018), een strakke badkamer (2020) en een zonnige tuin met sfeervolle overkapping. Dankzij de vloerverwarming op de begane grond en de nieuwe kozijnen aan de achterzijde is het hier comfortabel wonen in stijl!

Indeling
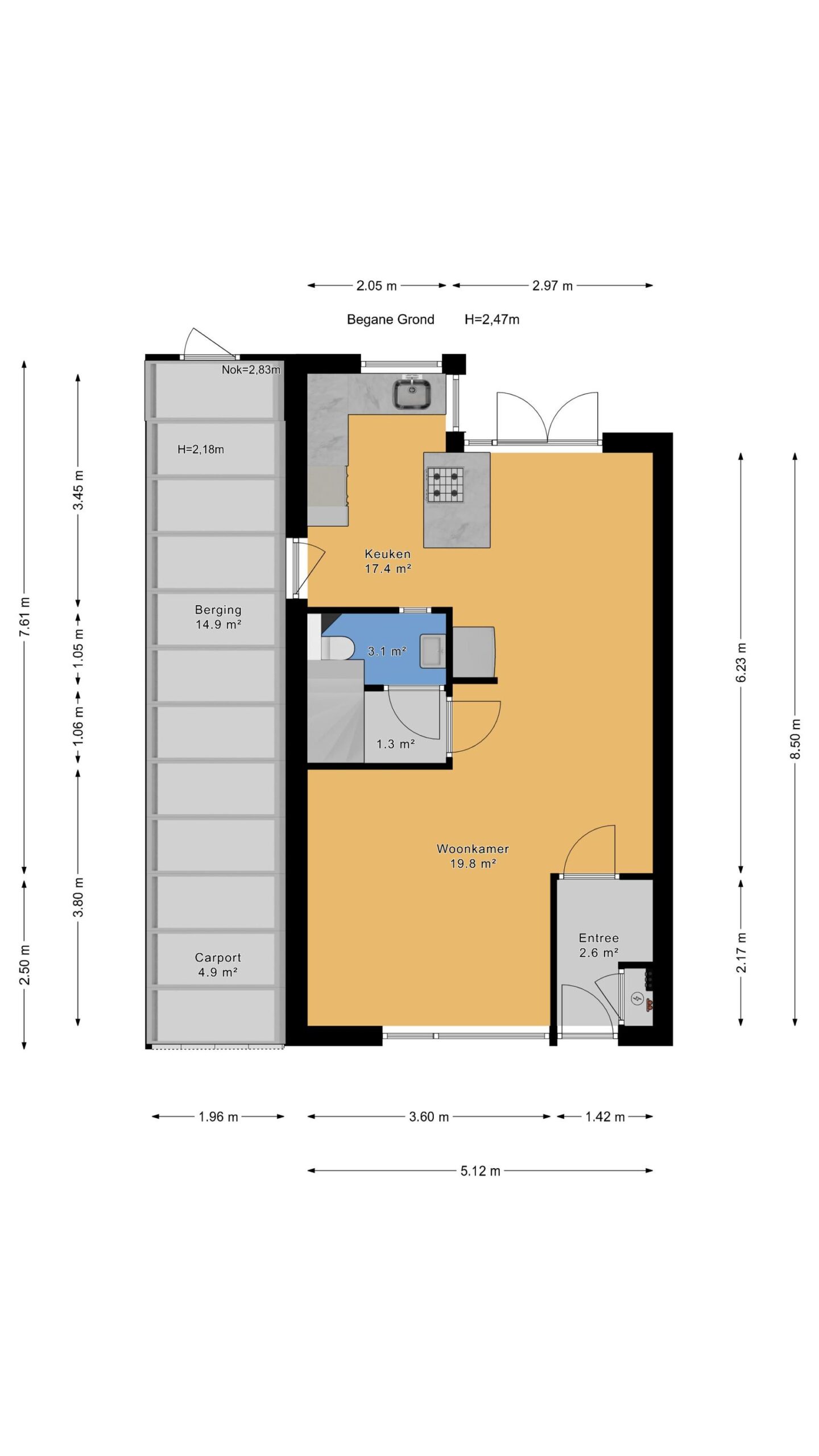
Begane grond:
Je komt binnen in de hal…

Lees meer

Kenmerken

  • Status Onder voorbehoud verkocht
  • Vraagprijs € 525.000,- kosten koper
  • Woonoppervlakte ca. 118 m2
  • Aantal slaapkamers 3
  • Bouwjaar 1987
Meer kenmerken
Heb je vragen? Of wil je even binnenkijken?

Neem vrijblijvend contact met ons op

De Laen
Download de brochure

Bekijk op het gemak de brochure van deze woning

Downloaden

Omschrijving

Verrassende hoekwoning in het centrum van Pijnacker met veel ruimte en comfort!
De woning beschikt over 3 (voormalig 4) grote slaapkamers, een moderne keuken (2018), een strakke badkamer (2020) en een zonnige tuin met sfeervolle overkapping. Dankzij de vloerverwarming op de begane grond en de nieuwe kozijnen aan de achterzijde is het hier comfortabel wonen in stijl!

Indeling
Begane grond:
Je komt binnen in de hal met meterkast. De woonkamer bevindt zich aan de voorzijde en is heerlijk licht. Aan de achterzijde is de moderne keuken (2012), voorzien van een schiereiland en alle gewenste inbouwapparatuur. Via de zijkant is er toegang tot de aangebouwde berging met veel opslagruimte en een praktische wastafel.
De tuin is fraai aangelegd met sierbestrating en beschikt over een sfeervolle overkapping, een heerlijke plek om te ontspannen in de zon.
Vanuit de hal is de moderne toiletruimte en trapopgang bereikbaar.

1e verdieping:
Deze verdieping is ingedeeld met 2 (voormalig 3) zeer ruime slaapkamers en een moderne badkamer met douche, dubbele wastafel en toilet.
De slaapkamers aan de voorzijde zijn in het verleden samengevoegd tot één grote slaapkamer.

2e verdieping:
Wat een ruimte! De enorme zolderverdieping is voorzien van twee dakramen en een uitzonderlijke plafondhoogte, wat zorgt voor een ruimtelijk gevoel en veel mogelijkheden. Deze ruimte is perfect geschikt als grote slaapkamer, werkruimte of hobbykamer.

Bijzonderheden
– Gelegen in het centrumgebied van Pijnacker
– Moderne keuken (2012) met inbouwapparatuur en schiereiland
– Badkamer vernieuwd in 2018
– Vloerverwarming op de begane grond
– Nieuwe kozijnen aan de achterzijde
– Schilderwerk uitgevoerd in 2023
– Aangebouwde berging met veel opslagruimte en een wastafel
– Zonnige tuin met sierbestrating en sfeervolle overkapping
– Ouderdomsclausule en asbestclausule van toepassing.

De Laen makelaardij is de NVM-makelaar van de verkoper. Wij adviseren u uw eigen NVM-makelaar in te schakelen om uw belangen te behartigen bij de aankoop van dit object.
Deze advertentie en de bijbehorende vragenlijst zijn met de grootst mogelijke zorg samengesteld.
Onzerzijds wordt echter geen enkele aansprakelijkheid aanvaard voor enige onvolledigheid, onjuistheid of anderszins, dan wel de gevolgen daarvan.
Alle opgegeven maten en oppervlakten zijn indicatief.

Heb je vragen? Of wil je even binnenkijken?

Neem vrijblijvend contact met ons op

De Laen
Download de brochure

Bekijk op het gemak de brochure van deze woning

Downloaden

Kenmerken

Overdracht

  • Status Onder voorbehoud verkocht
  • Vraagprijs € 525.000,- Kosten koper
  • Aanvaarding In overleg

Bouwvorm & Onderhoud

  • Soort woonhuis Hoekwoning
  • Soort bouw Bestaande bouw
  • Bouwjaar 1987
  • Soort dak Zadeldak
  • Onderhoud binnen Goed
  • Onderhoud buiten Goed

Oppervlakten & inhoud

  • Gebruiksoppervlakte wonen ca. 118 m2
  • Gebouwgebonden buitenruimte ca. 5m2
  • Externe bergruimte
  • Overige inpandige ruimte ca. 15m2
  • Inhoud ca. 467m3
  • Perceeloppervlakte ca. 147m2

Indeling

  • Aantal kamers 4 kamers
  • Aantal slaapkamers 3
  • Aantal badkamers 1 badkamer
  • Badkamervoorzieningen Toilet, douche, bidet, dubbele wastafel
  • Aantal woonlagen 3 woonlagen
  • Voorzieningen Mechanische ventilatie, dakraam

Energie & Installatie

  • Energielabel C
  • Isolatie Dakisolatie, muurisolatie, vloerisolatie, dubbel glas
  • Verwarming Cv ketel, vloerverwarming gedeeltelijk
  • Warm water Cv ketel
  • C.v.-ketel type Gas
  • C.v.-ketel bouwjaar 2015
  • Eigendom Eigendom

Tuin & Buitenruimte

  • Ligging In centrum, in woonwijk
  • Hoofdtuin Achtertuin
  • Oppervlakte hoofdtuin ca. 53m2
  • Ligging hoofdtuin Noordwest
  • Achterom
  • Kwaliteit tuin Fraai aangelegd

Bergruimte

  • Schuur / berging Aangebouwd hout
  • Aantal schuren / bergingen 1
  • Voorzieningen Voorzien van verwarming, voorzien van elektra, voorzien van water

Parkeergelegenheid

  • Parkeerfaciliteiten Openbaar parkeren
  • Garage Geen garage

Wijk statistieken

Burgerlijke staat
  • Gehuwd
  • Ongehuwd
  • Gescheiden
  • Verweduwd
Leeftijd in gemeente
0 - 15 jaar
15 - 25 jaar
25-45 jaar
45 - 65 jaar
65+ jaar
  • 0 - 15 jaar
  • 15 - 25 jaar
  • 25 - 45 jaar
  • 45 - 65 jaar
  • 65+ jaar
Gezinnen met kinderen
Met kinderen
Zonder kinderen
Alleenstaand
  • Met kinderen
  • Zonder kinderen
  • Alleenstaand
Leeftijd buurtbewoners
0 - 15 jaar
15 - 25 jaar
25-45 jaar
45 - 65 jaar
65+ jaar
  • 0 - 15 jaar
  • 15 - 25 jaar
  • 25 - 45 jaar
  • 45 - 65 jaar
  • 65+ jaar
Bewoners in de straat
Man
Vrouw
  • Man
  • Vrouw

Documenten

    Je nieuwe huis vinden we samen

    Neem vrijblijvend contact met ons op

    De Laen