Omschrijving

Op een markante plek aan de prachtige Veenweg in geannexeerd Nootdorp staat deze charmante, vrijstaande voormalige tuinderswoning. Door de jaren heen vergroot en uitgebreid met een garage, houten chalet-berging en hobbykas.

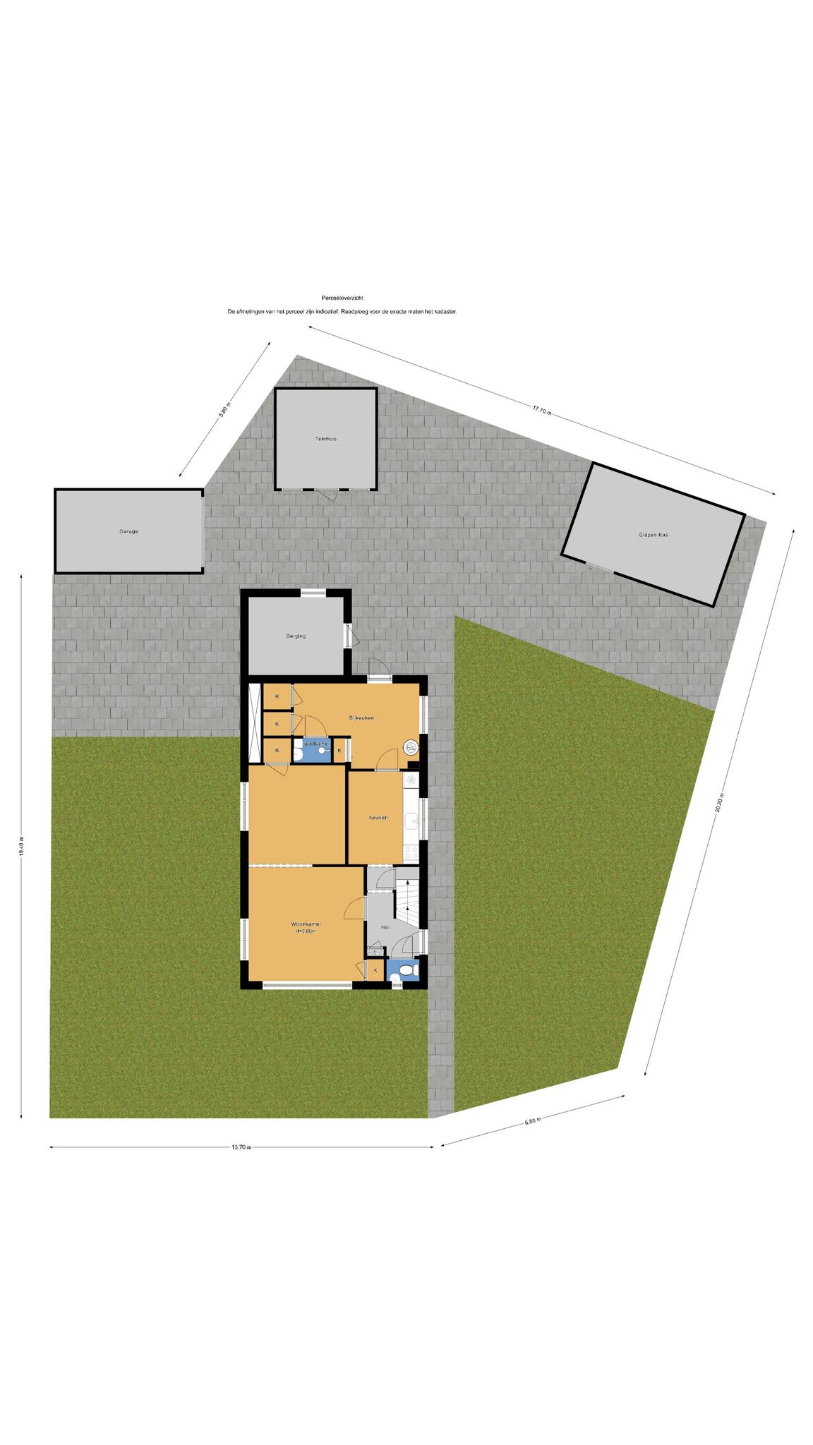
Wat dit huis en deze locatie charmant maakt, is met name de ligging aan de voormalige vaart en het royale perceel van totaal 620m2 eigen grond. Toegang tot het perceel via een eigen toegangsbrug en aan…

Lees meer

Kenmerken

  • Status Verkocht
  • Vraagprijs Prijs op aanvraag
  • Woonoppervlakte ca. 117 m2
  • Aantal slaapkamers 4
  • Bouwjaar 1957
Meer kenmerken
Heb je vragen? Of wil je even binnenkijken?

Neem vrijblijvend contact met ons op

De Laen
Download de brochure

Bekijk op het gemak de brochure van deze woning

Downloaden

Omschrijving

Op een markante plek aan de prachtige Veenweg in geannexeerd Nootdorp staat deze charmante, vrijstaande voormalige tuinderswoning. Door de jaren heen vergroot en uitgebreid met een garage, houten chalet-berging en hobbykas.

Wat dit huis en deze locatie charmant maakt, is met name de ligging aan de voormalige vaart en het royale perceel van totaal 620m2 eigen grond. Toegang tot het perceel via een eigen toegangsbrug en aan achterzijde een extra ontsluiting.

Of je nu een architect en aannemer in de hand neemt om deze oorspronkelijke tuinderswoning een upgrade te geven naar de maatstaven van de huidige tijd of dat je het perceel als uitgangspunt neemt om een nieuwe woning te bouwen, dat maakt de verkoper niet uit, als maar duidelijk blijkt dat je als toekomstige eigenaar op dit perceel tot je recht komt. Verkoper behoudt zich het recht van gunning.

Indeling: Entree/hal met meterkast, toilet en trapkast. Eenvoudige keuken met donker eiken keukenblok. Woonkamer met een typische indeling uit de jaren ’50 met een voor- en achterkamer. Aanbouw/bijkeuken met achteringang, aansluiting voor wasmachine, opstelling CV ketel (ca. 2012) en boiler (huur), in de aanbouw bevindt zich een eenvoudige douchegelegenheid.

1e verdieping: Kleine overloop, eenvoudig toilet, 4 slaapkamers, dakterras. Vanuit luik is bergvliering toegankelijk.

Wetenswaardigheden:
– drukriolering
– betonnen prefab garage lekt
– vloer ton-zon isolatie aangebracht
– energielabel G
– woning is uitgebreid met aan- en opbouw

Clausules:
– oud pand clausule
– niet zelf bewoning clausule
– asbest clausule
– recht van overpad van toepassing naburig perceel
– verkoper behoudt zich het recht van gunning
– toestemming vereist van kantonrechter

Heb je vragen? Of wil je even binnenkijken?

Neem vrijblijvend contact met ons op

De Laen
Download de brochure

Bekijk op het gemak de brochure van deze woning

Downloaden

Kenmerken

Overdracht

  • Status Verkocht
  • Vraagprijs Prijs op aanvraag
  • Aanvaarding In overleg

Bouwvorm & Onderhoud

  • Soort woonhuis Vrijstaande woning
  • Soort bouw Bestaande bouw
  • Bouwjaar 1957
  • Soort dak Zadeldak
  • Onderhoud binnen Redelijk
  • Onderhoud buiten Redelijk

Oppervlakten & inhoud

  • Gebruiksoppervlakte wonen ca. 117 m2
  • Gebouwgebonden buitenruimte ca. 13m2
  • Externe bergruimte ca. 46m2
  • Overige inpandige ruimte ca. 17m2
  • Inhoud ca. 497m3
  • Perceeloppervlakte ca. 620m2

Indeling

  • Aantal kamers 5 kamers
  • Aantal slaapkamers 4
  • Aantal badkamers
  • Badkamervoorzieningen
  • Aantal woonlagen 4 woonlagen
  • Voorzieningen

Energie & Installatie

  • Energielabel G
  • Isolatie Vloerisolatie, gedeeltelijk dubbel glas
  • Verwarming Cv ketel
  • Warm water Elektrische boiler huur
  • C.v.-ketel type Gas
  • C.v.-ketel bouwjaar 2012
  • Eigendom

Tuin & Buitenruimte

  • Ligging Aan water, aan rustige weg, in woonwijk, open ligging
  • Hoofdtuin Tuin rondom
  • Oppervlakte hoofdtuin
  • Ligging hoofdtuin
  • Achterom 1
  • Kwaliteit tuin Normaal

Bergruimte

  • Schuur / berging Vrijstaand hout
  • Aantal schuren / bergingen
  • Voorzieningen

Parkeergelegenheid

  • Parkeerfaciliteiten Openbaar parkeren, op eigen terrein
  • Garage Garagebox

Wijk statistieken

Burgerlijke staat
  • Gehuwd
  • Ongehuwd
  • Gescheiden
  • Verweduwd
Leeftijd in gemeente
0 - 15 jaar
15 - 25 jaar
25-45 jaar
45 - 65 jaar
65+ jaar
  • 0 - 15 jaar
  • 15 - 25 jaar
  • 25 - 45 jaar
  • 45 - 65 jaar
  • 65+ jaar
Gezinnen met kinderen
Met kinderen
Zonder kinderen
Alleenstaand
  • Met kinderen
  • Zonder kinderen
  • Alleenstaand
Leeftijd buurtbewoners
0 - 15 jaar
15 - 25 jaar
25-45 jaar
45 - 65 jaar
65+ jaar
  • 0 - 15 jaar
  • 15 - 25 jaar
  • 25 - 45 jaar
  • 45 - 65 jaar
  • 65+ jaar
Bewoners in de straat
Man
Vrouw
  • Man
  • Vrouw

In de buurt

    Documenten

      Je nieuwe huis vinden we samen

      Neem vrijblijvend contact met ons op

      De Laen