Omschrijving

Fijn wonen in een GROTE eengezinswoning in een RUSTIGE autoluwe straat, direct in het centrum van Pijnacker met de winkels om de hoek.

De voorgevel doet niet vermoeden dat het zo'n grote woning is, in 2007 is deze woning van top tot teen gerenoveerd, uitgebreid en gemoderniseerd. Sinds 2015 zijn er diverse extra investeringen gedaan om het wooncomfort te optimaliseren.

Ideaal voor bijvoorbeeld starters of een jong gezin!…

Lees meer

Kenmerken

  • Status Beschikbaar
  • Vraagprijs € 450.000,- kosten koper
  • Woonoppervlakte ca. 105 m2
  • Aantal slaapkamers 3
  • Bouwjaar 1935
Meer kenmerken
Heb je vragen? Of wil je even binnenkijken?

Neem vrijblijvend contact met ons op

De Laen
Download de brochure

Bekijk op het gemak de brochure van deze woning

Downloaden

Omschrijving

Fijn wonen in een GROTE eengezinswoning in een RUSTIGE autoluwe straat, direct in het centrum van Pijnacker met de winkels om de hoek.

De voorgevel doet niet vermoeden dat het zo’n grote woning is, in 2007 is deze woning van top tot teen gerenoveerd, uitgebreid en gemoderniseerd. Sinds 2015 zijn er diverse extra investeringen gedaan om het wooncomfort te optimaliseren.

Ideaal voor bijvoorbeeld starters of een jong gezin! Veel binnen- en buitenruimte, rustige straat en alle faciliteiten zijn vlakbij zoals scholen, sportvoorzieningen, diverse natuurgebieden, het zojuist uitgebreide winkelcentrum ‘Ackershof’, het openbaar vervoer (Randstadrail) en de uitvalswegen.

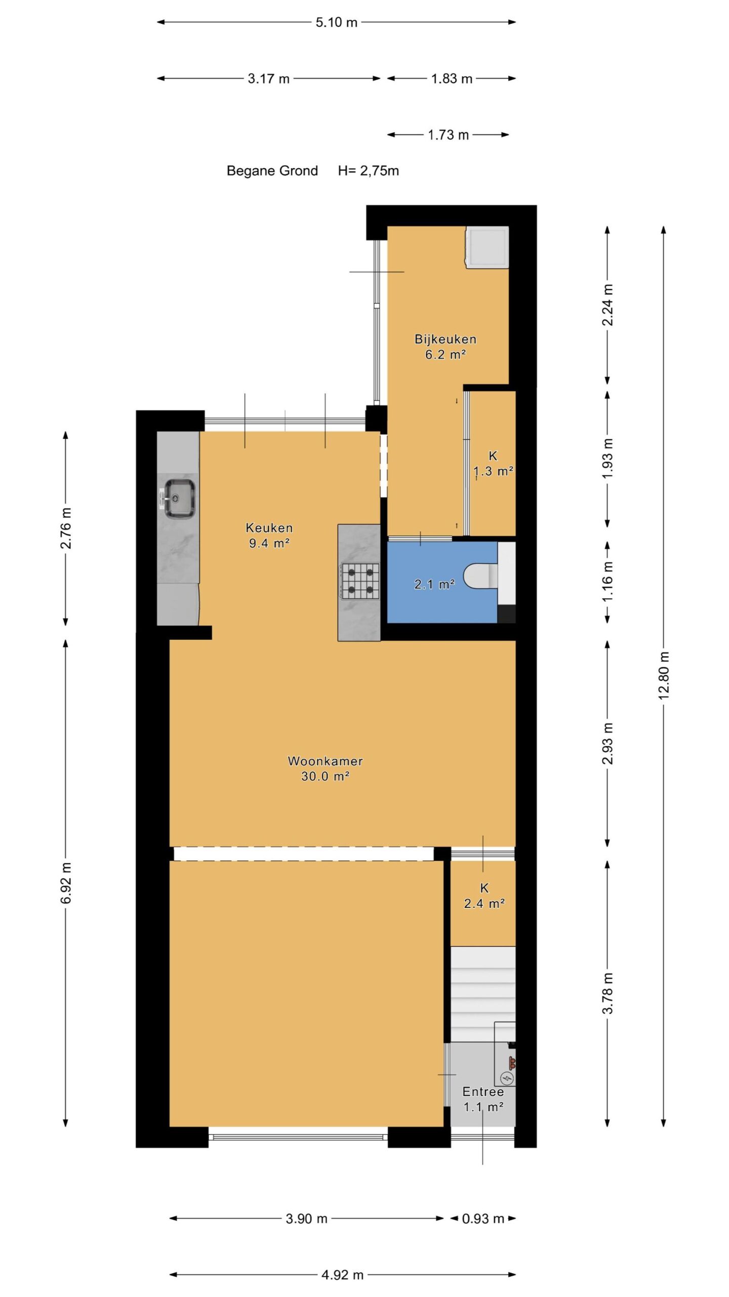
Via de entree toegang tot de hal met meterkast, trapopgang en toegang naar de ruime living. De woonkamer is voorzien van een lichte laminaatvloer, de open keuken is voorzien van een fraaie tegelvloer en twee tegenover elkaar staande keukenblokken met alle inbouwapparatuur. Via de keuken is er toegang tot de praktische bijkeuken met een ruime inbouwkast en aansluiting voor de wasmachine en de droger. Ook is daar een verzorgde toiletruimte met zwevend toilet. De achtertuin is op het zuiden georiënteerd, volledig betegeld en is voorzien van een achterom en een vrijstaand stenen berging.

Eerste verdieping: Overloop met inbouwkast en voorzien van een laminaatvloer, drie grote slaapkamers en een goed ingedeelde badkamer. De slaapkamer aan de voorzijde is voorzien van zeil op de vloer en biedt toegang tot de vliering voor extra bergruimte. De slaapkamers aan de achterzijde zijn voorzien van een fraaie laminaatvloer. De badkamer is volledig betegeld en voorzien van een douchecabine, een kunststof ligbad, een duoblok toilet, een wastafelmeubel met twee laden en een elektrisch bedienbaar dakraam. Op deze etage is airconditioning geïnstalleerd.

Bijzonderheden:
– Uitbouw en opbouw 1e etage (2007)
– CV HR ketel (2017)
– 8 zonnepanelen (2023)
– Unit airconditioning (2015)
– Tuin op het Zuiden
– Centrumligging
– Deels kunststof kozijnen, deels hardhouten kozijnen
– Platdak opnieuw voorzien van bitumen dakbedekking (dec 2022)
– Puntdak vernieuwd (hout en folie, juni 2025)
– Oplevering in overleg, 1e kwartaal 2026
– Ouderdomsclausule en asbestclausule van toepassing.

De Laen makelaardij is de NVM-makelaar van de verkoper. Wij adviseren u uw eigen NVM-makelaar in te schakelen om uw belangen te behartigen bij de aankoop van dit object. 

Deze advertentie en de bijbehorende vragenlijst zijn met de grootst mogelijke zorg samengesteld.

Onzerzijds wordt echter geen enkele aansprakelijkheid aanvaard voor enige onvolledigheid, onjuistheid of anderszins, dan wel de gevolgen daarvan. 

Alle opgegeven maten en oppervlakten zijn indicatief.

Heb je vragen? Of wil je even binnenkijken?

Neem vrijblijvend contact met ons op

De Laen
Download de brochure

Bekijk op het gemak de brochure van deze woning

Downloaden

Kenmerken

Overdracht

  • Status Beschikbaar
  • Vraagprijs € 450.000,- Kosten koper
  • Aanvaarding In overleg

Bouwvorm & Onderhoud

  • Soort woonhuis Tussenwoning
  • Soort bouw Bestaande bouw
  • Bouwjaar 1935
  • Soort dak Samengesteld dak
  • Onderhoud binnen Goed
  • Onderhoud buiten Goed

Oppervlakten & inhoud

  • Gebruiksoppervlakte wonen ca. 105 m2
  • Gebouwgebonden buitenruimte
  • Externe bergruimte ca. 4m2
  • Overige inpandige ruimte
  • Inhoud ca. 380m3
  • Perceeloppervlakte ca. 117m2

Indeling

  • Aantal kamers 4 kamers
  • Aantal slaapkamers 3
  • Aantal badkamers 1 badkamer
  • Badkamervoorzieningen Ligbad, toilet, douche, wastafel
  • Aantal woonlagen 3 woonlagen
  • Voorzieningen Airconditioning, zonnepanelen, natuurlijke ventilatie

Energie & Installatie

  • Energielabel A
  • Isolatie Dakisolatie, muurisolatie, dubbel glas
  • Verwarming Cv ketel
  • Warm water Cv ketel
  • C.v.-ketel type Gas
  • C.v.-ketel bouwjaar 2017
  • Eigendom Eigendom

Tuin & Buitenruimte

  • Ligging Aan rustige weg, in centrum, beschutte ligging
  • Hoofdtuin Achtertuin
  • Oppervlakte hoofdtuin ca. 60m2
  • Ligging hoofdtuin Zuid
  • Achterom
  • Kwaliteit tuin Normaal

Bergruimte

  • Schuur / berging Vrijstaand steen
  • Aantal schuren / bergingen 1
  • Voorzieningen

Parkeergelegenheid

  • Parkeerfaciliteiten Openbaar parkeren
  • Garage Geen garage

Wijk statistieken

Burgerlijke staat
  • Gehuwd
  • Ongehuwd
  • Gescheiden
  • Verweduwd
Leeftijd in gemeente
0 - 15 jaar
15 - 25 jaar
25-45 jaar
45 - 65 jaar
65+ jaar
  • 0 - 15 jaar
  • 15 - 25 jaar
  • 25 - 45 jaar
  • 45 - 65 jaar
  • 65+ jaar
Gezinnen met kinderen
Met kinderen
Zonder kinderen
Alleenstaand
  • Met kinderen
  • Zonder kinderen
  • Alleenstaand
Leeftijd buurtbewoners
0 - 15 jaar
15 - 25 jaar
25-45 jaar
45 - 65 jaar
65+ jaar
  • 0 - 15 jaar
  • 15 - 25 jaar
  • 25 - 45 jaar
  • 45 - 65 jaar
  • 65+ jaar
Bewoners in de straat
Man
Vrouw
  • Man
  • Vrouw

Documenten

    Je nieuwe huis vinden we samen

    Neem vrijblijvend contact met ons op

    De Laen