Omschrijving

Comfortabel wonen met lage energiekosten (energielabel A+) in een sfeervolle omgeving.

Welkom bij deze keurige tussenwoning gelegen in een autovrij hofje in een rustige en groene omgeving.
De woning is de afgelopen jaren grondig onder handen genomen en flink verduurzaamd, met nieuwe kozijnen met HR++ beglazing (2018), vloer- (2022), gevel- (2020) en dakisolatie (2019) en 7 zonnepanelen (2021).
De 4 grote slaapkamers,…

Lees meer

Kenmerken

  • Status Verkocht
  • Vraagprijs € 499.000,- kosten koper
  • Woonoppervlakte ca. 109 m2
  • Aantal slaapkamers 4
  • Bouwjaar 1968
Meer kenmerken
Heb je vragen? Of wil je even binnenkijken?

Neem vrijblijvend contact met ons op

De Laen
Download de brochure

Bekijk op het gemak de brochure van deze woning

Downloaden

Omschrijving

Comfortabel wonen met lage energiekosten (energielabel A+) in een sfeervolle omgeving.

Welkom bij deze keurige tussenwoning gelegen in een autovrij hofje in een rustige en groene omgeving.
De woning is de afgelopen jaren grondig onder handen genomen en flink verduurzaamd, met nieuwe kozijnen met HR++ beglazing (2018), vloer- (2022), gevel- (2020) en dakisolatie (2019) en 7 zonnepanelen (2021).
De 4 grote slaapkamers, de moderne badkamer (2020) en de geliefde locatie in Pijnacker Noord, op loopafstand van het Balijbos, de winkels en diverse scholen, maken dit een ideale gezinswoning!

Indeling:
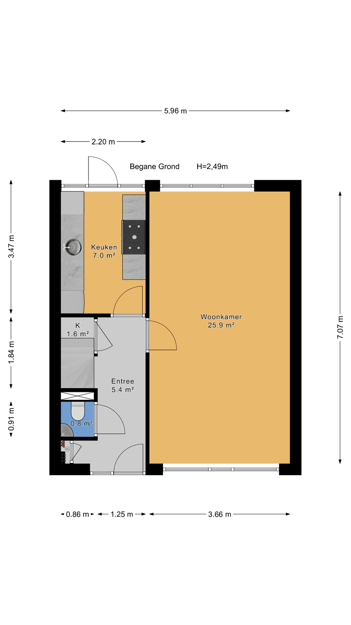
Begane grond: Via de groen aangelegde voortuin is de entree toegankelijk. Hal met meterkast, toiletruimte en trapopgang met berging. De doorzon woonkamer is een heerlijke ruimte, afgewerkt met een keurige parketvloer. Er is voldoende ruimte voor een grote eet- en zithoek, met veel lichtinval en groen uitzicht.
Via de hal is de keuken bereikbaar, die door de verkoper wordt verwijderd, waardoor de woning zonder keuken wordt opgeleverd.
Wauw wat een prachtige tuin! Werkelijk een groene oase met veel beplanting, een groene pergola en gewenste privacy dankzij de leilinden. Met een ligging op het zonnige zuidoosten is het genieten in de zon. Achterin de tuin bevindt zich een berging met overkapping, ideaal voor opslag.

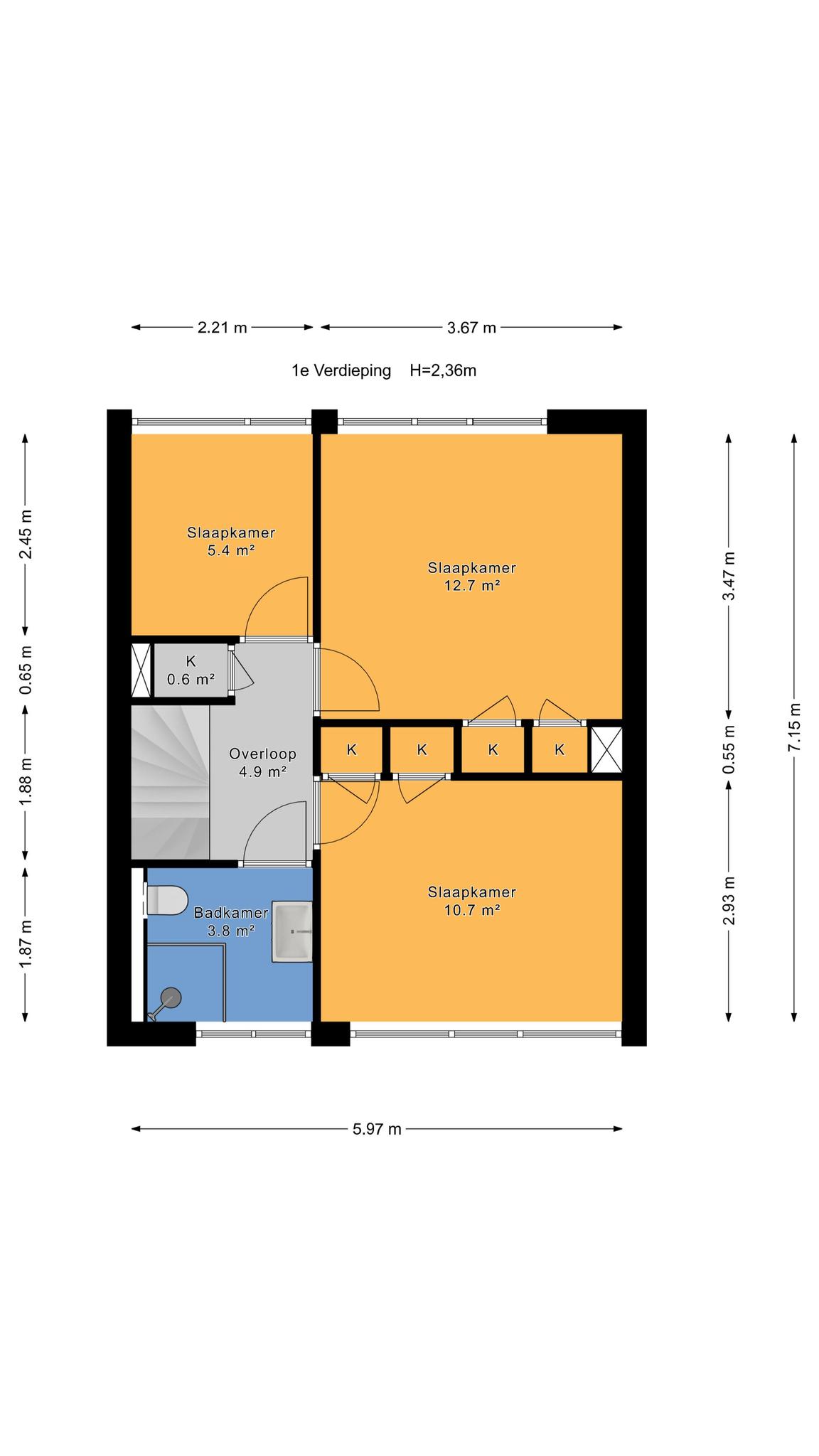
1e verdieping: Deze verdieping is verdeeld in 3 goed formaat slaapkamers. De kamers hebben grote raampartijen met veel lichtinval, elektrische rolluiken en 2 slaapkamers zijn voorzien van vaste kasten. De moderne badkamer, vernieuwd in 2020, is praktisch ingericht met een douche, wastafelmeubel en een 2e toilet.

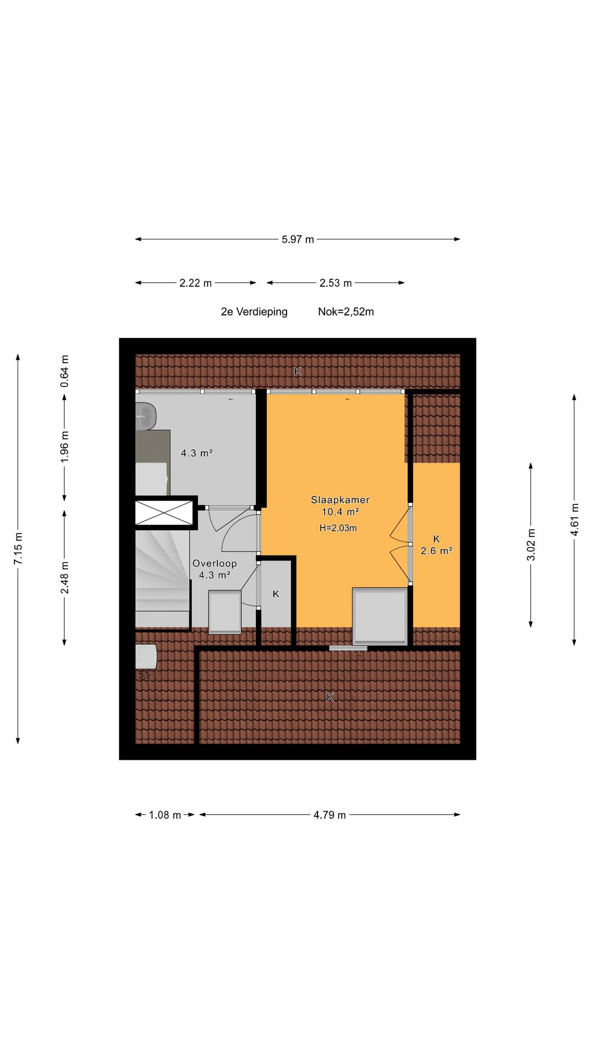
2e verdieping: In 2019 is de voormalige dakkapel vervangen voor een kunststof dakkapel. Hierdoor is een zeer grote slaapkamer en een wasruimte gecreëerd. In de slaapkamer is prettig veel opbergruimte gerealiseerd met vaste kasten en knieschotten.
De wasruimte is voorzien van een wasmachine aansluiting, wastafel en omvormer. De cv-ketel is keurig weggewerkt op de overloop. Tot slot is er een vliering voor de extra opbergruimte.

Bijzonderheden:
– Zeer energiezuinig wonen met lage energiekosten;
– Volledig geïsoleerd en zonnepanelen, energielabel A+;
– Kunststof kozijnen met HR++ beglazing, met grotendeels elektrische rolluiken;
– Duurzame laag temperatuur radiatoren;
– Moderne badkamer uit 2020;
– Dakkapel vernieuwd in 2019;
– Populaire ligging in de kindvriendelijke wijk Pijnacker Noord, nabij het Balijbos, winkels en diverse scholen;
– De keuken wordt voor oplevering verwijderd, de woning wordt zonder keuken opgeleverd;
– Ouderdoms- en asbestclausule van toepassing.

Heb je vragen? Of wil je even binnenkijken?

Neem vrijblijvend contact met ons op

De Laen
Download de brochure

Bekijk op het gemak de brochure van deze woning

Downloaden

Kenmerken

Overdracht

  • Status Verkocht
  • Vraagprijs € 499.000,- Kosten koper
  • Aanvaarding In overleg

Bouwvorm & Onderhoud

  • Soort woonhuis Tussenwoning
  • Soort bouw Bestaande bouw
  • Bouwjaar 1968
  • Soort dak Zadeldak
  • Onderhoud binnen Goed
  • Onderhoud buiten Uitstekend

Oppervlakten & inhoud

  • Gebruiksoppervlakte wonen ca. 109 m2
  • Gebouwgebonden buitenruimte
  • Externe bergruimte ca. 7m2
  • Overige inpandige ruimte
  • Inhoud ca. 361m3
  • Perceeloppervlakte ca. 140m2

Indeling

  • Aantal kamers 6 kamers
  • Aantal slaapkamers 4
  • Aantal badkamers 1 badkamer
  • Badkamervoorzieningen Toilet, douche, wastafelmeubel
  • Aantal woonlagen 3 woonlagen
  • Voorzieningen Rolluiken, buitenzonwering, dakraam, zonnepanelen

Energie & Installatie

  • Energielabel A+
  • Isolatie Volledig geisoleerd, hr glas
  • Verwarming Cv ketel
  • Warm water Cv ketel
  • C.v.-ketel type Gas
  • C.v.-ketel bouwjaar 2020
  • Eigendom Eigendom

Tuin & Buitenruimte

  • Ligging In woonwijk
  • Hoofdtuin Achtertuin
  • Oppervlakte hoofdtuin ca. 78m2
  • Ligging hoofdtuin Zuidoost
  • Achterom 1
  • Kwaliteit tuin Fraai aangelegd

Bergruimte

  • Schuur / berging Vrijstaand steen
  • Aantal schuren / bergingen 1
  • Voorzieningen Voorzien van elektra

Parkeergelegenheid

  • Parkeerfaciliteiten Openbaar parkeren
  • Garage Geen garage

Wijk statistieken

Burgerlijke staat
  • Gehuwd
  • Ongehuwd
  • Gescheiden
  • Verweduwd
Leeftijd in gemeente
0 - 15 jaar
15 - 25 jaar
25-45 jaar
45 - 65 jaar
65+ jaar
  • 0 - 15 jaar
  • 15 - 25 jaar
  • 25 - 45 jaar
  • 45 - 65 jaar
  • 65+ jaar
Gezinnen met kinderen
Met kinderen
Zonder kinderen
Alleenstaand
  • Met kinderen
  • Zonder kinderen
  • Alleenstaand
Leeftijd buurtbewoners
0 - 15 jaar
15 - 25 jaar
25-45 jaar
45 - 65 jaar
65+ jaar
  • 0 - 15 jaar
  • 15 - 25 jaar
  • 25 - 45 jaar
  • 45 - 65 jaar
  • 65+ jaar
Bewoners in de straat
Man
Vrouw
  • Man
  • Vrouw

Documenten

    Je nieuwe huis vinden we samen

    Neem vrijblijvend contact met ons op

    De Laen