Omschrijving

Royaal wonen in een comfortabele herenhuis met een perfecte ligging in de kindvriendelijke wijk Keijzershof.

Een unieke kans om te wonen in een uitzonderlijk ruime en veelzijdige woning, met maar liefst 4 verdiepingen. Ideaal voor gezinnen die op zoek zijn naar ruimte, comfort en luxe. Met 5 slaapkamers, 2 badkamers en een keurige tuin met overkapping biedt deze woning alles wat u zich kunt wensen. Bovendien zijn er 2 eigen…

Lees meer

Kenmerken

  • Status Verkocht
  • Vraagprijs € 795.000,- kosten koper
  • Woonoppervlakte ca. 210 m2
  • Aantal slaapkamers 5
  • Bouwjaar 2013
Meer kenmerken
Heb je vragen? Of wil je even binnenkijken?

Neem vrijblijvend contact met ons op

De Laen
Download de brochure

Bekijk op het gemak de brochure van deze woning

Downloaden

Omschrijving

Royaal wonen in een comfortabele herenhuis met een perfecte ligging in de kindvriendelijke wijk Keijzershof.

Een unieke kans om te wonen in een uitzonderlijk ruime en veelzijdige woning, met maar liefst 4 verdiepingen. Ideaal voor gezinnen die op zoek zijn naar ruimte, comfort en luxe. Met 5 slaapkamers, 2 badkamers en een keurige tuin met overkapping biedt deze woning alles wat u zich kunt wensen. Bovendien zijn er 2 eigen parkeerplekken direct achter de tuin.

Keijzershof is een kindvriendelijke wijk, in de directe omgeving zijn voldoende speeltuinen en basisscholen. Voor de dagelijkse boodschappen is het winkelcentrum op loopafstand. Liever een bezoek aan de grote steden? De RandstadRail is op loopafstand en de uitvalswegen zijn goed bereikbaar.

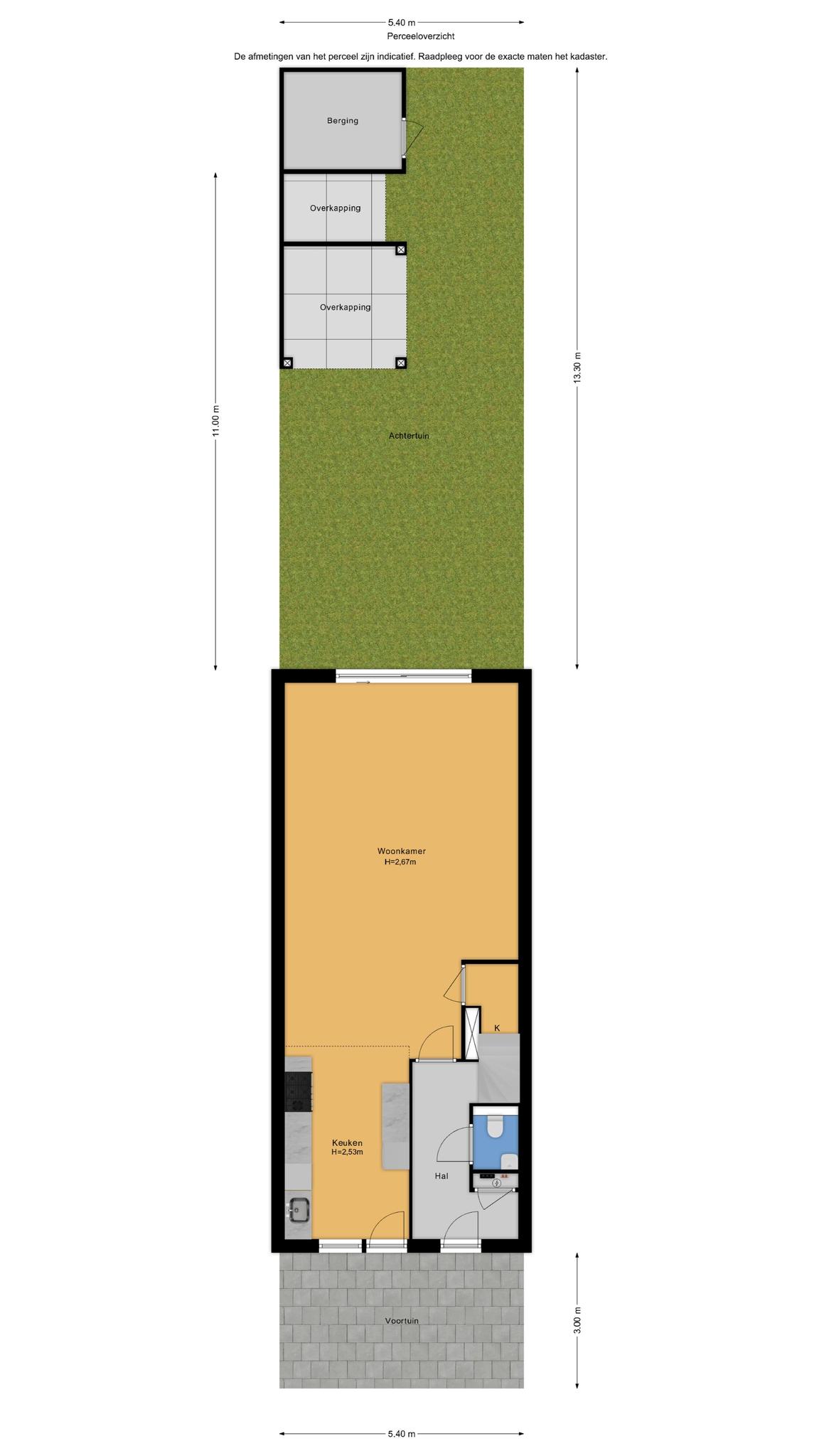
Indeling
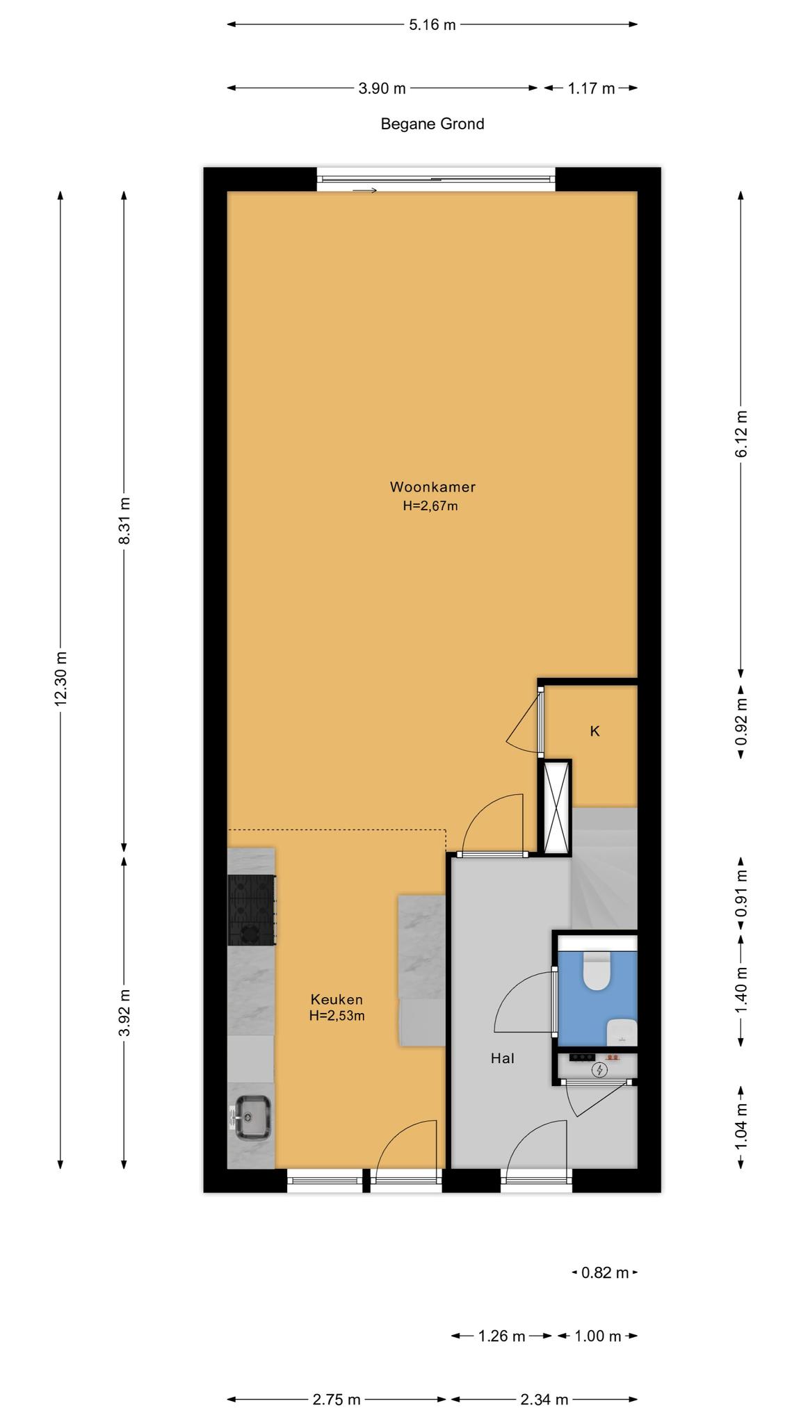
Begane grond:
Bij aankomst valt direct de gezellige voortuin op, met zicht op de gracht. De woning wordt ook wel een grachtenpand genoemd, door de ligging aan het water.
Kom binnen via de entree hal met de meterkast, de trapopgang en een modern afgewerkte toiletruimte met fonteintje.
De woonkamer is aan de achterzijde uitgebouwd. Deze sfeervolle leefruimte biedt volop plek voor zowel een comfortabele zithoek als een ruime eethoek. Daarnaast is er een handige trapkast voor extra opbergruimte.

De uitgebreide keuken biedt volop ruimte voor kookliefhebbers. Aan de voorzijde van de woning bevindt zich de parallel keuken, uitgerust met diverse inbouwapparatuur, te weten 2 (!) vaatwassers, een inbouw koffiezetapparaat, koelkast, vriezer, 5-pitsgaskookplaat en stoomoven. Via de openslaande deuren is er toegang tot de voortuin.

Tuin:
Wat een heerlijke tuin! Via de schuifpui is de tuin toegankelijk. De tuin is gezellig ingericht en biedt voldoende ruimte voor diverse zithoeken. Geniet tot laat in de avond onder de overkapping, welke is voorzien van een verstelbaar dak met verlichting.
In de berging met elektra is voldoende opbergruimte. Aan de berging is een extra overkapping gebouwd als bergruimte.

1e verdieping:
De slaapkamer aan de achterzijde is zeer royaal te noemen, deze is vanuit de bouw uitgebouwd. Ideaal is de moderne en-suite badkamer met een fijne inloopdouche, wastafel en vloerverwarming.
De slaapkamer aan de voorzijde is voorzien van een charmant Frans balkon, waardoor er volop licht binnenvalt.
De 2e badkamer is uitgerust met inloopdouche en een dubbele wastafel. Tot slot is er op deze verdieping een separaat toiletruimte.

2e verdieping:
Deze verdieping is verdeeld in 2 goed formaat slaapkamers en een praktische wasruimte/inloopkast. De slaapkamer aan de voorzijde heeft eveneens een Frans balkon, wat wederom zorgt voor een prachtige lichtinval. De ruime slaapkamer aan de achterzijde kan indien gewenst verdeeld worden in 2 slaapkamers.

3e verdieping:
Wauw wat een ruimte! De hoge nok geeft een nog ruimtelijker gevoel. Deze slaapkamer biedt meerdere mogelijkheden, geheel naar eigen wens.
Aan opbergruimte is geen gebrek dankzij de knieschotten en de berging. In de berging is tevens de cv-ketel en mechanische ventilatie geïnstalleerd.

Kortom, een uitzonderlijk ruim en goed afgewerkt familiehuis, voorzien van alle denkbare luxe en comfort. Kom langs en laat u verrassen door de ruimte en de mogelijkheden die deze woning te bieden heeft!

Bijzonderheden:
– Royaal herenhuis met 4 verdiepingen;
– Volledig geïsoleerd tijdens de bouw (2013), energielabel A;
– 2 eigen parkeerplekken, gezamenlijk onderhoud service kosten €190,- per jaar.

Oplevering, in overleg, ca. januari 2025.

Heb je vragen? Of wil je even binnenkijken?

Neem vrijblijvend contact met ons op

De Laen
Download de brochure

Bekijk op het gemak de brochure van deze woning

Downloaden

Kenmerken

Overdracht

  • Status Verkocht
  • Vraagprijs € 795.000,- Kosten koper
  • Aanvaarding In overleg

Bouwvorm & Onderhoud

  • Soort woonhuis Tussenwoning
  • Soort bouw Bestaande bouw
  • Bouwjaar 2013
  • Soort dak
  • Onderhoud binnen Goed
  • Onderhoud buiten Goed

Oppervlakten & inhoud

  • Gebruiksoppervlakte wonen ca. 210 m2
  • Gebouwgebonden buitenruimte
  • Externe bergruimte ca. 6m2
  • Overige inpandige ruimte
  • Inhoud ca. 747m3
  • Perceeloppervlakte ca. 158m2

Indeling

  • Aantal kamers 6 kamers
  • Aantal slaapkamers 5
  • Aantal badkamers 2 badkamers
  • Badkamervoorzieningen Wastafel, inloopdouche, vloerverwarming, dubbele wastafel, inloopdouche
  • Aantal woonlagen 4 woonlagen
  • Voorzieningen

Energie & Installatie

  • Energielabel A
  • Isolatie Volledig geisoleerd
  • Verwarming Cv ketel
  • Warm water Cv ketel
  • C.v.-ketel type Gas
  • C.v.-ketel bouwjaar
  • Eigendom Eigendom

Tuin & Buitenruimte

  • Ligging In woonwijk
  • Hoofdtuin Achtertuin
  • Oppervlakte hoofdtuin ca. 72m2
  • Ligging hoofdtuin Noord
  • Achterom
  • Kwaliteit tuin Fraai aangelegd

Bergruimte

  • Schuur / berging Vrijstaand hout
  • Aantal schuren / bergingen
  • Voorzieningen

Parkeergelegenheid

  • Parkeerfaciliteiten Openbaar parkeren
  • Garage Parkeerplaats, geen garage

Wijk statistieken

Burgerlijke staat
  • Gehuwd
  • Ongehuwd
  • Gescheiden
  • Verweduwd
Leeftijd in gemeente
0 - 15 jaar
15 - 25 jaar
25-45 jaar
45 - 65 jaar
65+ jaar
  • 0 - 15 jaar
  • 15 - 25 jaar
  • 25 - 45 jaar
  • 45 - 65 jaar
  • 65+ jaar
Gezinnen met kinderen
Met kinderen
Zonder kinderen
Alleenstaand
  • Met kinderen
  • Zonder kinderen
  • Alleenstaand
Leeftijd buurtbewoners
0 - 15 jaar
15 - 25 jaar
25-45 jaar
45 - 65 jaar
65+ jaar
  • 0 - 15 jaar
  • 15 - 25 jaar
  • 25 - 45 jaar
  • 45 - 65 jaar
  • 65+ jaar
Bewoners in de straat
Man
Vrouw
  • Man
  • Vrouw

Documenten

    Je nieuwe huis vinden we samen

    Neem vrijblijvend contact met ons op

    De Laen