Omschrijving

Perfect onderhouden tussenwoning met zonnige tuin in geliefde wijk Koningshof

In de kindvriendelijke en rustige wijk Koningshof staat deze keurige tussenwoning aan een autovrije straat. De woning biedt maar liefst 4 slaapkamers, een praktische wasruimte, een zonnige tuin en is door de jaren heen zorgvuldig gemoderniseerd. Met volledig kunststof kozijnen en gevelbeplating (2025 en deels 2016), een moderne badkamer en toilet (2020)…

Lees meer

Kenmerken

  • Status Verkocht
  • Vraagprijs € 495.000,- kosten koper
  • Woonoppervlakte ca. 114 m2
  • Aantal slaapkamers 4
  • Bouwjaar 1979
Meer kenmerken
Heb je vragen? Of wil je even binnenkijken?

Neem vrijblijvend contact met ons op

De Laen
Download de brochure

Bekijk op het gemak de brochure van deze woning

Downloaden

Omschrijving

Perfect onderhouden tussenwoning met zonnige tuin in geliefde wijk Koningshof

In de kindvriendelijke en rustige wijk Koningshof staat deze keurige tussenwoning aan een autovrije straat. De woning biedt maar liefst 4 slaapkamers, een praktische wasruimte, een zonnige tuin en is door de jaren heen zorgvuldig gemoderniseerd. Met volledig kunststof kozijnen en gevelbeplating (2025 en deels 2016), een moderne badkamer en toilet (2020) en een recente cv-ketel (2021) is deze woning klaar voor de toekomst.
De ligging in een groene, verkeersluwe omgeving met speeltuintjes, scholen en winkels op loopafstand maakt het geheel compleet.

Indeling
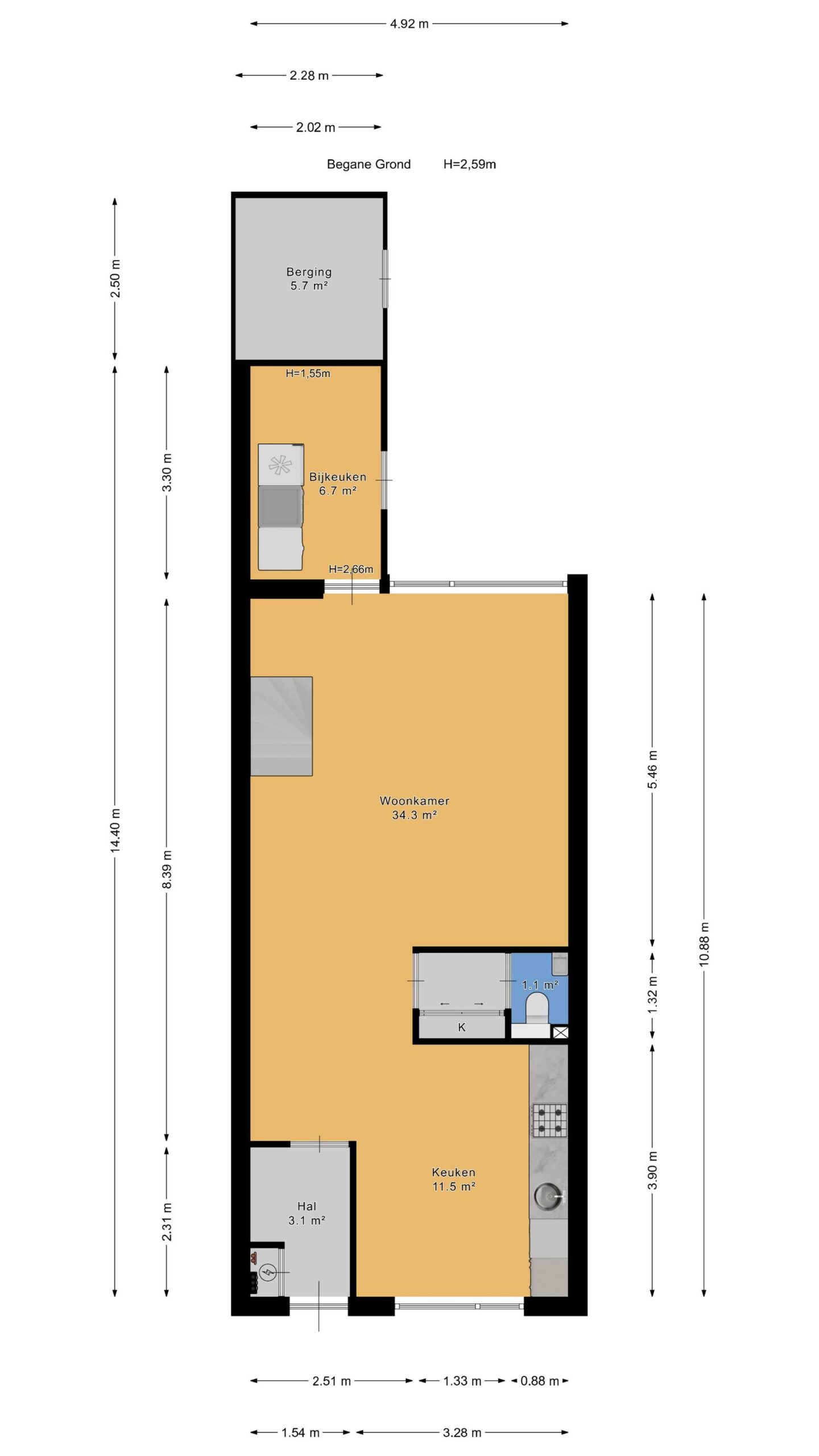
Begane grond
Entree met hal, meterkast en garderobe. De lichte woonkamer is tuingericht en biedt volop ruimte voor een gezellige zithoek. Aan de voorzijde bevindt zich de open keuken, voorzien van koelkast, vaatwasser, 4-pits gaskookplaat en oven, met fraai uitzicht op de voortuin. In het midden bevindt zich een hal met toegang tot de moderne toiletruimte met fonteintje. In de vaste kast is, netjes uit het zicht, de cv-ketel (2021) is geplaatst.
Aan de achterzijde bevindt zich de nette bijkeuken met aansluitingen voor wasmachine en droger en plaats voor een vriezer. Vanuit de bijkeuken is er toegang tot de achtertuin.

Tuin
De zonnige, onderhoudsvriendelijke achtertuin is keurig bestraat en voorzien van een nieuwe schutting (2024). Er is ruimte voor meerdere zitjes in de zon. De houten berging met elektra is prettig ruim en biedt plaats voor de fietsen en tuinspullen.

1e verdieping
De overloop geeft toegang tot vier ruime slaapkamers, uitgerust met rolluiken. Wat een prachtige badkamer! De moderne badkamer (2020) is voorzien van een inloopdouche, wastafelmeubel en tweede toilet.

Vliering
Praktische bergzolder bereikbaar via een vlizotrap.

Locatie
De woning ligt in de populaire wijk Koningshof, bekend om zijn kindvriendelijke karakter, autoluwe straten en groene opzet. Scholen, speelgelegenheden en buurtwinkels liggen op loop- en fietsafstand. Het gezellige centrum van Pijnacker, het metrostation (RandstadRail) en uitvalswegen richting Delft, Rotterdam en Den Haag zijn binnen enkele minuten bereikbaar!

Bijzonderheden
– Kunststof kozijnen en gevelbeplating volledig vervangen in 2025 en 2016
– Cv-ketel vernieuwd in 2021
– Dakbedekking dakopbouw ca. 2022 vervangen
– Moderne badkamer en toilet uit 2020
– Nieuwe schutting geplaatst in 2024
– Energielabel B
– Gelegen in een autovrije straat in een kindvriendelijke wijk
– Ouderdoms- en asbestclausule van toepassing.

De Laen makelaardij is de NVM-makelaar van de verkoper. Wij adviseren u uw eigen NVM-makelaar in te schakelen om uw belangen te behartigen bij de aankoop van dit object. 
Deze advertentie en de bijbehorende vragenlijst zijn met de grootst mogelijke zorg samengesteld.
Onzerzijds wordt echter geen enkele aansprakelijkheid aanvaard voor enige onvolledigheid, onjuistheid of anderszins, dan wel de gevolgen daarvan. 
Alle opgegeven maten en oppervlakten zijn indicatief.

Heb je vragen? Of wil je even binnenkijken?

Neem vrijblijvend contact met ons op

De Laen
Download de brochure

Bekijk op het gemak de brochure van deze woning

Downloaden

Kenmerken

Overdracht

  • Status Verkocht
  • Vraagprijs € 495.000,- Kosten koper
  • Aanvaarding In overleg

Bouwvorm & Onderhoud

  • Soort woonhuis Tussenwoning
  • Soort bouw Bestaande bouw
  • Bouwjaar 1979
  • Soort dak Samengesteld dak
  • Onderhoud binnen Goed
  • Onderhoud buiten Goed tot uitstekend

Oppervlakten & inhoud

  • Gebruiksoppervlakte wonen ca. 114 m2
  • Gebouwgebonden buitenruimte
  • Externe bergruimte ca. 6m2
  • Overige inpandige ruimte
  • Inhoud ca. 390m3
  • Perceeloppervlakte ca. 130m2

Indeling

  • Aantal kamers 5 kamers
  • Aantal slaapkamers 4
  • Aantal badkamers 1 badkamer
  • Badkamervoorzieningen Toilet, wastafelmeubel, inloopdouche
  • Aantal woonlagen 3 woonlagen
  • Voorzieningen Mechanische ventilatie, rolluiken, buitenzonwering

Energie & Installatie

  • Energielabel B
  • Isolatie Muurisolatie, dubbel glas, hr glas
  • Verwarming Cv ketel
  • Warm water Cv ketel
  • C.v.-ketel type Gas
  • C.v.-ketel bouwjaar 2021
  • Eigendom Eigendom

Tuin & Buitenruimte

  • Ligging Aan rustige weg, in woonwijk
  • Hoofdtuin Achtertuin
  • Oppervlakte hoofdtuin ca. 33m2
  • Ligging hoofdtuin Zuidoost
  • Achterom 1
  • Kwaliteit tuin Fraai aangelegd

Bergruimte

  • Schuur / berging Aangebouwd hout
  • Aantal schuren / bergingen 1
  • Voorzieningen Voorzien van elektra

Parkeergelegenheid

  • Parkeerfaciliteiten Openbaar parkeren
  • Garage Geen garage

Wijk statistieken

Burgerlijke staat
  • Gehuwd
  • Ongehuwd
  • Gescheiden
  • Verweduwd
Leeftijd in gemeente
0 - 15 jaar
15 - 25 jaar
25-45 jaar
45 - 65 jaar
65+ jaar
  • 0 - 15 jaar
  • 15 - 25 jaar
  • 25 - 45 jaar
  • 45 - 65 jaar
  • 65+ jaar
Gezinnen met kinderen
Met kinderen
Zonder kinderen
Alleenstaand
  • Met kinderen
  • Zonder kinderen
  • Alleenstaand
Leeftijd buurtbewoners
0 - 15 jaar
15 - 25 jaar
25-45 jaar
45 - 65 jaar
65+ jaar
  • 0 - 15 jaar
  • 15 - 25 jaar
  • 25 - 45 jaar
  • 45 - 65 jaar
  • 65+ jaar
Bewoners in de straat
Man
Vrouw
  • Man
  • Vrouw

Documenten

    Je nieuwe huis vinden we samen

    Neem vrijblijvend contact met ons op

    De Laen