Omschrijving

Op zoek naar een verzorgde woning op een rustige locatie? Welkom aan Sion 22 in Pijnacker! Deze modern afgewerkte tussenwoning in de groene wijk Koningshof is in 2016 volledig gemoderniseerd. De keuken, het sanitair, de c.v.-ketel en de wand- en vloerafwerking zijn toen allemaal vernieuwd. Recent is de woning bovendien voorzien van onderhoudsvrije kunststof kozijnen met HR++ glas – comfortabel én energiezuinig.

De woning beschikt…

Lees meer

Kenmerken

  • Status Verkocht
  • Vraagprijs € 475.000,- kosten koper
  • Woonoppervlakte ca. 106 m2
  • Aantal slaapkamers 3
  • Bouwjaar 1979
Meer kenmerken
Heb je vragen? Of wil je even binnenkijken?

Neem vrijblijvend contact met ons op

De Laen
Download de brochure

Bekijk op het gemak de brochure van deze woning

Downloaden

Omschrijving

Op zoek naar een verzorgde woning op een rustige locatie? Welkom aan Sion 22 in Pijnacker! Deze modern afgewerkte tussenwoning in de groene wijk Koningshof is in 2016 volledig gemoderniseerd. De keuken, het sanitair, de c.v.-ketel en de wand- en vloerafwerking zijn toen allemaal vernieuwd. Recent is de woning bovendien voorzien van onderhoudsvrije kunststof kozijnen met HR++ glas – comfortabel én energiezuinig.

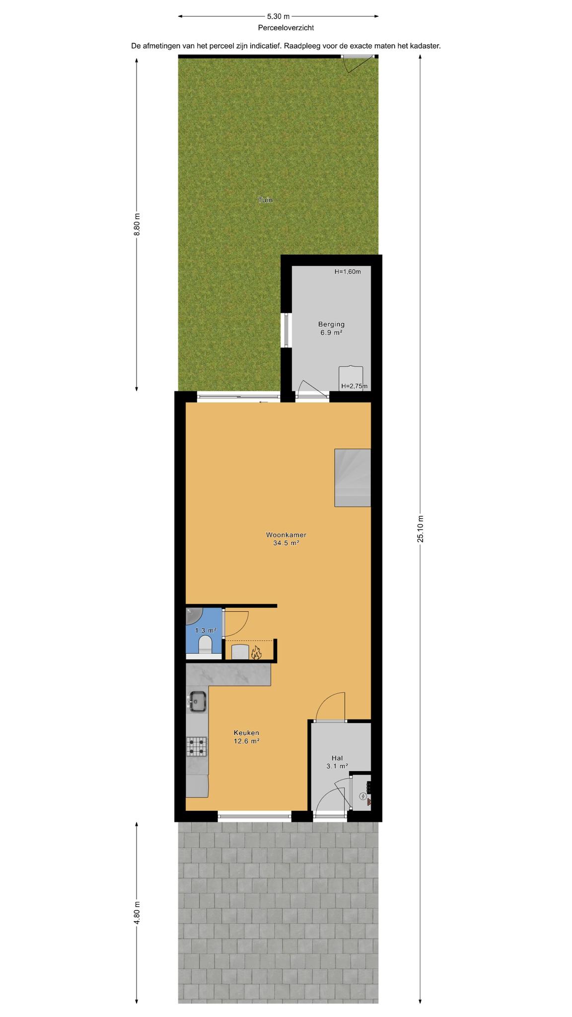
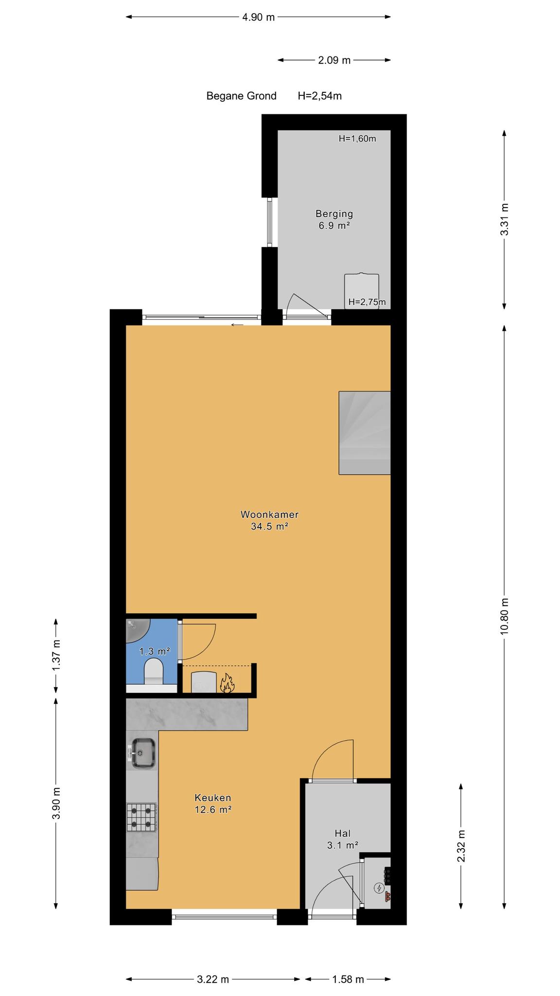
De woning beschikt over een lichte woonkamer met toegang tot de tuin, die dankzij de noordoostelijke ligging ’s ochtends al heerlijk in de zon staat. Je kunt hier zomers eigenlijk de gehele dag van de zon genieten. Aangrenzend aan de achterzijde is de berging met daar ook de aansluiting voor de wasapparatuur.

Op de 1e verdieping bevinden zich 3 slaapkamers en een badkamer. Vanuit 1 van de slaapkamers is de grote bergvliering bereikbaar.

De ligging is perfect voor wie graag rustig woont met alle voorzieningen binnen handbereik. De straat is autovrij, er zijn diverse speeltuinen in de buurt en een basisschool is op loopafstand. Ook metrostation Pijnacker Zuid en winkelcentrum Keijzershof liggen op korte afstand.

Kortom: een fijne gezinswoning waar je zó in kunt. Kom gerust kijken – misschien voelt het meteen als thuis.

Bijzonderheden:

– Kunststof kozijnen met HR++ glas
– 3 slaapkamers
– Complete woning in 2016 gerenoveerd

Oplevering: september 2025

Heb je vragen? Of wil je even binnenkijken?

Neem vrijblijvend contact met ons op

De Laen
Download de brochure

Bekijk op het gemak de brochure van deze woning

Downloaden

Kenmerken

Overdracht

  • Status Verkocht
  • Vraagprijs € 475.000,- Kosten koper
  • Aanvaarding In overleg

Bouwvorm & Onderhoud

  • Soort woonhuis Tussenwoning
  • Soort bouw Bestaande bouw
  • Bouwjaar 1979
  • Soort dak Zadeldak
  • Onderhoud binnen Goed
  • Onderhoud buiten Goed

Oppervlakten & inhoud

  • Gebruiksoppervlakte wonen ca. 106 m2
  • Gebouwgebonden buitenruimte
  • Externe bergruimte
  • Overige inpandige ruimte ca. 11m2
  • Inhoud ca. 413m3
  • Perceeloppervlakte ca. 130m2

Indeling

  • Aantal kamers 4 kamers
  • Aantal slaapkamers 3
  • Aantal badkamers 1 badkamer
  • Badkamervoorzieningen Toilet, douche, wastafelmeubel
  • Aantal woonlagen 3 woonlagen
  • Voorzieningen Tv kabel, schuifpui, glasvezel kabel

Energie & Installatie

  • Energielabel C
  • Isolatie Dakisolatie, muurisolatie, hr glas
  • Verwarming Cv ketel
  • Warm water Cv ketel
  • C.v.-ketel type Gas
  • C.v.-ketel bouwjaar
  • Eigendom Eigendom

Tuin & Buitenruimte

  • Ligging In woonwijk
  • Hoofdtuin Achtertuin
  • Oppervlakte hoofdtuin ca. 47m2
  • Ligging hoofdtuin Noordoost
  • Achterom 1
  • Kwaliteit tuin Normaal

Bergruimte

  • Schuur / berging Aangebouwd steen
  • Aantal schuren / bergingen 1
  • Voorzieningen Voorzien van elektra

Parkeergelegenheid

  • Parkeerfaciliteiten Openbaar parkeren
  • Garage Geen garage

Wijk statistieken

Burgerlijke staat
  • Gehuwd
  • Ongehuwd
  • Gescheiden
  • Verweduwd
Leeftijd in gemeente
0 - 15 jaar
15 - 25 jaar
25-45 jaar
45 - 65 jaar
65+ jaar
  • 0 - 15 jaar
  • 15 - 25 jaar
  • 25 - 45 jaar
  • 45 - 65 jaar
  • 65+ jaar
Gezinnen met kinderen
Met kinderen
Zonder kinderen
Alleenstaand
  • Met kinderen
  • Zonder kinderen
  • Alleenstaand
Leeftijd buurtbewoners
0 - 15 jaar
15 - 25 jaar
25-45 jaar
45 - 65 jaar
65+ jaar
  • 0 - 15 jaar
  • 15 - 25 jaar
  • 25 - 45 jaar
  • 45 - 65 jaar
  • 65+ jaar
Bewoners in de straat
Man
Vrouw
  • Man
  • Vrouw

In de buurt

    Documenten

      Je nieuwe huis vinden we samen

      Neem vrijblijvend contact met ons op

      De Laen