Omschrijving

Sfeervol appartement met tuin op het Noordwesten – Wippolder, Delft

Gelegen in de populaire wijk Wippolder ligt dit verzorgde en praktisch ingedeelde appartement met een fijne tuin. Deze woning biedt comfort, privacy én een fijne buitenruimte!
Met supermarkten, diverse buslijnen (62, 171, 455), uitvalswegen (A13) én de TU Delft op korte afstand is dit een ideale plek voor starters die comfort en een goede bereikbaarheid…

Lees meer

Kenmerken

  • Status Verkocht
  • Vraagprijs € 350.000,- kosten koper
  • Woonoppervlakte ca. 59 m2
  • Aantal slaapkamers 1
  • Bouwjaar 1916
Meer kenmerken
Heb je vragen? Of wil je even binnenkijken?

Neem vrijblijvend contact met ons op

De Laen
Download de brochure

Bekijk op het gemak de brochure van deze woning

Downloaden

Omschrijving

Sfeervol appartement met tuin op het Noordwesten – Wippolder, Delft

Gelegen in de populaire wijk Wippolder ligt dit verzorgde en praktisch ingedeelde appartement met een fijne tuin. Deze woning biedt comfort, privacy én een fijne buitenruimte!
Met supermarkten, diverse buslijnen (62, 171, 455), uitvalswegen (A13) én de TU Delft op korte afstand is dit een ideale plek voor starters die comfort en een goede bereikbaarheid waarderen.

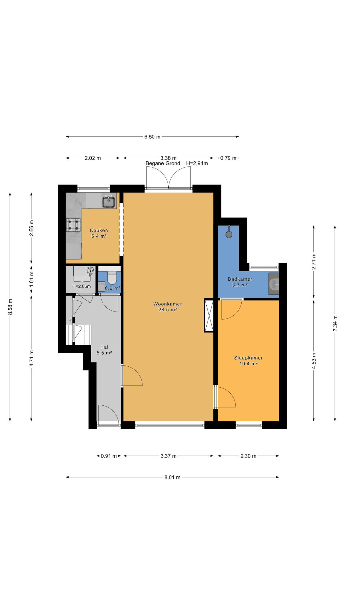
Indeling:
Via een eigen entree betreed je de hal met toegang tot het toilet, de cv-installatie en de wasmachine-aansluiting.
De ruime woonkamer is voorzien van een laminaatvloer en openslaande deuren naar de fraai aangelegde tuin.
De open keuken is uitgerust met diverse inbouwapparatuur zoals een inductiekookplaat, koelkast met vriesvak, oven en een kleine vaatwasser.
De slaapkamer grenst aan de nette badkamer, voorzien van een inloopdouche, wastafel, raam en mechanische ventilatie.

Tuin:
De zonnige tuin op het Noordwesten is keurig aangelegd en biedt veel privacy en rust.

Bijzonderheden:
– Goed onderhouden: houten kozijnen met dubbel glas
– C.v.-ketel uit 2018
– Actieve en gezonde VvE
– De gevels zijn gereinigd, opnieuw gevoegd en geïmpregneerd

De Laen makelaardij is de NVM-makelaar van de verkoper. Wij adviseren u uw eigen NVM-makelaar in te schakelen om uw belangen te behartigen bij de aankoop van dit object.
Deze informatie is door ons met de nodige zorgvuldigheid samengesteld. Onzerzijds wordt echter geen enkele aansprakelijkheid aanvaard voor enige onvolledigheid, onjuistheid of anderszins, dan wel de gevolgen daarvan.
Alle opgegeven maten en oppervlakten zijn indicatief.

Heb je vragen? Of wil je even binnenkijken?

Neem vrijblijvend contact met ons op

De Laen
Download de brochure

Bekijk op het gemak de brochure van deze woning

Downloaden

Kenmerken

Overdracht

  • Status Verkocht
  • Vraagprijs € 350.000,- Kosten koper
  • Aanvaarding Direct

Bouwvorm & Onderhoud

  • Soort woonhuis
  • Soort bouw Bestaande bouw
  • Bouwjaar 1916
  • Soort dak Zadeldak
  • Onderhoud binnen Goed
  • Onderhoud buiten Goed

Oppervlakten & inhoud

  • Gebruiksoppervlakte wonen ca. 59 m2
  • Gebouwgebonden buitenruimte
  • Externe bergruimte
  • Overige inpandige ruimte
  • Inhoud ca. 243m3
  • Perceeloppervlakte

Indeling

  • Aantal kamers 2 kamers
  • Aantal slaapkamers 1
  • Aantal badkamers 1 badkamer
  • Badkamervoorzieningen Wastafel, inloopdouche
  • Aantal woonlagen 1 woonlagen
  • Voorzieningen Mechanische ventilatie, tv kabel

Energie & Installatie

  • Energielabel E
  • Isolatie Dubbel glas
  • Verwarming Cv ketel
  • Warm water Cv ketel
  • C.v.-ketel type Gas
  • C.v.-ketel bouwjaar 2018
  • Eigendom Eigendom

Tuin & Buitenruimte

  • Ligging Aan rustige weg, in woonwijk
  • Hoofdtuin Achtertuin
  • Oppervlakte hoofdtuin ca. 23m2
  • Ligging hoofdtuin Noordwest
  • Achterom
  • Kwaliteit tuin Fraai aangelegd

Bergruimte

  • Schuur / berging
  • Aantal schuren / bergingen
  • Voorzieningen

Parkeergelegenheid

  • Parkeerfaciliteiten Openbaar parkeren
  • Garage Geen garage

Wijk statistieken

Burgerlijke staat
  • Gehuwd
  • Ongehuwd
  • Gescheiden
  • Verweduwd
Leeftijd in gemeente
0 - 15 jaar
15 - 25 jaar
25-45 jaar
45 - 65 jaar
65+ jaar
  • 0 - 15 jaar
  • 15 - 25 jaar
  • 25 - 45 jaar
  • 45 - 65 jaar
  • 65+ jaar
Gezinnen met kinderen
Met kinderen
Zonder kinderen
Alleenstaand
  • Met kinderen
  • Zonder kinderen
  • Alleenstaand
Leeftijd buurtbewoners
0 - 15 jaar
15 - 25 jaar
25-45 jaar
45 - 65 jaar
65+ jaar
  • 0 - 15 jaar
  • 15 - 25 jaar
  • 25 - 45 jaar
  • 45 - 65 jaar
  • 65+ jaar
Bewoners in de straat
Man
Vrouw
  • Man
  • Vrouw

Documenten

    Je nieuwe huis vinden we samen

    Neem vrijblijvend contact met ons op

    De Laen