Omschrijving

Prachtig wonen in deze moderne en energiezuinige woning met een royale indeling, 5 slaapkamers, prachtige tuin en parkeren op eigen terrein!

Deze uitstekend onderhouden geschakelde 2-onder-1 kapwoning combineert een eigentijdse afwerking met veel ruimte en comfort. Zowel de begane grond als de badkamer zijn recent gemoderniseerd en de woning is volledig geïsoleerd, voorzien van energielabel A, 10 zonnepanelen en gedeeltelijk HR++…

Lees meer

Kenmerken

  • Status Beschikbaar
  • Vraagprijs € 775.000,- kosten koper
  • Woonoppervlakte ca. 178 m2
  • Aantal slaapkamers 5
  • Bouwjaar 1995
Meer kenmerken
Heb je vragen? Of wil je even binnenkijken?

Neem vrijblijvend contact met ons op

De Laen
Download de brochure

Bekijk op het gemak de brochure van deze woning

Downloaden

Omschrijving

Prachtig wonen in deze moderne en energiezuinige woning met een royale indeling, 5 slaapkamers, prachtige tuin en parkeren op eigen terrein!

Deze uitstekend onderhouden geschakelde 2-onder-1 kapwoning combineert een eigentijdse afwerking met veel ruimte en comfort. Zowel de begane grond als de badkamer zijn recent gemoderniseerd en de woning is volledig geïsoleerd, voorzien van energielabel A, 10 zonnepanelen en gedeeltelijk HR++ beglazing.
De royale living, luxe woonkeuken en de fraai aangelegde tuin maken het wooncomfort compleet. Met 5 slaapkamers, een inpandige berging en parkeergelegenheid op eigen terrein is dit een ideale woning voor wie ruimte en duurzaamheid belangrijk vindt.
Ook de ligging is een groot pluspunt: rustig en kindvriendelijk, met winkels, scholen, de RandstadRail én recreatiegebied de Groenzoom in de directe nabijheid.

Begane grond:
Parkeer de auto op eigen terrein en kom binnen!
De entree biedt toegang tot de hal met meterkast, garderobe, trapopgang en modern toilet met fonteintje. Via de stijlvolle stalen deur is toegang tot de zeer royale living. De living is verdeeld in twee zitgedeeltes, waarvan één tuingericht met een sfeervolle gashaard. De schuifpui zorgt voor een directe verbinding met de achtertuin.
De trapkast biedt praktische bergruimte. De volledige begane grond heeft vloerverwarming.
Aansluitend bevindt zich de ruime woonkeuken, met prachtig lichtinval dankzij de grote raampartijen, met uitzicht op de tuin. De keuken is compleet uitgerust met diverse inbouwapparatuur en beschikt over veel kast- en werkruimte. In de woonkeuken is voldoende ruimte voor een grote eethoek. Vanuit de keuken toegang tot de inpandige berging met deur naar buiten, ideaal voor fietsen en opslag.
Wat een heerlijke tuin! De achtertuin is fraai aangelegd met zowel sierbestrating, als veel groen. De tuin biedt ruimte voor diverse sfeervolle zithoeken en heeft een achterom.

1e verdieping:
De 1e verdieping is verdeeld in 3 slaapkamers, een inloopkast en de badkamer.
Wauw wat een badkamer! De moderne badkamer is ingericht met inloopdouche, dubbel wastafelmeubel, spiegelkast en handdoekradiator. De toiletruimte met fonteintje is separaat. Aan de voorzijde zijn 2 slaapkamers, waarvan één met Frans balkon. Aan de achterzijde is de masterbedroom, een zeer royale slaapkamer met inloopkast. Wat wens je nog meer?

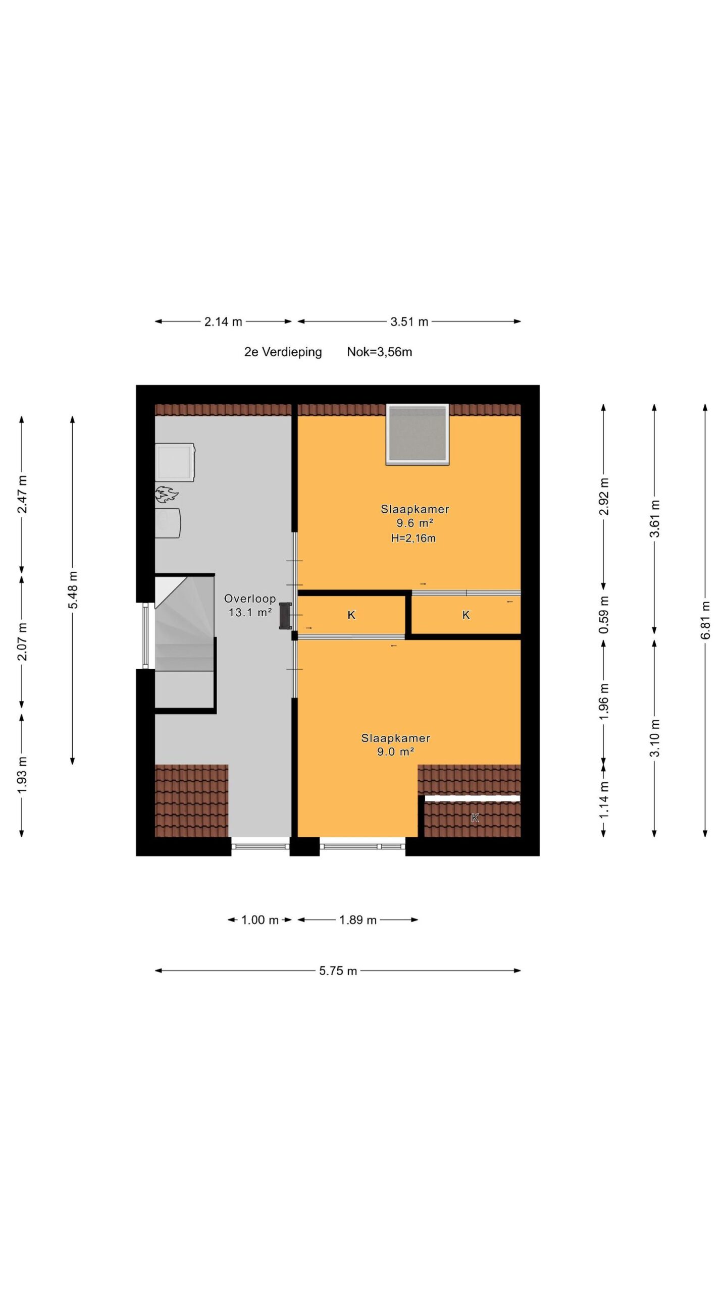
2e verdieping:
De 2e verdieping biedt een ruime overloop met opstelplaats voor wasmachine en cv-ketel, werk-/opbergruimte en 2 slaapkamers. De slaapkamers zijn zeker ruim te noemen en zijn beide voorzien van vaste kastruimte. De voorzijde is uitgebouwd met een dakkapel. Tot slot is er de vliering die extra bergruimte biedt.

Ligging:
De woning ligt in de geliefde wijk Klapwijk, een rustige en groene woonomgeving met diverse speelplekken. In de nabije omgeving bevinden zich scholen, kinderopvang, sportvoorzieningen, winkelcentra én natuurgebied De Groenzoom. Ook de RandstadRail en de uitvalswegen richting Rotterdam, Delft en Den Haag zijn uitstekend bereikbaar. Het centrum van Pijnacker bevindt zich op korte fietsafstand.

Bijzonderheden:
– Oprit met parkeergelegenheid
– Moderne living en badkamer
– Royale living met sfeervolle gashaard en schuifpui naar de tuin
– 5 slaapkamers en een inloopkast
– Uitgebouwd met een dakkapel
– Energielabel A: volledig geïsoleerd, 10 zonnepanelen en gedeeltelijk HR++ beglazing
– Cv-ketel 2024
– Waterontharder aanwezig
– Gelegen in kindvriendelijke wijk
– Ouderdoms- en asbestclausule van toepassing

De Laen makelaardij is de NVM-makelaar van de verkoper. Wij adviseren u uw eigen NVM-makelaar in te schakelen om uw belangen te behartigen bij de aankoop van dit object. 
Deze advertentie en de bijbehorende vragenlijst zijn met de grootst mogelijke zorg samengesteld.
Onzerzijds wordt echter geen enkele aansprakelijkheid aanvaard voor enige onvolledigheid, onjuistheid of anderszins, dan wel de gevolgen daarvan. 
Alle opgegeven maten en oppervlakten zijn indicatief.

Heb je vragen? Of wil je even binnenkijken?

Neem vrijblijvend contact met ons op

De Laen
Download de brochure

Bekijk op het gemak de brochure van deze woning

Downloaden

Kenmerken

Overdracht

  • Status Beschikbaar
  • Vraagprijs € 775.000,- Kosten koper
  • Aanvaarding In overleg

Bouwvorm & Onderhoud

  • Soort woonhuis Twee onder een kapwoning
  • Soort bouw Bestaande bouw
  • Bouwjaar 1995
  • Soort dak Zadeldak
  • Onderhoud binnen Goed
  • Onderhoud buiten Goed

Oppervlakten & inhoud

  • Gebruiksoppervlakte wonen ca. 178 m2
  • Gebouwgebonden buitenruimte ca. 8m2
  • Externe bergruimte
  • Overige inpandige ruimte
  • Inhoud ca. 596m3
  • Perceeloppervlakte ca. 255m2

Indeling

  • Aantal kamers 6 kamers
  • Aantal slaapkamers 5
  • Aantal badkamers 1 badkamer
  • Badkamervoorzieningen Dubbele wastafel, wastafelmeubel, inloopdouche
  • Aantal woonlagen 4 woonlagen
  • Voorzieningen Mechanische ventilatie, rolluiken, rookkanaal, schuifpui, frans balkon, dakraam, zonnepanelen

Energie & Installatie

  • Energielabel A
  • Isolatie Volledig geisoleerd
  • Verwarming Cv ketel, vloerverwarming gedeeltelijk, gashaard
  • Warm water Cv ketel
  • C.v.-ketel type Gas
  • C.v.-ketel bouwjaar 2024
  • Eigendom Eigendom

Tuin & Buitenruimte

  • Ligging In woonwijk
  • Hoofdtuin Achtertuin
  • Oppervlakte hoofdtuin ca. 90m2
  • Ligging hoofdtuin Noordoost
  • Achterom 1
  • Kwaliteit tuin Fraai aangelegd

Bergruimte

  • Schuur / berging Inpandig
  • Aantal schuren / bergingen 1
  • Voorzieningen Voorzien van elektra

Parkeergelegenheid

  • Parkeerfaciliteiten Openbaar parkeren, op eigen terrein
  • Garage Carport

Wijk statistieken

Burgerlijke staat
  • Gehuwd
  • Ongehuwd
  • Gescheiden
  • Verweduwd
Leeftijd in gemeente
0 - 15 jaar
15 - 25 jaar
25-45 jaar
45 - 65 jaar
65+ jaar
  • 0 - 15 jaar
  • 15 - 25 jaar
  • 25 - 45 jaar
  • 45 - 65 jaar
  • 65+ jaar
Gezinnen met kinderen
Met kinderen
Zonder kinderen
Alleenstaand
  • Met kinderen
  • Zonder kinderen
  • Alleenstaand
Leeftijd buurtbewoners
0 - 15 jaar
15 - 25 jaar
25-45 jaar
45 - 65 jaar
65+ jaar
  • 0 - 15 jaar
  • 15 - 25 jaar
  • 25 - 45 jaar
  • 45 - 65 jaar
  • 65+ jaar
Bewoners in de straat
Man
Vrouw
  • Man
  • Vrouw

Documenten

    Je nieuwe huis vinden we samen

    Neem vrijblijvend contact met ons op

    De Laen