Omschrijving

Ruime eengezinswoning met potentie in de geliefde wijk Koningshof!

In de populaire en kindvriendelijke wijk Koningshof ligt deze ruime 5-kamereengezinswoning met zonnige tuin. We zoeken klussers en creatieve doeners die graag een uitdaging aangaan en hun eigen droomhuis willen realiseren. Deze woning biedt alle ruimte én de perfecte basis om jouw woonideeën tot leven te brengen!

Globale indeling:

Begane grond: Lees meer

Kenmerken

  • Status Onder voorbehoud verkocht
  • Vraagprijs € 450.000,- kosten koper
  • Woonoppervlakte ca. 107 m2
  • Aantal slaapkamers 4
  • Bouwjaar 1984
Meer kenmerken
Heb je vragen? Of wil je even binnenkijken?

Neem vrijblijvend contact met ons op

De Laen
Download de brochure

Bekijk op het gemak de brochure van deze woning

Downloaden

Omschrijving

Ruime eengezinswoning met potentie in de geliefde wijk Koningshof!

In de populaire en kindvriendelijke wijk Koningshof ligt deze ruime 5-kamereengezinswoning met zonnige tuin. We zoeken klussers en creatieve doeners die graag een uitdaging aangaan en hun eigen droomhuis willen realiseren. Deze woning biedt alle ruimte én de perfecte basis om jouw woonideeën tot leven te brengen!

Globale indeling:

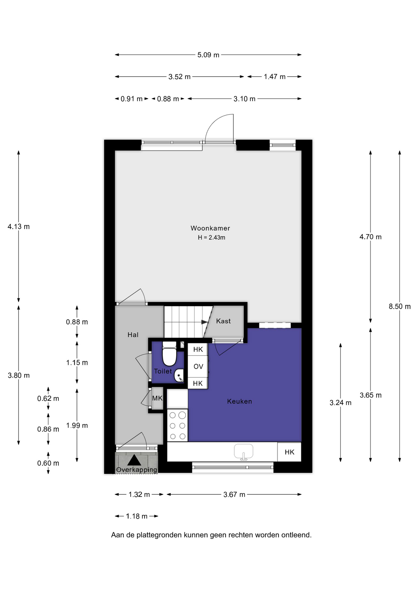
Begane grond:
– Entree/hal met meterkast en toilet
– Grote, dichte keuken aan de voorzijde van de woning – ideaal om naar eigen smaak te moderniseren
– Ruime, tuingerichte woonkamer met veel lichtinval en toegang tot de achtertuin

1e Verdieping:
– Overloop met vaste schuifwandenkasten waarin zich de c.v.-ketel (2016)bevindt.
– 3 slaapkamers, allen van goed formaat
– Ruime, eenvoudig ingerichte badkamer met douche, wastafel, radiator en aansluiting voor de wasapparatuur.

2e Verdieping:
– Overloop
– Grote 4e slaapkamer met royale raampartijen voor veel lichtinval
– Extra bergruimte achter de knieschotten

Tuin:
De achtertuin ligt op het Oosten, beschikt over een berging en achterom. Een fijne buitenruimte waar met wat liefde en aandacht iets moois van te maken is!

Bijzonderheden:
– Ruime woning met 4 slaapkamers
– C.v.-ketel uit 2016
– Kunststof kozijnen aan de voorzijde met dubbelgas, achterzijde houten kozijnen met dubbelglas
– Gelegen in de geliefde en groene wijk Koningshof
– In de wijk bevinden zich meerdere speelplaatsjes en groene speelweide specifiek ingericht voor de kleintjes
– Volop parkeergelegenheid in de straat, tevens is er mogelijkheid tot parkeren in de voortuin
– Achtertuin op het oosten met berging en achterom
– Ideale woning voor klussers of starters die hun eigen droomhuis willen creëren
– Oplevering: kan spoedig
– Ouderdomsclausule, asbest- niet zelfbewonersclausule van toepassing

De Laen makelaardij is de NVM-makelaar van de verkoper. Wij adviseren u uw eigen NVM-makelaar in te schakelen om uw belangen te behartigen bij de aankoop van dit object.
Deze advertentie en de bijbehorende vragenlijst zijn met de grootst mogelijke zorg samengesteld.
Onzerzijds wordt echter geen enkele aansprakelijkheid aanvaard voor enige onvolledigheid, onjuistheid of anderszins, dan wel de gevolgen daarvan.
Alle opgegeven maten en oppervlakten zijn indicatief.

Heb je vragen? Of wil je even binnenkijken?

Neem vrijblijvend contact met ons op

De Laen
Download de brochure

Bekijk op het gemak de brochure van deze woning

Downloaden

Kenmerken

Overdracht

  • Status Onder voorbehoud verkocht
  • Vraagprijs € 450.000,- Kosten koper
  • Aanvaarding In overleg

Bouwvorm & Onderhoud

  • Soort woonhuis Tussenwoning
  • Soort bouw Bestaande bouw
  • Bouwjaar 1984
  • Soort dak Samengesteld dak
  • Onderhoud binnen Redelijk
  • Onderhoud buiten Redelijk

Oppervlakten & inhoud

  • Gebruiksoppervlakte wonen ca. 107 m2
  • Gebouwgebonden buitenruimte
  • Externe bergruimte ca. 8m2
  • Overige inpandige ruimte
  • Inhoud ca. 353m3
  • Perceeloppervlakte ca. 141m2

Indeling

  • Aantal kamers 5 kamers
  • Aantal slaapkamers 4
  • Aantal badkamers 1 badkamer
  • Badkamervoorzieningen Douche, wastafel, wasmachineaansluiting
  • Aantal woonlagen 3 woonlagen
  • Voorzieningen Tv kabel

Energie & Installatie

  • Energielabel B
  • Isolatie Dubbel glas
  • Verwarming Cv ketel
  • Warm water Cv ketel
  • C.v.-ketel type Gas
  • C.v.-ketel bouwjaar 2016
  • Eigendom Eigendom

Tuin & Buitenruimte

  • Ligging Aan rustige weg, in woonwijk, beschutte ligging
  • Hoofdtuin Achtertuin
  • Oppervlakte hoofdtuin ca. 55m2
  • Ligging hoofdtuin Oost
  • Achterom 1
  • Kwaliteit tuin Normaal

Bergruimte

  • Schuur / berging Vrijstaand hout
  • Aantal schuren / bergingen 1
  • Voorzieningen

Parkeergelegenheid

  • Parkeerfaciliteiten Openbaar parkeren
  • Garage Geen garage

Wijk statistieken

Burgerlijke staat
  • Gehuwd
  • Ongehuwd
  • Gescheiden
  • Verweduwd
Leeftijd in gemeente
0 - 15 jaar
15 - 25 jaar
25-45 jaar
45 - 65 jaar
65+ jaar
  • 0 - 15 jaar
  • 15 - 25 jaar
  • 25 - 45 jaar
  • 45 - 65 jaar
  • 65+ jaar
Gezinnen met kinderen
Met kinderen
Zonder kinderen
Alleenstaand
  • Met kinderen
  • Zonder kinderen
  • Alleenstaand
Leeftijd buurtbewoners
0 - 15 jaar
15 - 25 jaar
25-45 jaar
45 - 65 jaar
65+ jaar
  • 0 - 15 jaar
  • 15 - 25 jaar
  • 25 - 45 jaar
  • 45 - 65 jaar
  • 65+ jaar
Bewoners in de straat
Man
Vrouw
  • Man
  • Vrouw

Documenten

    Je nieuwe huis vinden we samen

    Neem vrijblijvend contact met ons op

    De Laen