Omschrijving

Welkom in deze keurig onderhouden tussenwoning met een fijne ligging aan het water in Klapwijk!
Met een uitgebouwde woonkamer, moderne keuken (2018), luxe badkamer, dakkapel en 4 (voormalig 5) slaapkamers is dit de ideale woning.
Ook aan energiebesparing is gedacht, dankzij de volledige isolatie en maar liefst 12 zonnepanelen (2022)!
Wat wens je nog meer?

Indeling:
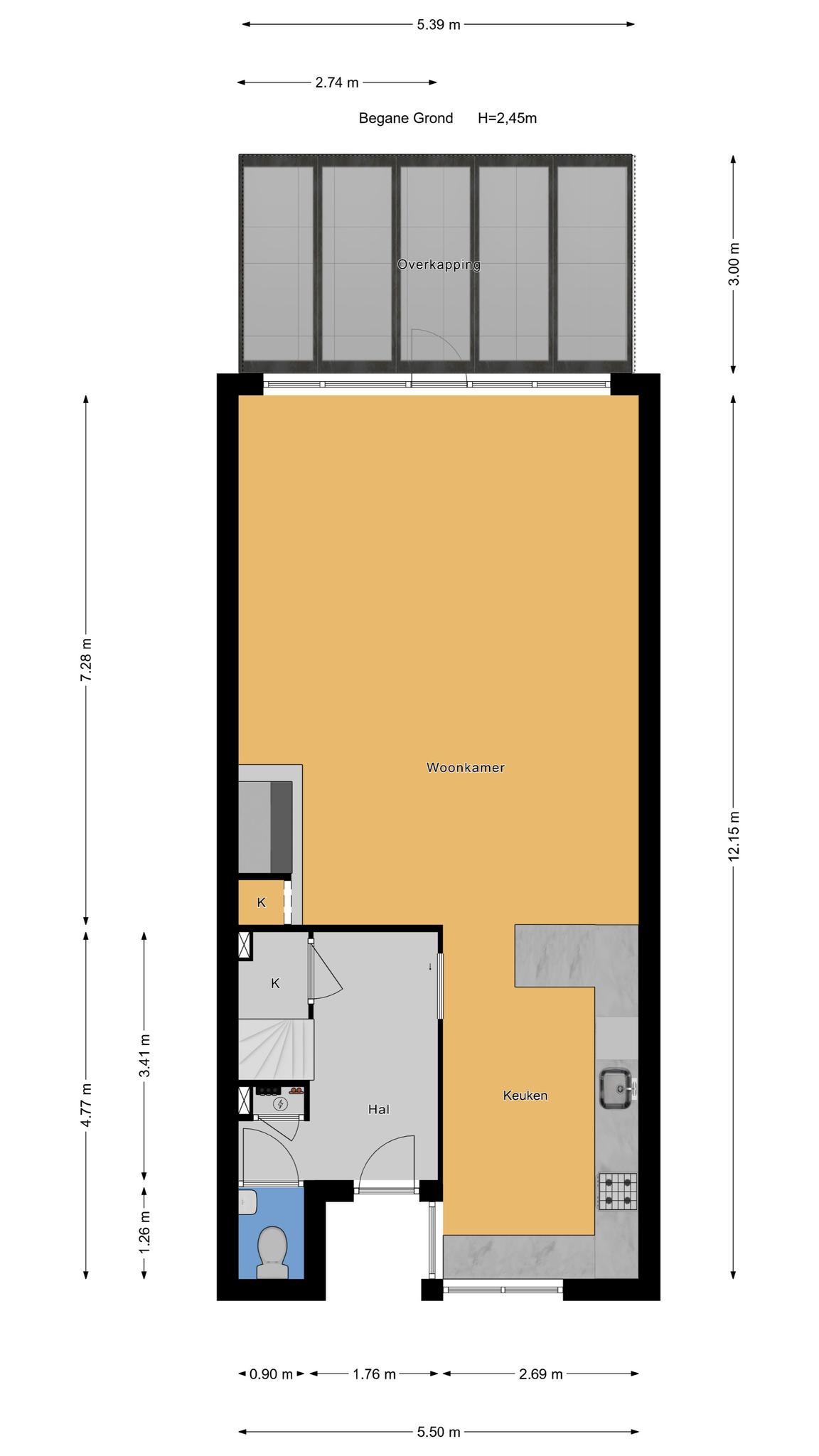
Begane grond:
Bij aankomst valt…

Lees meer

Kenmerken

  • Status Verkocht
  • Vraagprijs € 599.000,- kosten koper
  • Woonoppervlakte ca. 141 m2
  • Aantal slaapkamers 4
  • Bouwjaar 1993
Meer kenmerken
Heb je vragen? Of wil je even binnenkijken?

Neem vrijblijvend contact met ons op

De Laen
Download de brochure

Bekijk op het gemak de brochure van deze woning

Downloaden

Omschrijving

Welkom in deze keurig onderhouden tussenwoning met een fijne ligging aan het water in Klapwijk!
Met een uitgebouwde woonkamer, moderne keuken (2018), luxe badkamer, dakkapel en 4 (voormalig 5) slaapkamers is dit de ideale woning.
Ook aan energiebesparing is gedacht, dankzij de volledige isolatie en maar liefst 12 zonnepanelen (2022)!
Wat wens je nog meer?

Indeling:
Begane grond:
Bij aankomst valt direct de groene omgeving en de sfeervolle voortuin op!
Kom binnen in de moderne hal met meterkast, trapopgang, toiletruimte. Door de stalen deur is toegang tot de living.
Wauw wat een ruimte! Dankzij de uitbouw aan de achterzijde is er voldoende ruimte voor een grote zithoek rond de openhaard én een grote eethoek.
In 2018 is de moderne keuken geplaats. Met een goed doordachte indeling met veel werk- en opbergruimte, een gezellige bar aan het schiereiland en uitgebreid Siemens apparatuur, te weten een grote koelkast, grote vriezer, Quooker, inductiekookplaat (2022), vaatwasser, combi oven en oven. Dat wordt heerlijk kokkerellen met uitzicht op het groen.

Wat een heerlijke tuin, van maar liefst 14 meter diep. Geniet hier in alle privacy van het buitenleven. De overkapping van 4 meter is een verlengde van de living. Achterin is de stenen berging met elektra.

1e verdieping:
Deze verdieping is omgetoverd naar 2 royale slaapkamers, een uitgebreide badkamer, een separaat toilet en diverse vaste kasten. Vanuit de slaapkamer aan de achterzijde is er toegang tot het balkon.
De badkamer is in 2018 gedeeltelijk gemoderniseerd. Wat een luxe, ontspan in de jacuzzi of onder de regendouche. Verder is de badkamer afgewerkt met een dubbele wastafel en vloerverwarming.

2e verdieping:
De slaapkamer aan de achterzijde is uitgebouwd met een kunststof dakkapel. Aan de voorzijde is een open kamer gerealiseerd, ideaal als kantoorruimte. Tot slot is er een wasruimte voor de wasmachine en een cv-ketel achter een vaste kast.

Ligging: De woning is gelegen in de kindvriendelijke wijk Klapwijk. In de directe omgeving zijn alle gewenste voorzieningen te vinden, zoals speeltuinen, kinderdagverblijven, openbaar vervoer en het centrum van Pijnacker.
Liever een bezoek aan de grote steden? Middels de uitvalswegen of de RandstadRail zijn steden zoals Rotterdam, Delft en Den Haag eenvoudig bereikbaar.

Bijzonderheden:
– Keuken uit 2018;
– 12 zonnepanelen (2022);
– Meterkast vervangen in 2022;
– Bitumen dakbedekking vervangen in 2023, m.u.v. dakkapel;
– Energielabel A;
– Ouderdoms- en asbestclausule van toepassing.

Heb je vragen? Of wil je even binnenkijken?

Neem vrijblijvend contact met ons op

De Laen
Download de brochure

Bekijk op het gemak de brochure van deze woning

Downloaden

Kenmerken

Overdracht

  • Status Verkocht
  • Vraagprijs € 599.000,- Kosten koper
  • Aanvaarding In overleg

Bouwvorm & Onderhoud

  • Soort woonhuis Tussenwoning
  • Soort bouw Bestaande bouw
  • Bouwjaar 1993
  • Soort dak Zadeldak
  • Onderhoud binnen Goed
  • Onderhoud buiten Goed

Oppervlakten & inhoud

  • Gebruiksoppervlakte wonen ca. 141 m2
  • Gebouwgebonden buitenruimte ca. 18m2
  • Externe bergruimte ca. 6m2
  • Overige inpandige ruimte
  • Inhoud ca. 475m3
  • Perceeloppervlakte ca. 165m2

Indeling

  • Aantal kamers 5 kamers
  • Aantal slaapkamers 4
  • Aantal badkamers 1 badkamer
  • Badkamervoorzieningen Dubbele wastafel, inloopdouche, vloerverwarming, whirlpool
  • Aantal woonlagen 3 woonlagen
  • Voorzieningen Mechanische ventilatie, zonnepanelen

Energie & Installatie

  • Energielabel A
  • Isolatie Dakisolatie, muurisolatie, vloerisolatie, dubbel glas, volledig geisoleerd
  • Verwarming Cv ketel
  • Warm water Cv ketel
  • C.v.-ketel type Gas
  • C.v.-ketel bouwjaar 2003
  • Eigendom Eigendom

Tuin & Buitenruimte

  • Ligging Aan water, aan rustige weg, in woonwijk
  • Hoofdtuin Achtertuin
  • Oppervlakte hoofdtuin ca. 78m2
  • Ligging hoofdtuin Noordwest
  • Achterom 1
  • Kwaliteit tuin Fraai aangelegd

Bergruimte

  • Schuur / berging Vrijstaand steen
  • Aantal schuren / bergingen 1
  • Voorzieningen Voorzien van elektra

Parkeergelegenheid

  • Parkeerfaciliteiten Openbaar parkeren
  • Garage Geen garage

Wijk statistieken

Burgerlijke staat
  • Gehuwd
  • Ongehuwd
  • Gescheiden
  • Verweduwd
Leeftijd in gemeente
0 - 15 jaar
15 - 25 jaar
25-45 jaar
45 - 65 jaar
65+ jaar
  • 0 - 15 jaar
  • 15 - 25 jaar
  • 25 - 45 jaar
  • 45 - 65 jaar
  • 65+ jaar
Gezinnen met kinderen
Met kinderen
Zonder kinderen
Alleenstaand
  • Met kinderen
  • Zonder kinderen
  • Alleenstaand
Leeftijd buurtbewoners
0 - 15 jaar
15 - 25 jaar
25-45 jaar
45 - 65 jaar
65+ jaar
  • 0 - 15 jaar
  • 15 - 25 jaar
  • 25 - 45 jaar
  • 45 - 65 jaar
  • 65+ jaar
Bewoners in de straat
Man
Vrouw
  • Man
  • Vrouw

Documenten

    Je nieuwe huis vinden we samen

    Neem vrijblijvend contact met ons op

    De Laen