Omschrijving

Vanaf voorjaar 2025 kun je genieten op de Popelenburg 1 van een fantastisch ruim huis met een heerlijke tuin op het Zuiden!

Wonen aan de rand van de wijk Koningshof met aan de achterzijde de groenzone Polanen. Deze 2^1 kap woning met garage springt met 187m² aan woonoppervlakte ruim boven het gemiddelde uit. Zoek je ruimte, rust en privacy? Dan is dit zeker een bezichtiging waard.

Kernpunten:
- royale 2^1 kap…

Lees meer

Kenmerken

  • Status Verkocht
  • Vraagprijs € 795.000,- kosten koper
  • Woonoppervlakte ca. 187 m2
  • Aantal slaapkamers 4
  • Bouwjaar 1978
Meer kenmerken
Heb je vragen? Of wil je even binnenkijken?

Neem vrijblijvend contact met ons op

De Laen
Download de brochure

Bekijk op het gemak de brochure van deze woning

Downloaden

Omschrijving

Vanaf voorjaar 2025 kun je genieten op de Popelenburg 1 van een fantastisch ruim huis met een heerlijke tuin op het Zuiden!

Wonen aan de rand van de wijk Koningshof met aan de achterzijde de groenzone Polanen. Deze 2^1 kap woning met garage springt met 187m² aan woonoppervlakte ruim boven het gemiddelde uit. Zoek je ruimte, rust en privacy? Dan is dit zeker een bezichtiging waard.

Kernpunten:
– royale 2^1 kap woning
– garage en oprit
– charmante tuin
– energielabel B
– twee badkamers
– oorspronkelijke indeling met 4-5 slaapkamers!

De wijk Koningshof wordt gekenmerkt door het vele groen en de speelse opzet van de wijk met veel woonerven. Centraal in de wijk ligt een basisscholencomplex en het winkelcentrum is op ca. 15 minuten loopafstand. Wil je met de metro reizen? Dan kun je gebruik maken van zowel station Pijnacker-Centrum als Pijnacker-Zuid.

Begane Grond: Parkeer de auto voor de deur of op de ruime aanwezigheid van openbare plekken en kom binnen! Entree hal met garderobe, toiletruimte, trapopgang en inpandige toegang tot de garage.

Bij binnenkomst valt direct de gezellige woonkamer op met alle ruimte voor de zithoek en afzonderlijke eetgedeelte. Unieke, sfeervolle plekjes om te ontspannen. Op de vloer ligt een parketvloer en een gezellige open haard is een unique selling point.

De open keuken aan de voorzijde is voorzien van alle gebruikelijke inbouwapparatuur. Er is meer dan voldoende ruimte voor een grote eethoek. De grote raampartijen verbinden de woonruimte met het groene buiten.

Inpandig is de grote garage toegankelijk met een garagedeur en aan achterzijde een toegangsdeur naar de tuin.

Wow wat een tuin! De ruime, zonnige tuin is gelegen op het zuiden. De tuin is keurig ingedeeld met verschillende zithoeken, beplanting, een pergola en kleine vijver. In elk seizoen valt er wel wat te beleven in deze tuin.

1e verdieping: Op de eerste verdieping bevinden zich twee ruime slaapkamers en twee badkamers. Vanuit de hoofdslaapkamer is de badkamer toegankelijk. Deze badkamer is nog in de stijl van de zeventiger jaren, goede kwaliteit, echter niet meer naar de modetrend van nu. De badkamer is voorzien van een ligbad, dubbele wastafel en een dakraam dat zorgt voor veel natuurlijk licht. De tweede badkamer is uitgerust met een douche en wastafel. Het toilet is separaat. De slaapkamer aan de achterzijde is eenvoudig weer terug te brengen naar de originele situatie met 2 slaapkamers. Wat deze woning standaard heeft is een aparte wasruimte.

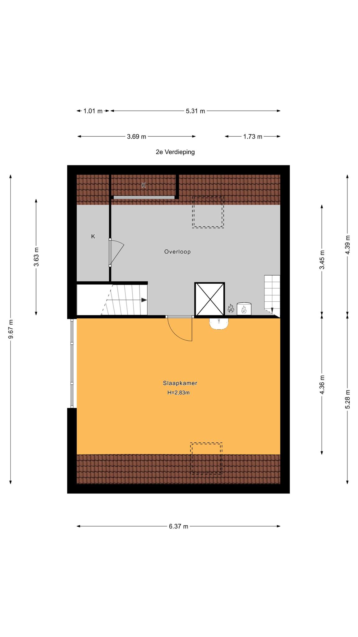
2e verdieping: Deze verdieping biedt nog eens een grote slaapkamer, qua ruimte is het bijna een grote hotelsuite. studio. Deze enorme slaapkamer is nog zeker te splitsen in twee slaapkamers! Daarnaast een open ruimte met een houten inloopkast, door de huidige eigenaar als wijnkast/opslagruimte in gebruik. Via een steektrap is de vliering op stahoogte te bereiken.

Bij ingebruikname in 1978 heeft de eigenaar een binnenhuisarchitect ingeschakeld waardoor enkele ruimtes goed tot zijn recht komen en er praktische en ook leuke gebruiksmogelijkheden zijn ontstaan.

Bijzonderheden:
– Schilderwerk 2020-2021
– Kruipruimte met iso chips gevuld
– CV combi Intergas 2023
– MV box vernieuwd
– Glasvezel aanwezig, nog niet aangesloten.

Heb je vragen? Of wil je even binnenkijken?

Neem vrijblijvend contact met ons op

De Laen
Download de brochure

Bekijk op het gemak de brochure van deze woning

Downloaden

Kenmerken

Overdracht

  • Status Verkocht
  • Vraagprijs € 795.000,- Kosten koper
  • Aanvaarding In overleg

Bouwvorm & Onderhoud

  • Soort woonhuis Twee onder een kapwoning
  • Soort bouw Bestaande bouw
  • Bouwjaar 1978
  • Soort dak Zadeldak
  • Onderhoud binnen Goed
  • Onderhoud buiten Goed

Oppervlakten & inhoud

  • Gebruiksoppervlakte wonen ca. 187 m2
  • Gebouwgebonden buitenruimte ca. 4m2
  • Externe bergruimte
  • Overige inpandige ruimte ca. 28m2
  • Inhoud ca. 746m3
  • Perceeloppervlakte ca. 275m2

Indeling

  • Aantal kamers 5 kamers
  • Aantal slaapkamers 4
  • Aantal badkamers 2 badkamers
  • Badkamervoorzieningen Ligbad, dubbele wastafel, douche, wastafel
  • Aantal woonlagen 4 woonlagen
  • Voorzieningen Mechanische ventilatie, schuifpui, dakraam, natuurlijke ventilatie

Energie & Installatie

  • Energielabel B
  • Isolatie Vloerisolatie, dubbel glas
  • Verwarming Cv ketel, open haard
  • Warm water Cv ketel
  • C.v.-ketel type Gas
  • C.v.-ketel bouwjaar 2023
  • Eigendom Eigendom

Tuin & Buitenruimte

  • Ligging Aan rustige weg, in woonwijk, beschutte ligging
  • Hoofdtuin Achtertuin
  • Oppervlakte hoofdtuin ca. 121m2
  • Ligging hoofdtuin Zuid
  • Achterom
  • Kwaliteit tuin Fraai aangelegd

Bergruimte

  • Schuur / berging
  • Aantal schuren / bergingen
  • Voorzieningen

Parkeergelegenheid

  • Parkeerfaciliteiten Openbaar parkeren, op eigen terrein
  • Garage Aangebouwd steen, parkeerplaats

Wijk statistieken

Burgerlijke staat
  • Gehuwd
  • Ongehuwd
  • Gescheiden
  • Verweduwd
Leeftijd in gemeente
0 - 15 jaar
15 - 25 jaar
25-45 jaar
45 - 65 jaar
65+ jaar
  • 0 - 15 jaar
  • 15 - 25 jaar
  • 25 - 45 jaar
  • 45 - 65 jaar
  • 65+ jaar
Gezinnen met kinderen
Met kinderen
Zonder kinderen
Alleenstaand
  • Met kinderen
  • Zonder kinderen
  • Alleenstaand
Leeftijd buurtbewoners
0 - 15 jaar
15 - 25 jaar
25-45 jaar
45 - 65 jaar
65+ jaar
  • 0 - 15 jaar
  • 15 - 25 jaar
  • 25 - 45 jaar
  • 45 - 65 jaar
  • 65+ jaar
Bewoners in de straat
Man
Vrouw
  • Man
  • Vrouw

Documenten

    Je nieuwe huis vinden we samen

    Neem vrijblijvend contact met ons op

    De Laen