Omschrijving

Wakker worden in de polder. De vogels horen fluiten. Af en toe nog een tractor zien rijden. Dat is wonen in de Oude Leede. Een heerlijke plek in het buitengebied, een ruim perceel en vrijstaand wonen met grote garage naast het huis. Het geheel verdient het om naar eigen smaak en sfeer verbouwd te worden en te updaten/verduurzamen naar de huidige maatstaven.

Het is en het blijft een prachtige plek in buurtschap de Oude Leede. De…

Lees meer

Kenmerken

  • Status Verkocht
  • Vraagprijs € 645.000,- kosten koper
  • Woonoppervlakte ca. 100 m2
  • Aantal slaapkamers 2
  • Bouwjaar 1930
Meer kenmerken
Heb je vragen? Of wil je even binnenkijken?

Neem vrijblijvend contact met ons op

De Laen
Download de brochure

Bekijk op het gemak de brochure van deze woning

Downloaden

Omschrijving

Wakker worden in de polder. De vogels horen fluiten. Af en toe nog een tractor zien rijden. Dat is wonen in de Oude Leede. Een heerlijke plek in het buitengebied, een ruim perceel en vrijstaand wonen met grote garage naast het huis. Het geheel verdient het om naar eigen smaak en sfeer verbouwd te worden en te updaten/verduurzamen naar de huidige maatstaven.

Het is en het blijft een prachtige plek in buurtschap de Oude Leede. De combinatie van heerlijk wonen in het buitengebied met alle voorzieningen binnen 10-15 (fiets)minuten te bereiken!

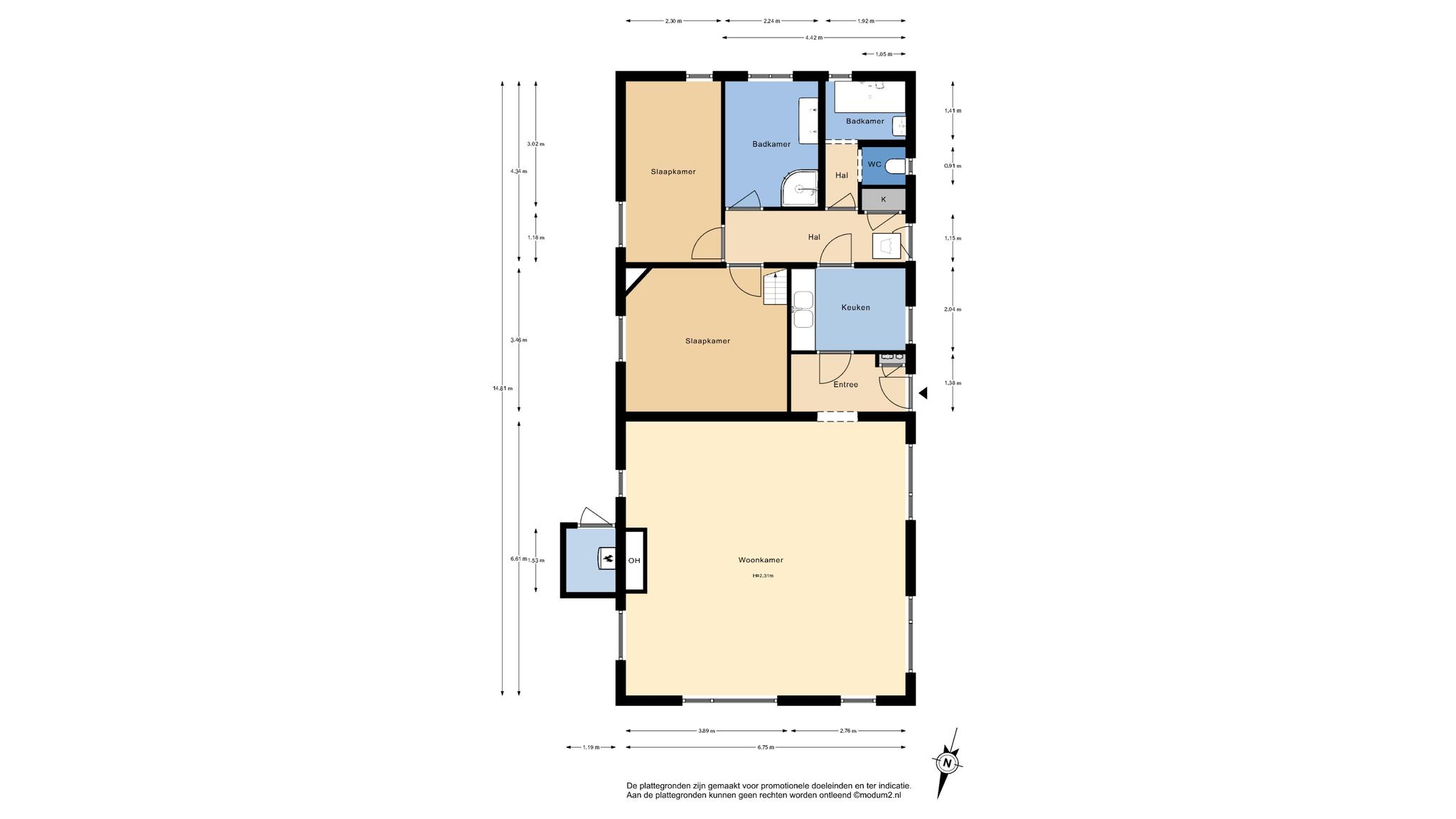
Entree vanuit het midden van de zijgevel met aan de voorzijde de grote woonkamer met raampartijen rondom, waardoor je fijn uitzicht hebt over het polderlandschap. Aan de achterzijde bevinden zich de eenvoudige keuken, badkamer, toilet, twee slaapkamers. Achter de woning bevindt zich een houten berging waar de CV ketel staat opgesteld.

Vanuit 1 slaapkamer is via een stijle trapopgang de grote zolderverdieping toegankelijk. De zolder fungeert nu alleen als opslag maar heeft qua ruimte volop mogelijkheden om een goed in te delen (slaap)verdieping te maken. Goede nokhoogte, veel ruimte en lichtinval via dakramen en kop-gevelraam.

In 1986 is naast het woonhuis een grote, vrijstaande stenen garage gebouwd. De garage beschikt over een eigen parkeerplaats, vliering, cv installatie, meterkast en aansluiting water, waardoor er eveneens meerdere gebruiksmogelijkheden zijn.

Royale tuin rondom de woning met gazon, borders en voldoende parkeergelegenheid op eigen terrein, eveneens een leuke ligging aan het water met de achterliggende vaart. Beschik je over groene vingers en heb je tuinieren als hobby? Kom gerust eens kijken welke mooie tuinplannen jij hier kunt realiseren.

Bijzonderheden:
– Ongeveer 10m2 minder perceel oppervlakte (buren hebben klein strookje gekocht)
– Bouwjaar BAG 1930; in gevel staat 1e steen gelegd in 1887
– Oude pand clausule van toepassing
– As is, where is clausule van toepassing
– Grote garage gebouwd in 1986
– Wonen in het buitengebied
– Vragenlijst en Lijst van Zaken niet van toepassing

Oplevering 1e kwartaal 2025

Interesse in dit huis? Schakel direct uw eigen NVM-aankoopmakelaar in. Uw NVM-aankoopmakelaar komt op voor uw belang en bespaart u tijd, geld en zorgen.

Heb je vragen? Of wil je even binnenkijken?

Neem vrijblijvend contact met ons op

De Laen
Download de brochure

Bekijk op het gemak de brochure van deze woning

Downloaden

Kenmerken

Overdracht

  • Status Verkocht
  • Vraagprijs € 645.000,- Kosten koper
  • Aanvaarding In overleg

Bouwvorm & Onderhoud

  • Soort woonhuis Vrijstaande woning
  • Soort bouw Bestaande bouw
  • Bouwjaar 1930
  • Soort dak Zadeldak
  • Onderhoud binnen Matig tot redelijk
  • Onderhoud buiten Matig tot redelijk

Oppervlakten & inhoud

  • Gebruiksoppervlakte wonen ca. 100 m2
  • Gebouwgebonden buitenruimte
  • Externe bergruimte ca. 43m2
  • Overige inpandige ruimte ca. 53m2
  • Inhoud ca. 536m3
  • Perceeloppervlakte ca. 640m2

Indeling

  • Aantal kamers 3 kamers
  • Aantal slaapkamers 2
  • Aantal badkamers 1 badkamer
  • Badkamervoorzieningen Ligbad, douche, wastafel
  • Aantal woonlagen 1 woonlagen
  • Voorzieningen Rookkanaal, dakraam, natuurlijke ventilatie

Energie & Installatie

  • Energielabel G
  • Isolatie Gedeeltelijk dubbel glas
  • Verwarming Cv ketel
  • Warm water Elektrische boiler huur
  • C.v.-ketel type Gas
  • C.v.-ketel bouwjaar 1989
  • Eigendom Eigendom

Tuin & Buitenruimte

  • Ligging Aan water, vrij uitzicht, open ligging, buiten bebouwde kom
  • Hoofdtuin Tuin rondom
  • Oppervlakte hoofdtuin
  • Ligging hoofdtuin
  • Achterom 1
  • Kwaliteit tuin Normaal

Bergruimte

  • Schuur / berging
  • Aantal schuren / bergingen
  • Voorzieningen

Parkeergelegenheid

  • Parkeerfaciliteiten Openbaar parkeren, op eigen terrein
  • Garage Vrijstaand steen

Wijk statistieken

Burgerlijke staat
  • Gehuwd
  • Ongehuwd
  • Gescheiden
  • Verweduwd
Leeftijd in gemeente
0 - 15 jaar
15 - 25 jaar
25-45 jaar
45 - 65 jaar
65+ jaar
  • 0 - 15 jaar
  • 15 - 25 jaar
  • 25 - 45 jaar
  • 45 - 65 jaar
  • 65+ jaar
Gezinnen met kinderen
Met kinderen
Zonder kinderen
Alleenstaand
  • Met kinderen
  • Zonder kinderen
  • Alleenstaand
Leeftijd buurtbewoners
0 - 15 jaar
15 - 25 jaar
25-45 jaar
45 - 65 jaar
65+ jaar
  • 0 - 15 jaar
  • 15 - 25 jaar
  • 25 - 45 jaar
  • 45 - 65 jaar
  • 65+ jaar
Bewoners in de straat
Man
Vrouw
  • Man
  • Vrouw

In de buurt

    Documenten

      Je nieuwe huis vinden we samen

      Neem vrijblijvend contact met ons op

      De Laen