Omschrijving

Voor de markt uit verkocht

Deze sfeervolle hoekwoning is gelegen in het centrum van Pijnacker. Een knusse woning met in totaal 2 slaapkamers, een gezellige woonkamer, aangebouwde serre, grote houten schuur, moderne keuken, moderne badkamer en een heerlijke achtertuin gelegen op het zuidwesten. Enkele leuke details zoals nieuwe kunststof kozijnen, glas-in-lood ramen en paneeldeuren.

Indeling: hal met toilet, meterkast en…

Lees meer

Kenmerken

  • Status Verkocht
  • Vraagprijs € 400.000,- kosten koper
  • Woonoppervlakte ca. 70 m2
  • Aantal slaapkamers 2
  • Bouwjaar 1935
Meer kenmerken
Heb je vragen? Of wil je even binnenkijken?

Neem vrijblijvend contact met ons op

De Laen

Omschrijving

Voor de markt uit verkocht

Deze sfeervolle hoekwoning is gelegen in het centrum van Pijnacker. Een knusse woning met in totaal 2 slaapkamers, een gezellige woonkamer, aangebouwde serre, grote houten schuur, moderne keuken, moderne badkamer en een heerlijke achtertuin gelegen op het zuidwesten. Enkele leuke details zoals nieuwe kunststof kozijnen, glas-in-lood ramen en paneeldeuren.

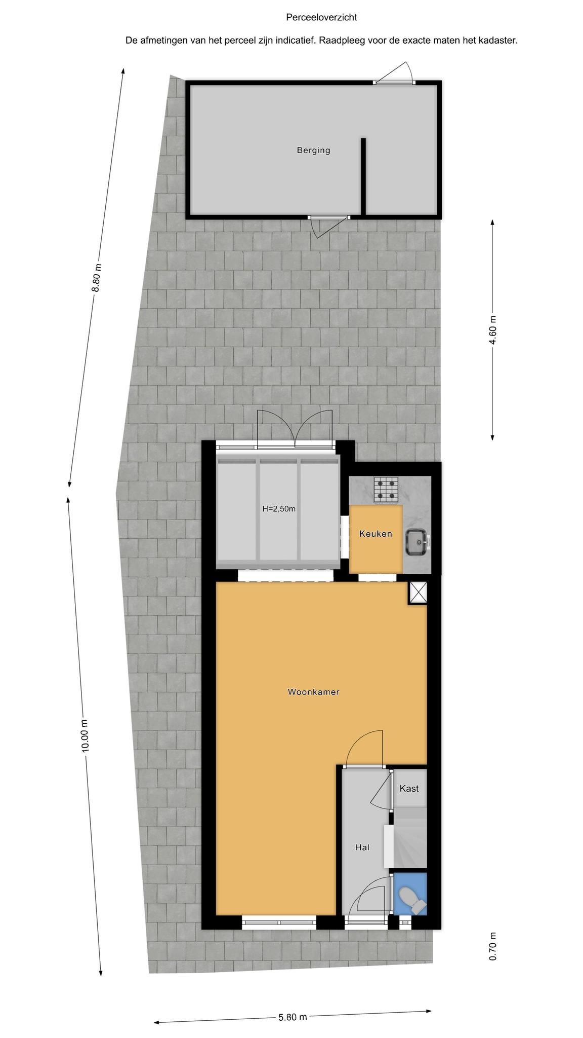
Indeling: hal met toilet, meterkast en trapkast. Gezellige woonkamer met laminaatvloer en toegang tot de half open keuken welke voorzien is van diverse inbouwapparatuur. De serre aan de achterzijde is op verschillende manieren te gebruiken. Vanuit de serre heeft u toegang tot de achtertuin.
 
1e etage: voor en achterzijde dakkapel, overloop, 2 slaapkamers, keurig ingerichte badkamer met designradiator, wastafelmeubel, douchecabine, 2e (zwevend) toilet en aansluiting voor machine en droger.
  
Vlizotrap naar vliering, voorzien is van een velux dakvenster en de cv-ketel.

Heb je vragen? Of wil je even binnenkijken?

Neem vrijblijvend contact met ons op

De Laen

Kenmerken

Overdracht

  • Status Verkocht
  • Vraagprijs € 400.000,- Kosten koper
  • Aanvaarding In overleg

Bouwvorm & Onderhoud

  • Soort woonhuis Hoekwoning
  • Soort bouw Bestaande bouw
  • Bouwjaar 1935
  • Soort dak Zadeldak
  • Onderhoud binnen Goed
  • Onderhoud buiten Goed

Oppervlakten & inhoud

  • Gebruiksoppervlakte wonen ca. 70 m2
  • Gebouwgebonden buitenruimte
  • Externe bergruimte ca. 14m2
  • Overige inpandige ruimte
  • Inhoud ca. 235m3
  • Perceeloppervlakte ca. 100m2

Indeling

  • Aantal kamers 3 kamers
  • Aantal slaapkamers 2
  • Aantal badkamers 1 badkamer
  • Badkamervoorzieningen Toilet, douche, wasmachineaansluiting
  • Aantal woonlagen 3 woonlagen
  • Voorzieningen Tv kabel, dakraam

Energie & Installatie

  • Energielabel G
  • Isolatie Gedeeltelijk dubbel glas
  • Verwarming Cv ketel
  • Warm water Cv ketel
  • C.v.-ketel type
  • C.v.-ketel bouwjaar
  • Eigendom

Tuin & Buitenruimte

  • Ligging In centrum
  • Hoofdtuin Achtertuin
  • Oppervlakte hoofdtuin ca. 42m2
  • Ligging hoofdtuin Zuidwest
  • Achterom 1
  • Kwaliteit tuin Normaal

Bergruimte

  • Schuur / berging Vrijstaand hout
  • Aantal schuren / bergingen 1
  • Voorzieningen Voorzien van elektra

Parkeergelegenheid

  • Parkeerfaciliteiten Openbaar parkeren
  • Garage Geen garage

Wijk statistieken

Burgerlijke staat
  • Gehuwd
  • Ongehuwd
  • Gescheiden
  • Verweduwd
Leeftijd in gemeente
0 - 15 jaar
15 - 25 jaar
25-45 jaar
45 - 65 jaar
65+ jaar
  • 0 - 15 jaar
  • 15 - 25 jaar
  • 25 - 45 jaar
  • 45 - 65 jaar
  • 65+ jaar
Gezinnen met kinderen
Met kinderen
Zonder kinderen
Alleenstaand
  • Met kinderen
  • Zonder kinderen
  • Alleenstaand
Leeftijd buurtbewoners
0 - 15 jaar
15 - 25 jaar
25-45 jaar
45 - 65 jaar
65+ jaar
  • 0 - 15 jaar
  • 15 - 25 jaar
  • 25 - 45 jaar
  • 45 - 65 jaar
  • 65+ jaar
Bewoners in de straat
Man
Vrouw
  • Man
  • Vrouw

Documenten

    Je nieuwe huis vinden we samen

    Neem vrijblijvend contact met ons op

    De Laen