Omschrijving

Het is heerlijk wonen in deze twee-onder-een kap woning aan de Noordweg met alles onder handbereik!

Je wandelt binnen een paar minuten in het Balijbos, of bent op de sportvelden je (klein)kinderen aan het aanmoedigen, sport/zwemt in Sportcentrum/Zwembad "De Viergang". Daarnaast is het centrum van Pijnacker op loopafstand te bereiken en zijn de uitvalswegen dichtbij richting de grote steden zoals Rotterdam, Delft en Den Haag. Ook…

Lees meer

Kenmerken

  • Status Verkocht
  • Vraagprijs € 450.000,- kosten koper
  • Woonoppervlakte ca. 97 m2
  • Aantal slaapkamers 2
  • Bouwjaar 1920
Meer kenmerken
Heb je vragen? Of wil je even binnenkijken?

Neem vrijblijvend contact met ons op

De Laen
Download de brochure

Bekijk op het gemak de brochure van deze woning

Downloaden

Omschrijving

Het is heerlijk wonen in deze twee-onder-een kap woning aan de Noordweg met alles onder handbereik!

Je wandelt binnen een paar minuten in het Balijbos, of bent op de sportvelden je (klein)kinderen aan het aanmoedigen, sport/zwemt in Sportcentrum/Zwembad “De Viergang”. Daarnaast is het centrum van Pijnacker op loopafstand te bereiken en zijn de uitvalswegen dichtbij richting de grote steden zoals Rotterdam, Delft en Den Haag. Ook het openbaar vervoer zoals de RandstadRail “Pijnacker-Centrum” is goed bereikbaar.

Goed onderhouden, knusse eengezinswoning aan de achterzijde uitgebouwd en zowel aan voor- als aan achterzijde een fijne tuin. Vanuit de woonkamer heb je heerlijk zicht op de Noordweg, bij uitstek een gezellige straatje.

Indeling: Zij-entree/hal, meterkast, verzorgde toiletruimte, open trap naar slaapverdieping. Gezellige woonkamer in een L-vorm ingedeeld met de mogelijkheid van een open haard, thans in gebruik in elektrische variant. Aan achterzijde is de woning uitgebouwd met een leefkeuken en bijkeuken. De keuken is goed ingedeeld, verzorgde uitstraling alleen qua sfeer en uitvoering niet meer van de huidige tijd. Bijkeuken met opstelling CV combi ketel, wasapparatuur en uitgang naar de tuin. De uitbouw is voorzien van twee lichtkoepels.

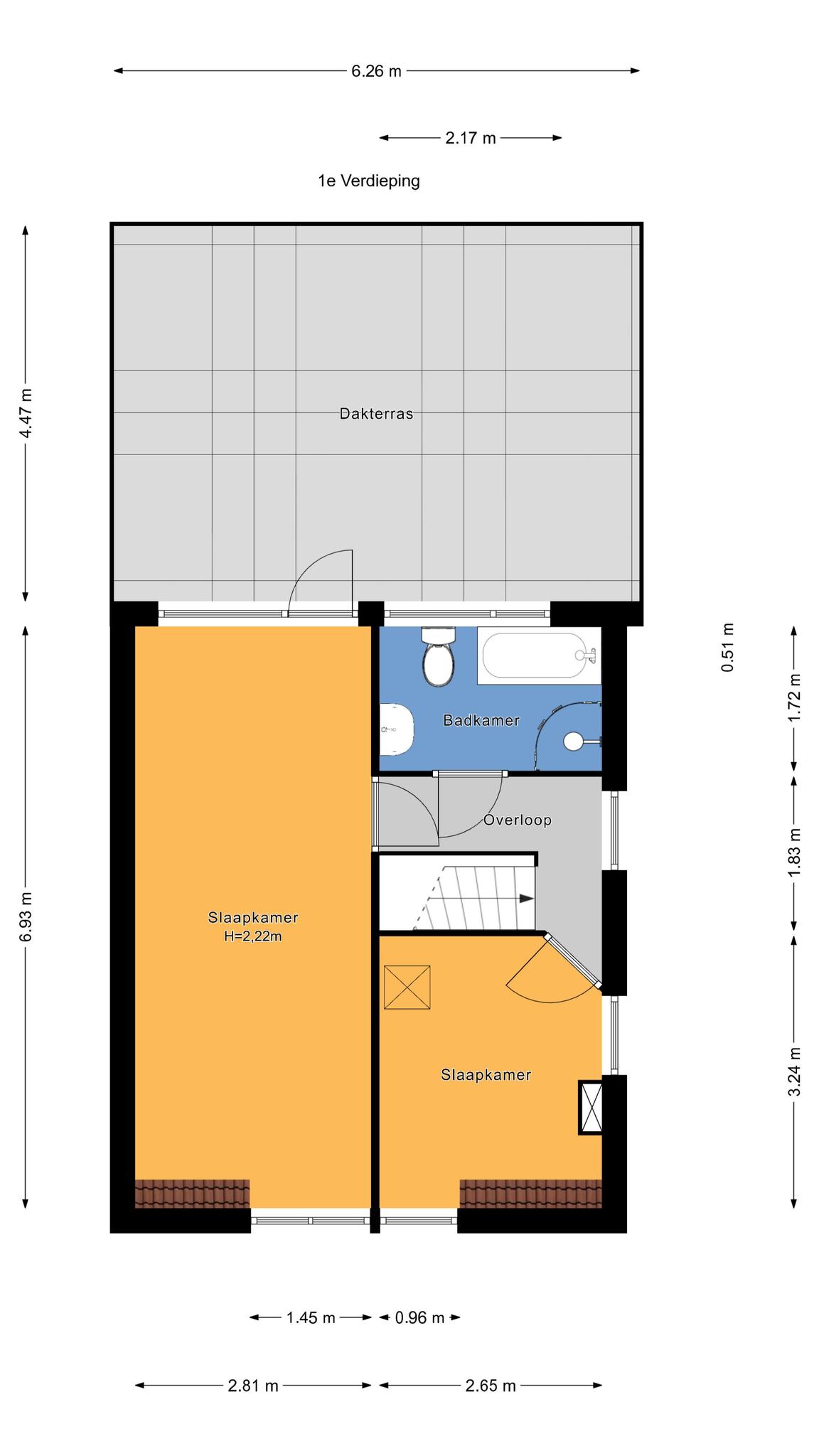
Slaapverdieping: Kleine overloop met luik naar beknopte bergvliering, kleine slaapkamer aan de voorzijde, verzorgde badkamer compleet uitgerust met ligbad, douche, wastafelcombinatie en 2e toilet. Super netjes verzorgd en bijgehouden maar niet meer naar de mode van de huidige tijd. Grote slaapkamer (voorheen 2) met toegang naar een
riant dakterras.

Bijzonderheden:
– Heerlijk vrije ligging aan autoluwe straat en op loopafstand van natuur en recreatie;
– Veel privacy in de achtertuin;
– Gezellige ommuurde tuin (ideaal voor de allerkleinsten of viervoeters);
– Mogelijkheid om losse garagebox (€ 38.500,- k.k.) aan het achtergelegen pleintje erbij te kopen;
– Opleveren in overleg

Kortom, zoek je een sfeervol huis, goed onderhouden en kan je niet wachten om er een leuk THUIS van te maken? Bel dan naar De Laen en plan een afspraak in.

Deze informatie is een uitnodiging tot het doen van een bod. Ondanks het feit dat deze informatie met zorg is samengesteld, kunnen er geen rechten aan worden ontleend.

Interesse in dit huis? Schakel direct uw eigen NVM-aankoopmakelaar in.
Uw NVM-aankoopmakelaar komt op voor uw belang en bespaart u tijd, geld en zorgen.

Heb je vragen? Of wil je even binnenkijken?

Neem vrijblijvend contact met ons op

De Laen
Download de brochure

Bekijk op het gemak de brochure van deze woning

Downloaden

Kenmerken

Overdracht

  • Status Verkocht
  • Vraagprijs € 450.000,- Kosten koper
  • Aanvaarding In overleg

Bouwvorm & Onderhoud

  • Soort woonhuis Twee onder een kapwoning
  • Soort bouw Bestaande bouw
  • Bouwjaar 1920
  • Soort dak Zadeldak
  • Onderhoud binnen Goed
  • Onderhoud buiten Goed

Oppervlakten & inhoud

  • Gebruiksoppervlakte wonen ca. 97 m2
  • Gebouwgebonden buitenruimte ca. 29m2
  • Externe bergruimte ca. 61m2
  • Overige inpandige ruimte
  • Inhoud ca. 362m3
  • Perceeloppervlakte ca. 156m2

Indeling

  • Aantal kamers 3 kamers
  • Aantal slaapkamers 2
  • Aantal badkamers 1 badkamer
  • Badkamervoorzieningen Ligbad, toilet, wastafel
  • Aantal woonlagen 3 woonlagen
  • Voorzieningen

Energie & Installatie

  • Energielabel G
  • Isolatie Dubbel glas
  • Verwarming Cv ketel, open haard
  • Warm water Cv ketel
  • C.v.-ketel type Gas
  • C.v.-ketel bouwjaar 2020
  • Eigendom Eigendom

Tuin & Buitenruimte

  • Ligging Aan rustige weg, in centrum, beschutte ligging
  • Hoofdtuin Achtertuin
  • Oppervlakte hoofdtuin ca. 46m2
  • Ligging hoofdtuin Noordoost
  • Achterom
  • Kwaliteit tuin Normaal

Bergruimte

  • Schuur / berging
  • Aantal schuren / bergingen
  • Voorzieningen

Parkeergelegenheid

  • Parkeerfaciliteiten Openbaar parkeren
  • Garage Garage mogelijk

Wijk statistieken

Burgerlijke staat
  • Gehuwd
  • Ongehuwd
  • Gescheiden
  • Verweduwd
Leeftijd in gemeente
0 - 15 jaar
15 - 25 jaar
25-45 jaar
45 - 65 jaar
65+ jaar
  • 0 - 15 jaar
  • 15 - 25 jaar
  • 25 - 45 jaar
  • 45 - 65 jaar
  • 65+ jaar
Gezinnen met kinderen
Met kinderen
Zonder kinderen
Alleenstaand
  • Met kinderen
  • Zonder kinderen
  • Alleenstaand
Leeftijd buurtbewoners
0 - 15 jaar
15 - 25 jaar
25-45 jaar
45 - 65 jaar
65+ jaar
  • 0 - 15 jaar
  • 15 - 25 jaar
  • 25 - 45 jaar
  • 45 - 65 jaar
  • 65+ jaar
Bewoners in de straat
Man
Vrouw
  • Man
  • Vrouw

In de buurt

    Documenten

      Je nieuwe huis vinden we samen

      Neem vrijblijvend contact met ons op

      De Laen