Omschrijving

Vrijstaande tuinderswoning met garage, grote schuur en kas – volop ruimte en mogelijkheden op bijna 1.800 m² eigen grond.

Aan de rand van Pijnacker staat deze vrijstaande tuinderswoning met bijgebouwen op een royaal perceel van bijna 1.800 m². Een ideale plek voor wie vrij wil wonen en op zoek is naar veel praktische ruimte voor bijvoorbeeld een bedrijf aan huis, opslag of hobby.

De woning biedt een grote woonkamer en een…

Lees meer

Kenmerken

  • Status Onder voorbehoud verkocht
  • Vraagprijs € 1.095.000,- kosten koper
  • Woonoppervlakte ca. 169 m2
  • Aantal slaapkamers 4
  • Bouwjaar
Meer kenmerken
Heb je vragen? Of wil je even binnenkijken?

Neem vrijblijvend contact met ons op

De Laen

Omschrijving

Vrijstaande tuinderswoning met garage, grote schuur en kas – volop ruimte en mogelijkheden op bijna 1.800 m² eigen grond.

Aan de rand van Pijnacker staat deze vrijstaande tuinderswoning met bijgebouwen op een royaal perceel van bijna 1.800 m². Een ideale plek voor wie vrij wil wonen en op zoek is naar veel praktische ruimte voor bijvoorbeeld een bedrijf aan huis, opslag of hobby.

De woning biedt een grote woonkamer en een grote woonkeuken met bijkeuken en toegang tot de tuin. Op de begane grond bevinden zich daarnaast een slaapkamer en een badkamer, waardoor gelijkvloers wonen mogelijk is.

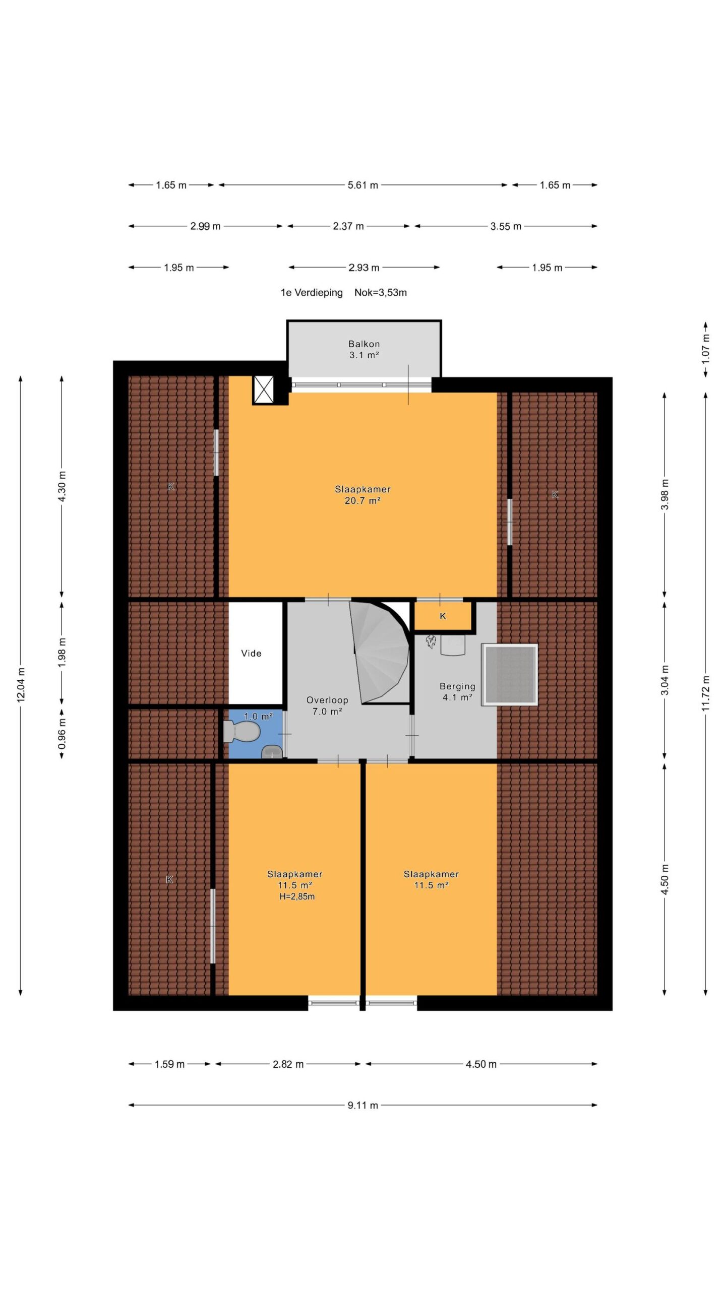
Via de spiltrap bereikt u de verdieping met een ruime overloop, een technische ruimte met de c.v.-installatie (2007) en drie slaapkamers met vaste kasten, waarvan één toegang biedt tot een balkon.

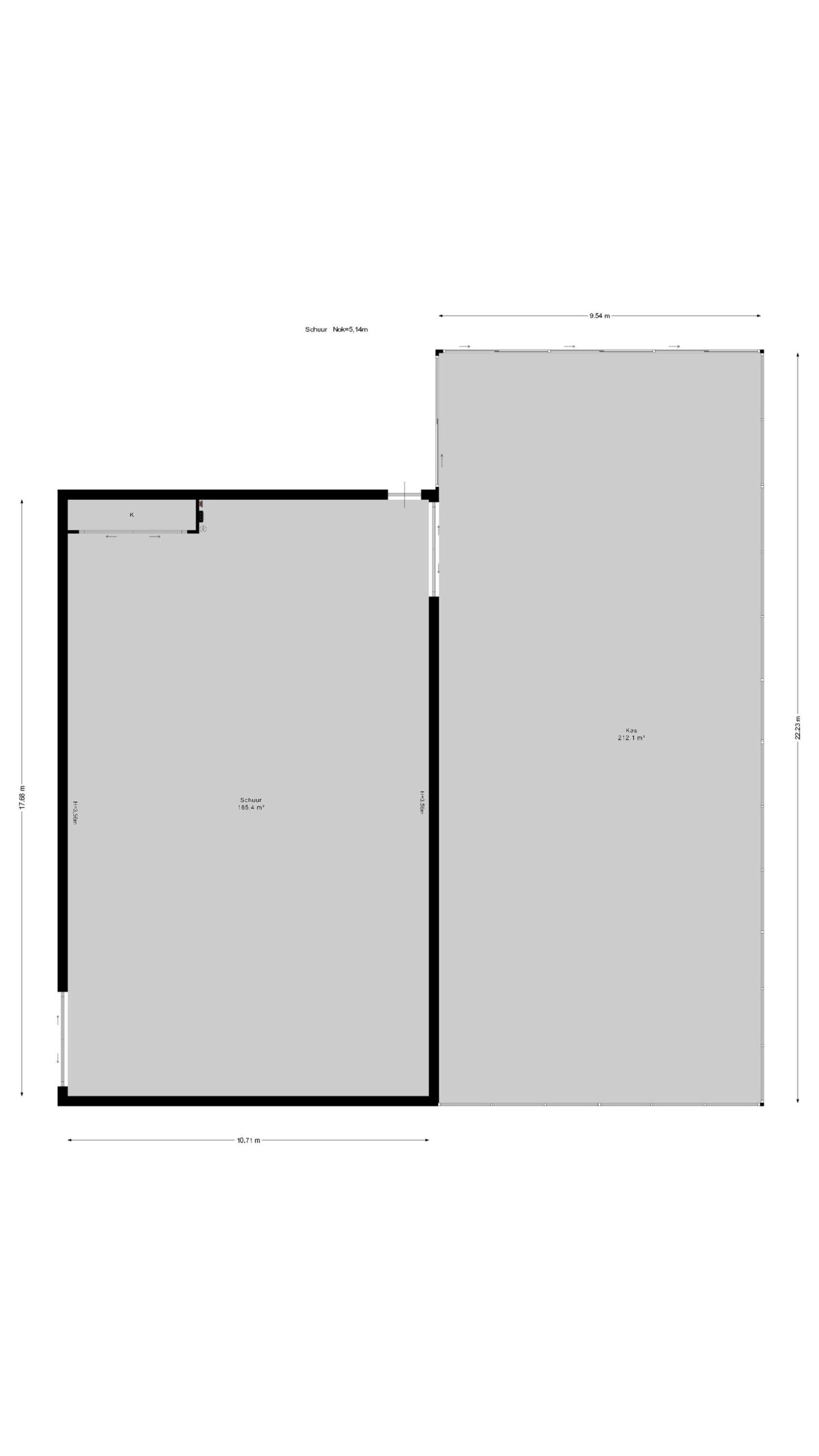
De tuin is rondom en de achterzijde is gesitueerd op het Zuidwesten. Er is een garage van ca. 25 m2,een kas van 212 m2 en een schuur van 190 m2 aanwezig.

Bijzonderheden:
– Garage naast de woning
– Schuur van ca. 190 m², geschikt voor opslag, werkruimte of hobby
– Kas van ca. 212 m², veelzijdig in gebruik
– Groot perceel eigen grond met veel mogelijkheden
– Gelijkvloers wonen mogelijk
– Oplevering in overleg

Dit object is zeer geschikt voor mensen die de combinatie zoeken van vrij wonen met de praktische mogelijkheden van royale bijgebouwen.

De Laen makelaardij is de NVM-makelaar van de verkoper. Wij adviseren u uw eigen NVM-makelaar in te schakelen om uw belangen te behartigen bij de aankoop van dit object.
Deze advertentie en de bijbehorende vragenlijst zijn met de grootst mogelijke zorg samengesteld.
Onzerzijds wordt echter geen enkele aansprakelijkheid aanvaard voor enige onvolledigheid, onjuistheid of anderszins, dan wel de gevolgen daarvan. Alle opgegeven maten en oppervlakten zijn indicatief.

Heb je vragen? Of wil je even binnenkijken?

Neem vrijblijvend contact met ons op

De Laen

Kenmerken

Overdracht

  • Status Onder voorbehoud verkocht
  • Vraagprijs € 1.095.000,- Kosten koper
  • Aanvaarding In overleg

Bouwvorm & Onderhoud

  • Soort woonhuis Vrijstaande woning
  • Soort bouw Bestaande bouw
  • Bouwjaar
  • Soort dak Zadeldak
  • Onderhoud binnen Redelijk
  • Onderhoud buiten Redelijk

Oppervlakten & inhoud

  • Gebruiksoppervlakte wonen ca. 169 m2
  • Gebouwgebonden buitenruimte ca. 3m2
  • Externe bergruimte ca. 427m2
  • Overige inpandige ruimte
  • Inhoud ca. 655m3
  • Perceeloppervlakte ca. 1748m2

Indeling

  • Aantal kamers 5 kamers
  • Aantal slaapkamers 4
  • Aantal badkamers 1 badkamer
  • Badkamervoorzieningen Ligbad, wastafelmeubel
  • Aantal woonlagen 2 woonlagen
  • Voorzieningen Tv kabel

Energie & Installatie

  • Energielabel C
  • Isolatie
  • Verwarming Cv ketel
  • Warm water Cv ketel
  • C.v.-ketel type Gas
  • C.v.-ketel bouwjaar 2007
  • Eigendom Eigendom

Tuin & Buitenruimte

  • Ligging Aan rustige weg
  • Hoofdtuin Tuin rondom
  • Oppervlakte hoofdtuin
  • Ligging hoofdtuin
  • Achterom 1
  • Kwaliteit tuin Normaal

Bergruimte

  • Schuur / berging
  • Aantal schuren / bergingen
  • Voorzieningen

Parkeergelegenheid

  • Parkeerfaciliteiten Openbaar parkeren, op eigen terrein, op afgesloten terrein
  • Garage Vrijstaand steen

Wijk statistieken

Burgerlijke staat
  • Gehuwd
  • Ongehuwd
  • Gescheiden
  • Verweduwd
Leeftijd in gemeente
0 - 15 jaar
15 - 25 jaar
25-45 jaar
45 - 65 jaar
65+ jaar
  • 0 - 15 jaar
  • 15 - 25 jaar
  • 25 - 45 jaar
  • 45 - 65 jaar
  • 65+ jaar
Gezinnen met kinderen
Met kinderen
Zonder kinderen
Alleenstaand
  • Met kinderen
  • Zonder kinderen
  • Alleenstaand
Leeftijd buurtbewoners
0 - 15 jaar
15 - 25 jaar
25-45 jaar
45 - 65 jaar
65+ jaar
  • 0 - 15 jaar
  • 15 - 25 jaar
  • 25 - 45 jaar
  • 45 - 65 jaar
  • 65+ jaar
Bewoners in de straat
Man
Vrouw
  • Man
  • Vrouw

Documenten

    Je nieuwe huis vinden we samen

    Neem vrijblijvend contact met ons op

    De Laen