Omschrijving

GROOTS & MODERN WONEN met de nodige privacy! In deze robuuste en in strakke lijnen gebouwde 2-onder-1-kapwoning met aangebouwde garage en omsloten, onderhoudsvriendelijk aangelegde tuin is het fijn thuiskomen.

Korte opsomming: Riante living van circa 70m2, 4 flinke slaapkamers, tuin met de nodige privacy en gunstige ligging op zonzijde, tuinhuis, goed uitgeruste keuken voor de liefhebber van koken.

In deze wijk Tolhek…

Lees meer

Kenmerken

  • Status Verkocht
  • Vraagprijs € 745.000,- kosten koper
  • Woonoppervlakte ca. 156 m2
  • Aantal slaapkamers 4
  • Bouwjaar 2004
Meer kenmerken
Heb je vragen? Of wil je even binnenkijken?

Neem vrijblijvend contact met ons op

De Laen
Download de brochure

Bekijk op het gemak de brochure van deze woning

Downloaden

Omschrijving

GROOTS & MODERN WONEN met de nodige privacy! In deze robuuste en in strakke lijnen gebouwde 2-onder-1-kapwoning met aangebouwde garage en omsloten, onderhoudsvriendelijk aangelegde tuin is het fijn thuiskomen.

Korte opsomming: Riante living van circa 70m2, 4 flinke slaapkamers, tuin met de nodige privacy en gunstige ligging op zonzijde, tuinhuis, goed uitgeruste keuken voor de liefhebber van koken.

In deze wijk Tolhek is het ook bijzonder prettig wonen! Binnen no time wandel je heerlijk in de natuur, via het wijkpark is er een doorsteek naar de Groenzoom, een prachtig wandelgebied tussen de plaatsen Pijnacker en Berkel en Rodenrijs. Daarnaast bevindt zich op korte afstand het winkelcentrum Keizershof en op fietsafstand het centrum van Pijnacker. Diverse uitvalswegen zijn vlakbij, via de N470 bereik je deze waardoor je binnen 20 minuten de grote steden als Rotterdam, Den Haag en Delft bent. De Randstad Rail is op loopafstand te bereiken.

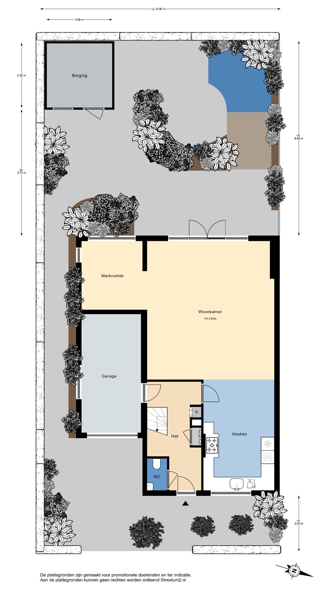
Indeling: Ruime hal/entree, garderobe, meterkast, modern toilet met fontein. Aan voorzijde is de moderne keuken geplaatst in een grote U-vorm met granieten aanrechtblad en diverse inbouwapparatuur. Een living van nagenoeg 70m2 voorzien van een prachtige tegelvloer in landelijke stijl in Romeins verband gelegd, het zitgedeelte bevindt zich aan de tuinzijde met openslaande deuren naar de tuin. Naast het zitgedeelte ligt de werkkamer. Via dubbele openslaande deuren toegang naar de zonnige op het westen gesitueerde achtertuin. De onderhoudsvriendelijke tuin is v.v. borders, een kleine waterpartij en meerdere terrassen en heeft daarnaast nog een grote houten berging. Aan de zijkant van de woning is een aangebouwde stenen garage toegankelijk, naast de garage/ woning loopt een pad op eigengrond die direct toegang biedt naar de achtertuin. Parkeren kan ook op eigen terrein.

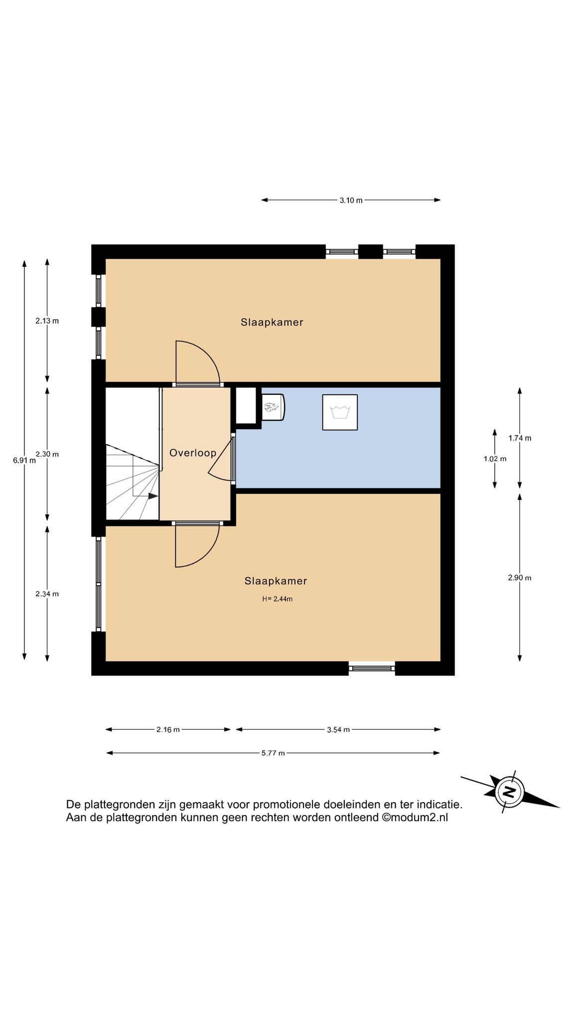
Eerste verdieping: Vanuit de overloop zijn er twee grote slaapkamers toegankelijk en een badkamer, deze beschikt over een ligbad, separate douche, wastafelcombinatie en een tweede toilet.

Tweede verdieping: Overloop met aan voor- en achterzijde twee ruime slaapkamers en inpandig een aparte ruimte met de aansluiting voor wasapparatuur en opstelling van de HR CV combiketel uit 2022.

Kortom, ruime woning, fijne garage, grote tuin voor- zij- en achter in een prettige woonwijk. Laat je positief verrassen en regel een bezichtiging!

Heb je vragen? Of wil je even binnenkijken?

Neem vrijblijvend contact met ons op

De Laen
Download de brochure

Bekijk op het gemak de brochure van deze woning

Downloaden

Kenmerken

Overdracht

  • Status Verkocht
  • Vraagprijs € 745.000,- Kosten koper
  • Aanvaarding In overleg

Bouwvorm & Onderhoud

  • Soort woonhuis Twee onder een kapwoning
  • Soort bouw Bestaande bouw
  • Bouwjaar 2004
  • Soort dak Plat dak
  • Onderhoud binnen Goed
  • Onderhoud buiten Goed

Oppervlakten & inhoud

  • Gebruiksoppervlakte wonen ca. 156 m2
  • Gebouwgebonden buitenruimte
  • Externe bergruimte ca. 9m2
  • Overige inpandige ruimte ca. 14m2
  • Inhoud ca. 573m3
  • Perceeloppervlakte ca. 268m2

Indeling

  • Aantal kamers 5 kamers
  • Aantal slaapkamers 4
  • Aantal badkamers 1 badkamer
  • Badkamervoorzieningen Ligbad, toilet, douche, wastafel
  • Aantal woonlagen 3 woonlagen
  • Voorzieningen Mechanische ventilatie, zonnepanelen

Energie & Installatie

  • Energielabel A
  • Isolatie Volledig geisoleerd
  • Verwarming Cv ketel
  • Warm water Cv ketel
  • C.v.-ketel type Gas
  • C.v.-ketel bouwjaar
  • Eigendom Eigendom

Tuin & Buitenruimte

  • Ligging In woonwijk, beschutte ligging
  • Hoofdtuin Achtertuin
  • Oppervlakte hoofdtuin ca. 96m2
  • Ligging hoofdtuin West
  • Achterom
  • Kwaliteit tuin Fraai aangelegd

Bergruimte

  • Schuur / berging Vrijstaand hout
  • Aantal schuren / bergingen 1
  • Voorzieningen

Parkeergelegenheid

  • Parkeerfaciliteiten Openbaar parkeren, op eigen terrein
  • Garage Aangebouwd steen

Wijk statistieken

Burgerlijke staat
  • Gehuwd
  • Ongehuwd
  • Gescheiden
  • Verweduwd
Leeftijd in gemeente
0 - 15 jaar
15 - 25 jaar
25-45 jaar
45 - 65 jaar
65+ jaar
  • 0 - 15 jaar
  • 15 - 25 jaar
  • 25 - 45 jaar
  • 45 - 65 jaar
  • 65+ jaar
Gezinnen met kinderen
Met kinderen
Zonder kinderen
Alleenstaand
  • Met kinderen
  • Zonder kinderen
  • Alleenstaand
Leeftijd buurtbewoners
0 - 15 jaar
15 - 25 jaar
25-45 jaar
45 - 65 jaar
65+ jaar
  • 0 - 15 jaar
  • 15 - 25 jaar
  • 25 - 45 jaar
  • 45 - 65 jaar
  • 65+ jaar
Bewoners in de straat
Man
Vrouw
  • Man
  • Vrouw

Documenten

    Je nieuwe huis vinden we samen

    Neem vrijblijvend contact met ons op

    De Laen