Omschrijving

Deze ruime en goed onderhouden twee-onder-een-kapwoning is gelegen in de aantrekkelijke, kindvriendelijke wijk Emerald. De woning bevindt zich aan een ruim opgezet hofje met uitsluitend bestemmingsverkeer in de straat. Vanuit huis kijkt u uit op een grote groenstrook met volop speelruimte voor kinderen.

Met vijf à zes slaapkamers, twee badkamers en een grote achtertuin is er altijd een fijn plekje te vinden zodra het weer het…

Lees meer

Kenmerken

  • Status Verkocht
  • Vraagprijs € 900.000,- kosten koper
  • Woonoppervlakte ca. 191 m2
  • Aantal slaapkamers 6
  • Bouwjaar 2003
Meer kenmerken
Heb je vragen? Of wil je even binnenkijken?

Neem vrijblijvend contact met ons op

De Laen
Download de brochure

Bekijk op het gemak de brochure van deze woning

Downloaden

Omschrijving

Deze ruime en goed onderhouden twee-onder-een-kapwoning is gelegen in de aantrekkelijke, kindvriendelijke wijk Emerald. De woning bevindt zich aan een ruim opgezet hofje met uitsluitend bestemmingsverkeer in de straat. Vanuit huis kijkt u uit op een grote groenstrook met volop speelruimte voor kinderen.

Met vijf à zes slaapkamers, twee badkamers en een grote achtertuin is er altijd een fijn plekje te vinden zodra het weer het toelaat. Deze pluspunten benadrukken het optimale wooncomfort van de woning.

Aan de voorzijde beschikt de woning over een ruime oprit met parkeergelegenheid voor maar liefst drie auto’s en een royale aangebouwde garage van 23m².

De wijk Emerald biedt alle benodigde voorzieningen, waaronder een winkelcentrum en diverse scholen. Voor ontspanning en recreatie liggen het Delftse Hout en de Dobbeplas op korte afstand. Bovendien is de historische binnenstad van Delft binnen 10 minuten per fiets bereikbaar. Dankzij de gunstige ligging nabij de A4 en A13 zijn steden als Den Haag en Rotterdam uitstekend te bereiken.

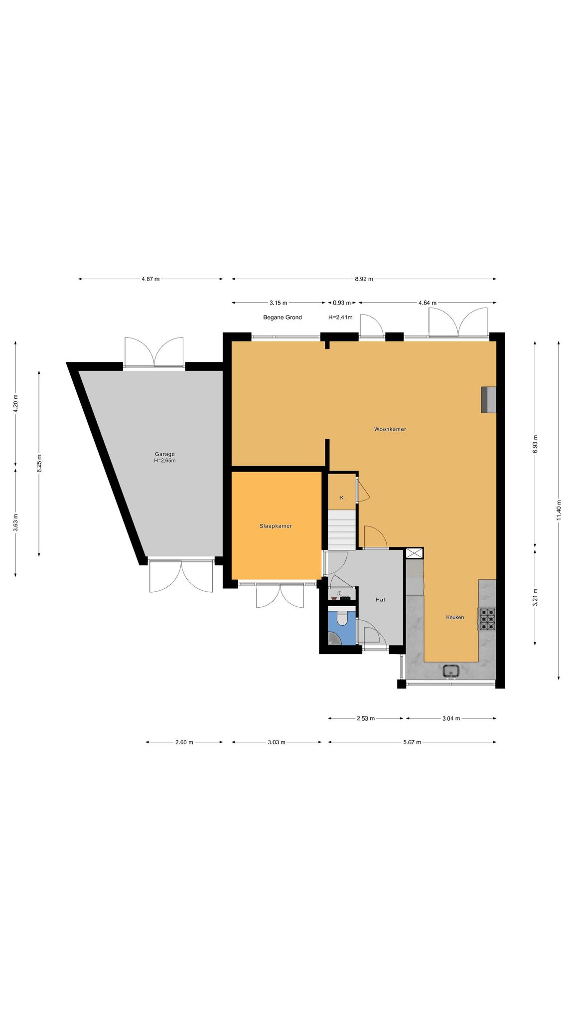
Op de begane grond bevindt zich een extra kamer, die multifunctioneel te gebruiken is als praktijkruimte aan huis, extra slaapkamer, werk- of studeerkamer. Verder is de woning volledig geïsoleerd en beschikt deze over energielabel A.

Indeling

Begane grond: Hal met toilet, meterkast en toegang tot de studeer-/logeerkamer. Riante living met meerdere indelingsmogelijkheden, zoals een extra zitgedeelte bij de sfeervolle gashaard, ruimte voor bijvoorbeeld een piano en zelfs een tafeltennistafel. Via openslaande deuren is de achtertuin toegankelijk. Moderne open keuken met een fraai uitzicht over de grote groenstrook aan de voorzijde. De keuken is voorzien van een granieten aanrechtblad en beschikt over alle relevante apparatuur, waaronder een zes-pits Boretti fornuis en een Quooker. In de keuken ligt een stenen vloer en in de woonkamer massief eiken vloerdelen.

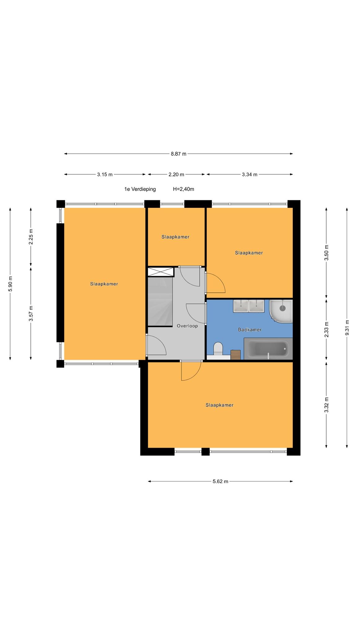
Eerste etage: Overloop, vier slaapkamers met houten vloerafwerking. De ruime badkamer is uitgerust met een ligbad, regendouche, dubbele wastafel, designradiator en een tweede toilet.

Tweede etage: Grote etage met een vijfde slaapkamer, voorzien van vaste kasten, houten vloerafwerking, airconditioning en een eigen douche met wastafel. Op deze etage bevinden zich tevens de opstelling van de cv-combiketel en de wasmachineaansluiting. Vanuit de slaapkamer is er toegang tot het zeer ruim bemeten dakterras op het zuidwesten, waar u de hele dag van de zon kunt genieten.

Tuin: De tuin is fraai aangelegd en vormt in de zomer een groene oase, omringd door leilindes die zorgen voor veel privacy.

Garage: De in een later stadium aangebouwde garage is onderheid, met muren van betonplaten en een tegelvloer. De garage is voorzien van verwarming (vorstvrij). De buitenzijde is afgewerkt met hout, waardoor deze qua uitstraling perfect aansluit bij de architectuur van de woning.

Oplevering in overleg.

Bijzonderheden
– Energielabel A
– Volledige isolatie
– Twee badkamers
– Vijf à zes slaapkamers
– Ruime, betegelde garage
– Beschutte achtertuin met veel privacy

Huis kopen? Neem je eigen NVM-makelaar mee!

Heb je vragen? Of wil je even binnenkijken?

Neem vrijblijvend contact met ons op

De Laen
Download de brochure

Bekijk op het gemak de brochure van deze woning

Downloaden

Kenmerken

Overdracht

  • Status Verkocht
  • Vraagprijs € 900.000,- Kosten koper
  • Aanvaarding In overleg

Bouwvorm & Onderhoud

  • Soort woonhuis Twee onder een kapwoning
  • Soort bouw Bestaande bouw
  • Bouwjaar 2003
  • Soort dak Plat dak
  • Onderhoud binnen Goed
  • Onderhoud buiten Goed

Oppervlakten & inhoud

  • Gebruiksoppervlakte wonen ca. 191 m2
  • Gebouwgebonden buitenruimte ca. 21m2
  • Externe bergruimte
  • Overige inpandige ruimte ca. 23m2
  • Inhoud ca. 716m3
  • Perceeloppervlakte ca. 355m2

Indeling

  • Aantal kamers 7 kamers
  • Aantal slaapkamers 6
  • Aantal badkamers 2 badkamers
  • Badkamervoorzieningen Ligbad, toilet, douche, wastafel, douche, wastafelmeubel
  • Aantal woonlagen 3 woonlagen
  • Voorzieningen Mechanische ventilatie, rookkanaal

Energie & Installatie

  • Energielabel A
  • Isolatie Volledig geisoleerd
  • Verwarming Cv ketel
  • Warm water Cv ketel
  • C.v.-ketel type Gas
  • C.v.-ketel bouwjaar 2020
  • Eigendom Eigendom

Tuin & Buitenruimte

  • Ligging Aan rustige weg, in woonwijk, beschutte ligging
  • Hoofdtuin Achtertuin
  • Oppervlakte hoofdtuin ca. 211m2
  • Ligging hoofdtuin Noordoost
  • Achterom 1
  • Kwaliteit tuin Fraai aangelegd

Bergruimte

  • Schuur / berging
  • Aantal schuren / bergingen
  • Voorzieningen

Parkeergelegenheid

  • Parkeerfaciliteiten Openbaar parkeren, op eigen terrein
  • Garage Aangebouwd steen

Wijk statistieken

Burgerlijke staat
  • Gehuwd
  • Ongehuwd
  • Gescheiden
  • Verweduwd
Leeftijd in gemeente
0 - 15 jaar
15 - 25 jaar
25-45 jaar
45 - 65 jaar
65+ jaar
  • 0 - 15 jaar
  • 15 - 25 jaar
  • 25 - 45 jaar
  • 45 - 65 jaar
  • 65+ jaar
Gezinnen met kinderen
Met kinderen
Zonder kinderen
Alleenstaand
  • Met kinderen
  • Zonder kinderen
  • Alleenstaand
Leeftijd buurtbewoners
0 - 15 jaar
15 - 25 jaar
25-45 jaar
45 - 65 jaar
65+ jaar
  • 0 - 15 jaar
  • 15 - 25 jaar
  • 25 - 45 jaar
  • 45 - 65 jaar
  • 65+ jaar
Bewoners in de straat
Man
Vrouw
  • Man
  • Vrouw

In de buurt

    Documenten

      Je nieuwe huis vinden we samen

      Neem vrijblijvend contact met ons op

      De Laen