Omschrijving

Het is fijn wonen in deze royale woning met garage, oprit, charmante tuin, 5 slaapkamers en 2 badkamers. Ook is aan verduurzaming gedacht, met vloerisolatie en 16 zonnepanelen!

De wijk Koningshof wordt gekenmerkt door het vele groen en de speelse opzet van de wijk met veel woonerven. Centraal in de wijk ligt een basisscholencomplex en het winkelcentrum is op ca. 15 minuten loopafstand. Wil je met de metro reizen? Dan kun je…

Lees meer

Kenmerken

  • Status Verkocht
  • Vraagprijs € 800.000,- kosten koper
  • Woonoppervlakte ca. 201 m2
  • Aantal slaapkamers 5
  • Bouwjaar 1979
Meer kenmerken
Heb je vragen? Of wil je even binnenkijken?

Neem vrijblijvend contact met ons op

De Laen
Download de brochure

Bekijk op het gemak de brochure van deze woning

Downloaden

Omschrijving

Het is fijn wonen in deze royale woning met garage, oprit, charmante tuin, 5 slaapkamers en 2 badkamers. Ook is aan verduurzaming gedacht, met vloerisolatie en 16 zonnepanelen!

De wijk Koningshof wordt gekenmerkt door het vele groen en de speelse opzet van de wijk met veel woonerven. Centraal in de wijk ligt een basisscholencomplex en het winkelcentrum is op ca. 15 minuten loopafstand. Wil je met de metro reizen? Dan kun je gebruik maken van zowel station Pijnacker-Centrum als Pijnacker-Zuid.

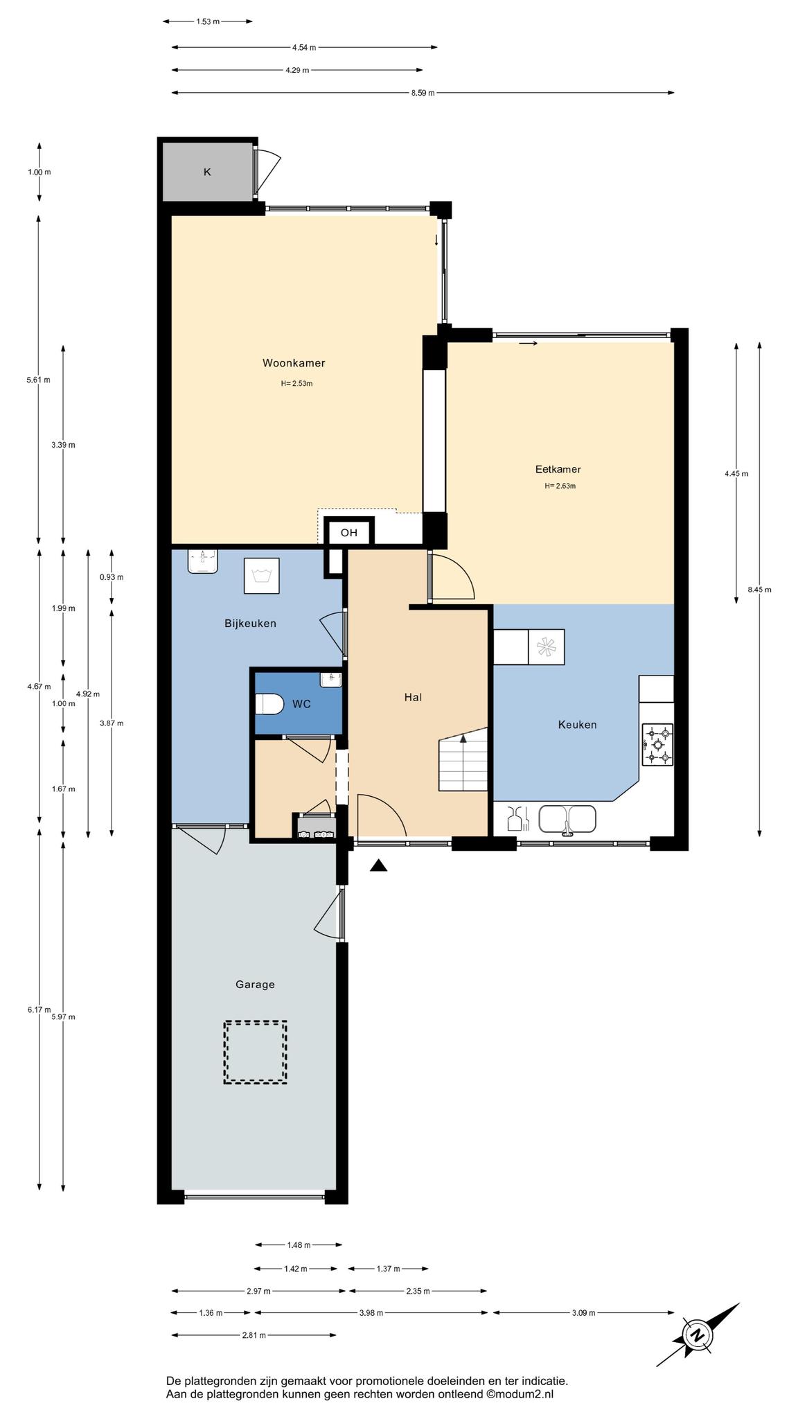
Indeling:
Begane Grond
Parkeer de auto voor de deur of op de openbare plekken en kom binnen! Entree hal met garderobe, toiletruimte, trapopgang en toegang tot de bijkeuken.
Bij binnenkomst valt direct de gezellige zitkuil met gashaard op, een unieke en sfeervolle plek om te ontspannen.
De open keuken aan de voorzijde is voorzien van diverse inbouwapparatuur, te weten een 5-pits gasfornuis, koelkast, vriezer en vaatwasser. Er is voldoende ruimte voor een grote eethoek. De grote raampartijen en schuifpuien verbinden de woonruimte met het groene buiten.
Altijd handig een bijkeuken! Naast voldoende ruimte is hier ook de wasmachine- en drogeraansluiting geïnstalleerd. Via de bijkeuken is de garage toegankelijk. Een grote garage met een garagedeur en een loopdeur.

Wauw wat een tuin! De ruime, zonnige tuin is gelegen op het noordwesten. De tuin is keurig ingedeeld met verschillende zithoeken en beplanting. Tot slot zijn er 2 bergingen, goed voor de tuingereedschap en overige opslag.

1e verdieping
Op de eerste verdieping vindt u drie ruime slaapkamers en twee badkamers. Vanuit de master bedroom is het genieten op het balkon! Ook is vanuit de master bedroom de badkamer toegankelijk. Deze badkamer is voorzien van een heerlijk ligbad, dubbele wastafel en een dakraam dat zorgt voor veel natuurlijk licht. De tweede badkamer is uitgerust met een douche en wastafel. Het toilet is separaat. Aan de voorkant is een grote berging aanwezig voor al uw opslagbehoeften.

2e verdieping
Deze verdieping biedt nog eens twee grote slaapkamers, beide slaapkamers zijn voorzien van airconditioning (2019) voor extra comfort tijdens warme zomerdagen. Beide kamers hebben prettig veel lichtinval. De technische ruimte is aan de achterzijde, hier is de cv-ketel (2021) geïnstalleerd. Tevens biedt deze ruimte voldoende opslagruimte.

Bijzonderheden:
– Energiezuinig met 16 zonnepanelen en vloer-, en gevelisolatie, energielabel B;
– Nieuwe groepenkast in 2018;
– Cv-ketel 2021, airconditioning 2019;
– Garage en eigen oprit;
– Voortuin vernieuwd in 2024.

Heb je vragen? Of wil je even binnenkijken?

Neem vrijblijvend contact met ons op

De Laen
Download de brochure

Bekijk op het gemak de brochure van deze woning

Downloaden

Kenmerken

Overdracht

  • Status Verkocht
  • Vraagprijs € 800.000,- Kosten koper
  • Aanvaarding In overleg

Bouwvorm & Onderhoud

  • Soort woonhuis Geschakelde woning
  • Soort bouw Bestaande bouw
  • Bouwjaar 1979
  • Soort dak
  • Onderhoud binnen Goed
  • Onderhoud buiten Goed

Oppervlakten & inhoud

  • Gebruiksoppervlakte wonen ca. 201 m2
  • Gebouwgebonden buitenruimte ca. 5m2
  • Externe bergruimte ca. 3m2
  • Overige inpandige ruimte ca. 19m2
  • Inhoud ca. 763m3
  • Perceeloppervlakte ca. 328m2

Indeling

  • Aantal kamers 7 kamers
  • Aantal slaapkamers 5
  • Aantal badkamers 2 badkamers
  • Badkamervoorzieningen Toilet, wastafel, ligbad, dubbele wastafel
  • Aantal woonlagen 3 woonlagen
  • Voorzieningen Airconditioning

Energie & Installatie

  • Energielabel B
  • Isolatie Muurisolatie, vloerisolatie
  • Verwarming Cv ketel, gashaard
  • Warm water Cv ketel
  • C.v.-ketel type Gas
  • C.v.-ketel bouwjaar 2021
  • Eigendom

Tuin & Buitenruimte

  • Ligging In woonwijk
  • Hoofdtuin Achtertuin
  • Oppervlakte hoofdtuin ca. 117m2
  • Ligging hoofdtuin Noordwest
  • Achterom 1
  • Kwaliteit tuin Fraai aangelegd

Bergruimte

  • Schuur / berging Vrijstaand hout
  • Aantal schuren / bergingen 1
  • Voorzieningen

Parkeergelegenheid

  • Parkeerfaciliteiten Openbaar parkeren, op eigen terrein
  • Garage Aangebouwd steen

Wijk statistieken

Burgerlijke staat
  • Gehuwd
  • Ongehuwd
  • Gescheiden
  • Verweduwd
Leeftijd in gemeente
0 - 15 jaar
15 - 25 jaar
25-45 jaar
45 - 65 jaar
65+ jaar
  • 0 - 15 jaar
  • 15 - 25 jaar
  • 25 - 45 jaar
  • 45 - 65 jaar
  • 65+ jaar
Gezinnen met kinderen
Met kinderen
Zonder kinderen
Alleenstaand
  • Met kinderen
  • Zonder kinderen
  • Alleenstaand
Leeftijd buurtbewoners
0 - 15 jaar
15 - 25 jaar
25-45 jaar
45 - 65 jaar
65+ jaar
  • 0 - 15 jaar
  • 15 - 25 jaar
  • 25 - 45 jaar
  • 45 - 65 jaar
  • 65+ jaar
Bewoners in de straat
Man
Vrouw
  • Man
  • Vrouw

In de buurt

    Documenten

      Je nieuwe huis vinden we samen

      Neem vrijblijvend contact met ons op

      De Laen