Omschrijving

Ruim stadsappartement van 186 m² in hartje Pijnacker – met 5 slaapkamers & 2 badkamers.

Wonen met de ruimte van een huis, maar midden in het centrum?
Dit bijzondere appartement van ca. 186m², verdeeld over twee woonlagen, biedt volop mogelijkheden voor gezinnen met grotere kinderen die ieder hun eigen plek wensen, thuiswerkers vanwege het aantal kamers en expats vanwege de bereikbaarheid met uitstekende verbindingen naar…

Lees meer

Kenmerken

  • Status Beschikbaar
  • Vraagprijs € 700.000,- kosten koper
  • Woonoppervlakte ca. 186 m2
  • Aantal slaapkamers 5
  • Bouwjaar 2012
Meer kenmerken
Heb je vragen? Of wil je even binnenkijken?

Neem vrijblijvend contact met ons op

De Laen
Download de brochure

Bekijk op het gemak de brochure van deze woning

Downloaden

Omschrijving

Ruim stadsappartement van 186 m² in hartje Pijnacker – met 5 slaapkamers & 2 badkamers.

Wonen met de ruimte van een huis, maar midden in het centrum?
Dit bijzondere appartement van ca. 186m², verdeeld over twee woonlagen, biedt volop mogelijkheden voor gezinnen met grotere kinderen die ieder hun eigen plek wensen, thuiswerkers vanwege het aantal kamers en expats vanwege de bereikbaarheid met uitstekende verbindingen naar Delft, Den Haag en Rotterdam.

Een uniek, royaal en instapklaar appartement — ideaal voor wie groot wil wonen op een centrale plek. De woning is volledig geïsoleerd en heeft energielabel A.

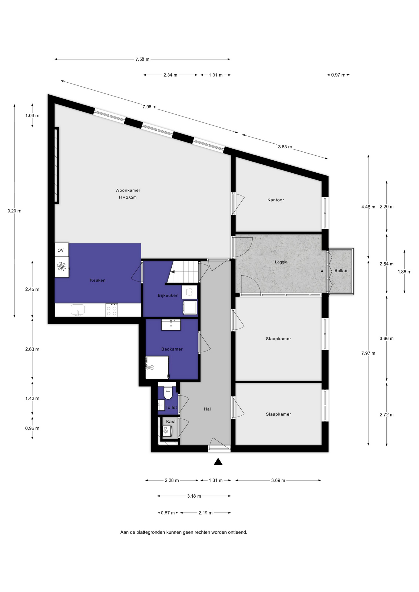
Globale indeling:

Entree via afgesloten entree met videofoon.
Lift naar de 3e verdieping.

3e verdieping:
– entree/hal met meterkast, c.v.-ruimte en toilet
– grote woonkamer van ca. 50m² met een vrij uitzicht en gezellige (gas)haard
– woonkeuken (bj 2020) met apparatuur waaronder een Amerikaanse koel-/vriescombinatie, vaatwasser, inductie kookplaat, wasemkap, combi magnetron/oven en Quooker
– bijkeuken met wasruimte
– loggia
– 3 slaapkamers
– badkamer met inloopdouche en wastafelmeubel
– trapopgang naar 4e verdieping

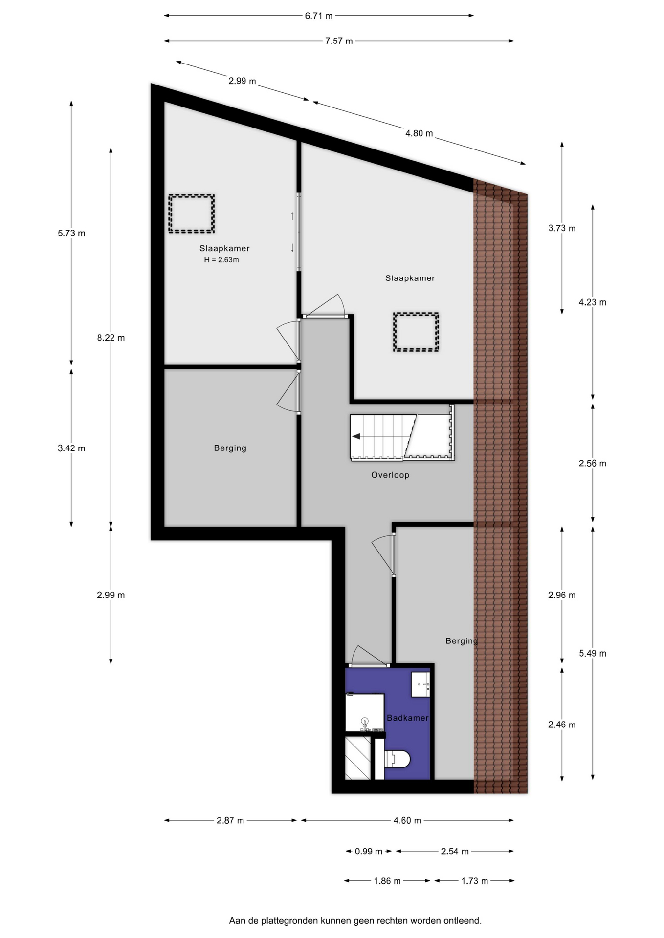
4e verdieping:
– overloop
– 2 slaapkamers met dakramen
– 2 bergkamers, evt. nog een dakraam te plaatsen waardoor nog een extra slaapkamer ontstaat
– 2e badkamer met douche, wastafel en 2e toilet

Ondergronds bevinden zich nog een aparte berging en een eigen parkeerplaats.
Je kunt overdekt binnendoor via de ondergrondse parkeergarage de winkels en de metro bereiken.

Bijzonderheden:
– Twee verdiepingen met een huiselijke indeling
– Vijf slaapkamers en twee moderne badkamers
– Lichte, royale woonkamer met open keuken
– Ruimte voor kantoor of praktijk aan huis
– Alles op loopafstand: winkels, horeca en RandstadRail
– Eigen parkeerplaats nr 158
– Oplevering in overleg
– Bijdrage VvE € 300,53 per maand voor het appartement en de parkeerplaats

De Laen makelaardij is de NVM-makelaar van de verkoper. Wij adviseren u uw eigen NVM-makelaar in te schakelen om uw belangen te behartigen bij de aankoop van dit object.
Deze advertentie en de bijbehorende vragenlijst zijn met de grootst mogelijke zorg samengesteld.
Onzerzijds wordt echter geen enkele aansprakelijkheid aanvaard voor enige onvolledigheid, onjuistheid of anderszins, dan wel de gevolgen daarvan.
Alle opgegeven maten en oppervlakten zijn indicatief.

Heb je vragen? Of wil je even binnenkijken?

Neem vrijblijvend contact met ons op

De Laen
Download de brochure

Bekijk op het gemak de brochure van deze woning

Downloaden

Kenmerken

Overdracht

  • Status Beschikbaar
  • Vraagprijs € 700.000,- Kosten koper
  • Aanvaarding In overleg

Bouwvorm & Onderhoud

  • Soort woonhuis
  • Soort bouw Bestaande bouw
  • Bouwjaar 2012
  • Soort dak Plat dak
  • Onderhoud binnen Goed
  • Onderhoud buiten Goed

Oppervlakten & inhoud

  • Gebruiksoppervlakte wonen ca. 186 m2
  • Gebouwgebonden buitenruimte ca. 12m2
  • Externe bergruimte ca. 4m2
  • Overige inpandige ruimte
  • Inhoud ca. 585m3
  • Perceeloppervlakte

Indeling

  • Aantal kamers 8 kamers
  • Aantal slaapkamers 5
  • Aantal badkamers 1 badkamer
  • Badkamervoorzieningen Toilet, douche, wastafel
  • Aantal woonlagen 2 woonlagen
  • Voorzieningen Mechanische ventilatie, tv kabel, lift

Energie & Installatie

  • Energielabel A
  • Isolatie Volledig geisoleerd
  • Verwarming Cv ketel
  • Warm water Cv ketel
  • C.v.-ketel type Gas
  • C.v.-ketel bouwjaar 2012
  • Eigendom Eigendom

Tuin & Buitenruimte

  • Ligging Aan rustige weg, in centrum, in woonwijk, vrij uitzicht
  • Hoofdtuin
  • Oppervlakte hoofdtuin
  • Ligging hoofdtuin
  • Achterom
  • Kwaliteit tuin

Bergruimte

  • Schuur / berging Box
  • Aantal schuren / bergingen 1
  • Voorzieningen

Parkeergelegenheid

  • Parkeerfaciliteiten Openbaar parkeren, parkeergarage, op eigen terrein
  • Garage Parkeerplaats

Wijk statistieken

Burgerlijke staat
  • Gehuwd
  • Ongehuwd
  • Gescheiden
  • Verweduwd
Leeftijd in gemeente
0 - 15 jaar
15 - 25 jaar
25-45 jaar
45 - 65 jaar
65+ jaar
  • 0 - 15 jaar
  • 15 - 25 jaar
  • 25 - 45 jaar
  • 45 - 65 jaar
  • 65+ jaar
Gezinnen met kinderen
Met kinderen
Zonder kinderen
Alleenstaand
  • Met kinderen
  • Zonder kinderen
  • Alleenstaand
Leeftijd buurtbewoners
0 - 15 jaar
15 - 25 jaar
25-45 jaar
45 - 65 jaar
65+ jaar
  • 0 - 15 jaar
  • 15 - 25 jaar
  • 25 - 45 jaar
  • 45 - 65 jaar
  • 65+ jaar
Bewoners in de straat
Man
Vrouw
  • Man
  • Vrouw

Documenten

    Je nieuwe huis vinden we samen

    Neem vrijblijvend contact met ons op

    De Laen