Omschrijving

Laat je verleiden door deze moderne, goed onderhouden woning op een heerlijke plek. De uitgebouwde woonkamer met gashaard en strakke gietvloer vormt het hart van het huis, terwijl de moderne keuken uitkijkt over de groene singel. Met maar liefst 3 ruime slaapkamers, veel bergruimte en een fijne tuin is dit een perfecte gezinswoning waar je zo in kunt.

Begane grond: Entree/hal met meterkast en modern toilet. De uitgebouwde…

Lees meer

Kenmerken

  • Status Onder voorbehoud verkocht
  • Vraagprijs € 525.000,- kosten koper
  • Woonoppervlakte ca. 119 m2
  • Aantal slaapkamers 3
  • Bouwjaar 1990
Meer kenmerken
Heb je vragen? Of wil je even binnenkijken?

Neem vrijblijvend contact met ons op

De Laen
Download de brochure

Bekijk op het gemak de brochure van deze woning

Downloaden

Omschrijving

Laat je verleiden door deze moderne, goed onderhouden woning op een heerlijke plek. De uitgebouwde woonkamer met gashaard en strakke gietvloer vormt het hart van het huis, terwijl de moderne keuken uitkijkt over de groene singel. Met maar liefst 3 ruime slaapkamers, veel bergruimte en een fijne tuin is dit een perfecte gezinswoning waar je zo in kunt.

Begane grond: Entree/hal met meterkast en modern toilet. De uitgebouwde woonkamer is een heerlijke leefruimte met gietvloer, vloerverwarming en een sfeervolle gashaard. En je stapt zo de tuin in. De moderne (half open) keuken met kookeiland bevindt zich aan de voorzijde en biedt een mooi uitzicht op de singel. Uitgerust met goede inbouwapparatuur waaronder een kokend waterkraan en een gezellige bar: dé plek voor een koffie in de ochtend of een borrel in de namiddag.

1e etage: Overloop met toegang tot 2 ruime slaapkamers. De slaapkamer aan de achterzijde is momenteel ingericht als inloopkast. De slaapkamer aan de voorzijde is v.v. een rolluik. De moderne badkamer beschikt over een inloopdouche, toilet, dubbel wastafelmeubel en designradiator.

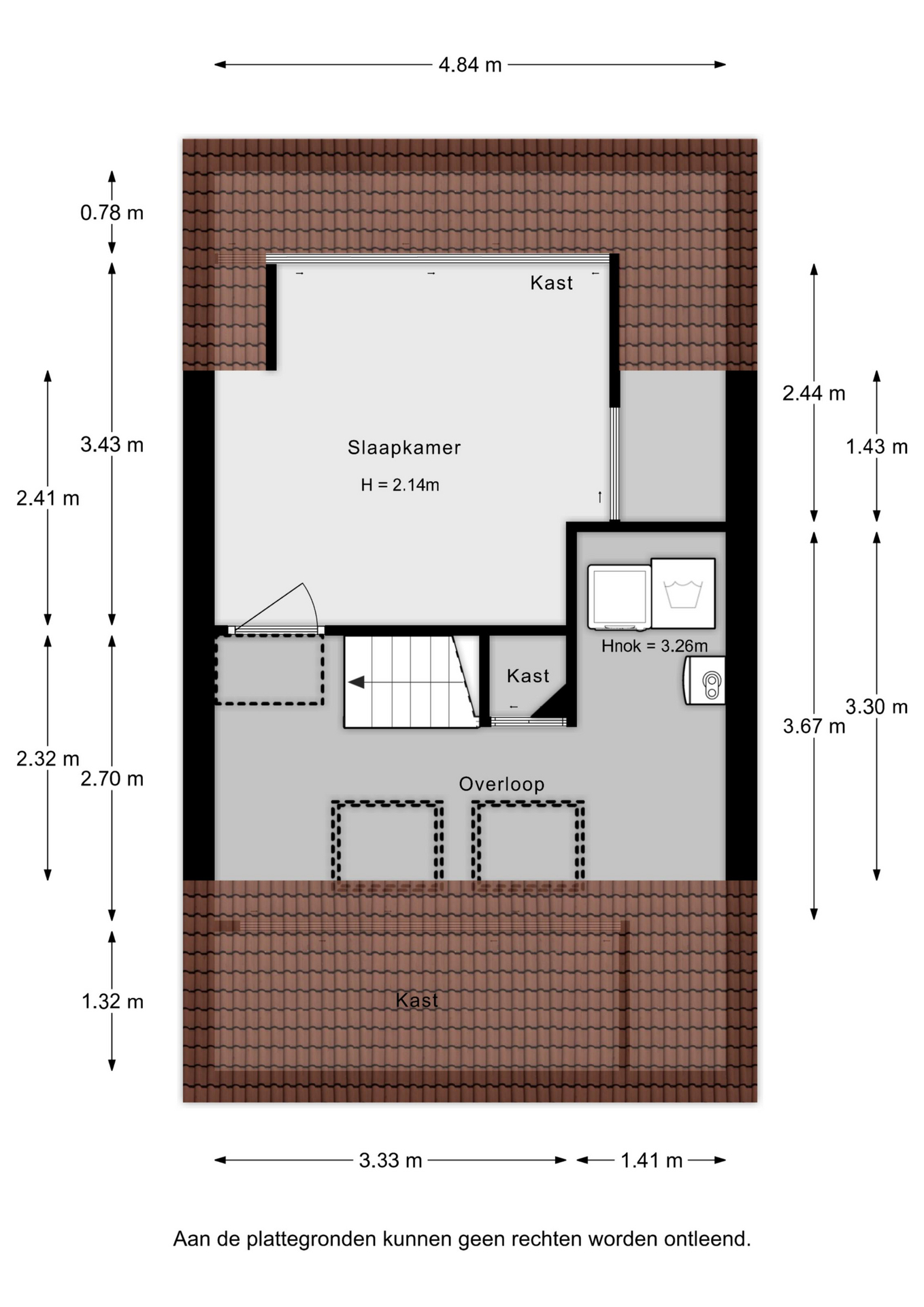
2e etage: Overloop met twee dakramen aan de voorzijde. Hier bevinden zich de c.v.-ketelopstelling en de aansluiting voor de wasmachine.
Aan de achterzijde een grote 3e slaapkamer dankzij de brede dakkapel. Op deze verdieping is veel bergruimte aanwezig.
Extra pluspunt: een bergvliering voor nog meer opslag.

Tuin: De tuin is een heerlijke plek met veel privacy – ideaal om te loungen in de zon of ’s avonds te genieten bij de gashaard. Achterin staat de schuur met overkapping en kleine vliering en er is uiteraard een achterom.

Ligging
De woning ligt in Klapwijk in een rustige straat (eenrichting verkeer) met vrij uitzicht over de singel. Winkels, scholen, sportfaciliteiten en kinderopvang vind je op korte afstand. Ook openbaar vervoer (metro Pijnacker-Zuid en busverbindingen) en uitvalswegen richting Delft, Rotterdam en Den Haag zijn uitstekend bereikbaar. Door de herinrichting van de complete wijk is het op dit moment iets rommeliger, maar dit is van tijdelijke aard.

Bijzonderheden:
– Instapklaar
– Uitgebouwde woonkamer
– 3 slaapkamers
– Moderne badkamer
– Dakkapel achter
– Energielabel C
– Ouderdomsclausule & asbestclausule van toepassing (standaard bij woningen ouder dan 25jr)

Oplevering: maart 2026 / in onderling overleg

De Laen makelaardij is de NVM-makelaar van de verkoper. Wij adviseren u uw eigen NVM-makelaar in te schakelen om uw belangen te behartigen bij de aankoop van dit object. Deze advertentie en de bijbehorende vragenlijst zijn met de grootst mogelijke zorg samengesteld. Onzerzijds wordt echter geen enkele aansprakelijkheid aanvaard voor enige onvolledigheid, onjuistheid of anderszins, dan wel de gevolgen daarvan. Alle opgegeven maten en oppervlakten zijn indicatief.

Heb je vragen? Of wil je even binnenkijken?

Neem vrijblijvend contact met ons op

De Laen
Download de brochure

Bekijk op het gemak de brochure van deze woning

Downloaden

Kenmerken

Overdracht

  • Status Onder voorbehoud verkocht
  • Vraagprijs € 525.000,- Kosten koper
  • Aanvaarding In overleg

Bouwvorm & Onderhoud

  • Soort woonhuis Tussenwoning
  • Soort bouw Bestaande bouw
  • Bouwjaar 1990
  • Soort dak Zadeldak
  • Onderhoud binnen Goed
  • Onderhoud buiten Goed

Oppervlakten & inhoud

  • Gebruiksoppervlakte wonen ca. 119 m2
  • Gebouwgebonden buitenruimte ca. 2m2
  • Externe bergruimte ca. 6m2
  • Overige inpandige ruimte
  • Inhoud ca. 385m3
  • Perceeloppervlakte ca. 129m2

Indeling

  • Aantal kamers 4 kamers
  • Aantal slaapkamers 3
  • Aantal badkamers 1 badkamer
  • Badkamervoorzieningen Toilet, wastafelmeubel, inloopdouche
  • Aantal woonlagen 4 woonlagen
  • Voorzieningen Mechanische ventilatie, rolluiken, tv kabel, dakraam

Energie & Installatie

  • Energielabel C
  • Isolatie Volledig geisoleerd
  • Verwarming Cv ketel
  • Warm water Cv ketel
  • C.v.-ketel type Gas
  • C.v.-ketel bouwjaar
  • Eigendom Eigendom

Tuin & Buitenruimte

  • Ligging In woonwijk, vrij uitzicht
  • Hoofdtuin Achtertuin
  • Oppervlakte hoofdtuin ca. 40m2
  • Ligging hoofdtuin Noord
  • Achterom 1
  • Kwaliteit tuin Verzorgd

Bergruimte

  • Schuur / berging Vrijstaand steen
  • Aantal schuren / bergingen 1
  • Voorzieningen Voorzien van elektra

Parkeergelegenheid

  • Parkeerfaciliteiten Openbaar parkeren
  • Garage Geen garage

Wijk statistieken

Burgerlijke staat
  • Gehuwd
  • Ongehuwd
  • Gescheiden
  • Verweduwd
Leeftijd in gemeente
0 - 15 jaar
15 - 25 jaar
25-45 jaar
45 - 65 jaar
65+ jaar
  • 0 - 15 jaar
  • 15 - 25 jaar
  • 25 - 45 jaar
  • 45 - 65 jaar
  • 65+ jaar
Gezinnen met kinderen
Met kinderen
Zonder kinderen
Alleenstaand
  • Met kinderen
  • Zonder kinderen
  • Alleenstaand
Leeftijd buurtbewoners
0 - 15 jaar
15 - 25 jaar
25-45 jaar
45 - 65 jaar
65+ jaar
  • 0 - 15 jaar
  • 15 - 25 jaar
  • 25 - 45 jaar
  • 45 - 65 jaar
  • 65+ jaar
Bewoners in de straat
Man
Vrouw
  • Man
  • Vrouw

Documenten

    Je nieuwe huis vinden we samen

    Neem vrijblijvend contact met ons op

    De Laen