Omschrijving

Duurzame, instapklare hoekwoning met carport in Koningshof – ruimte, comfort en zorgeloos wonen!

Aan de rand van de geliefde en kindvriendelijke wijk Koningshof in Pijnacker staat deze royale hoekwoning met carport, vier grote slaapkamers, veel bergruimte en een moderne keuken uit 2024. De woning is niet alleen instapklaar, maar ook onderhoudsarm – ideaal voor gezinnen die comfortabel willen wonen.

Energiezuinig: kunststof…

Lees meer

Kenmerken

  • Status Beschikbaar
  • Vraagprijs € 550.000,- kosten koper
  • Woonoppervlakte ca. 130 m2
  • Aantal slaapkamers 4
  • Bouwjaar 1976
Meer kenmerken
Heb je vragen? Of wil je even binnenkijken?

Neem vrijblijvend contact met ons op

De Laen
Download de brochure

Bekijk op het gemak de brochure van deze woning

Downloaden

Omschrijving

Duurzame, instapklare hoekwoning met carport in Koningshof – ruimte, comfort en zorgeloos wonen!

Aan de rand van de geliefde en kindvriendelijke wijk Koningshof in Pijnacker staat deze royale hoekwoning met carport, vier grote slaapkamers, veel bergruimte en een moderne keuken uit 2024. De woning is niet alleen instapklaar, maar ook onderhoudsarm – ideaal voor gezinnen die comfortabel willen wonen.

Energiezuinig: kunststof kozijnen met dubbel glas (behalve de voordeur) en duurzame Keralit gevelbeplating woon je hier comfortabel. Het dak is in 2022 vernieuwd, de schoorsteen en dakgoten zijn goed onderhouden, de c.v. dateert van 2013 en er is vloer- en spouwmuurisolatie toegepast.

Globale indeling:
Voortuin met carport, dus altijd een eigen plek voor de deur.

Begane grond:
– Entree/hal met meterkast en toilet
– Woonkamer met trapkast en een nieuwe laminaatvloer van 2024
– Splinternieuwe keuken (2024): Een moderne, lichte keuken met luxe apparatuur zoals grote koelkast, grote vriezer met 5 laden, vaatwasser, 90 cm fornuis van Bertazonni met een 6-pits gaskookplaat en oven

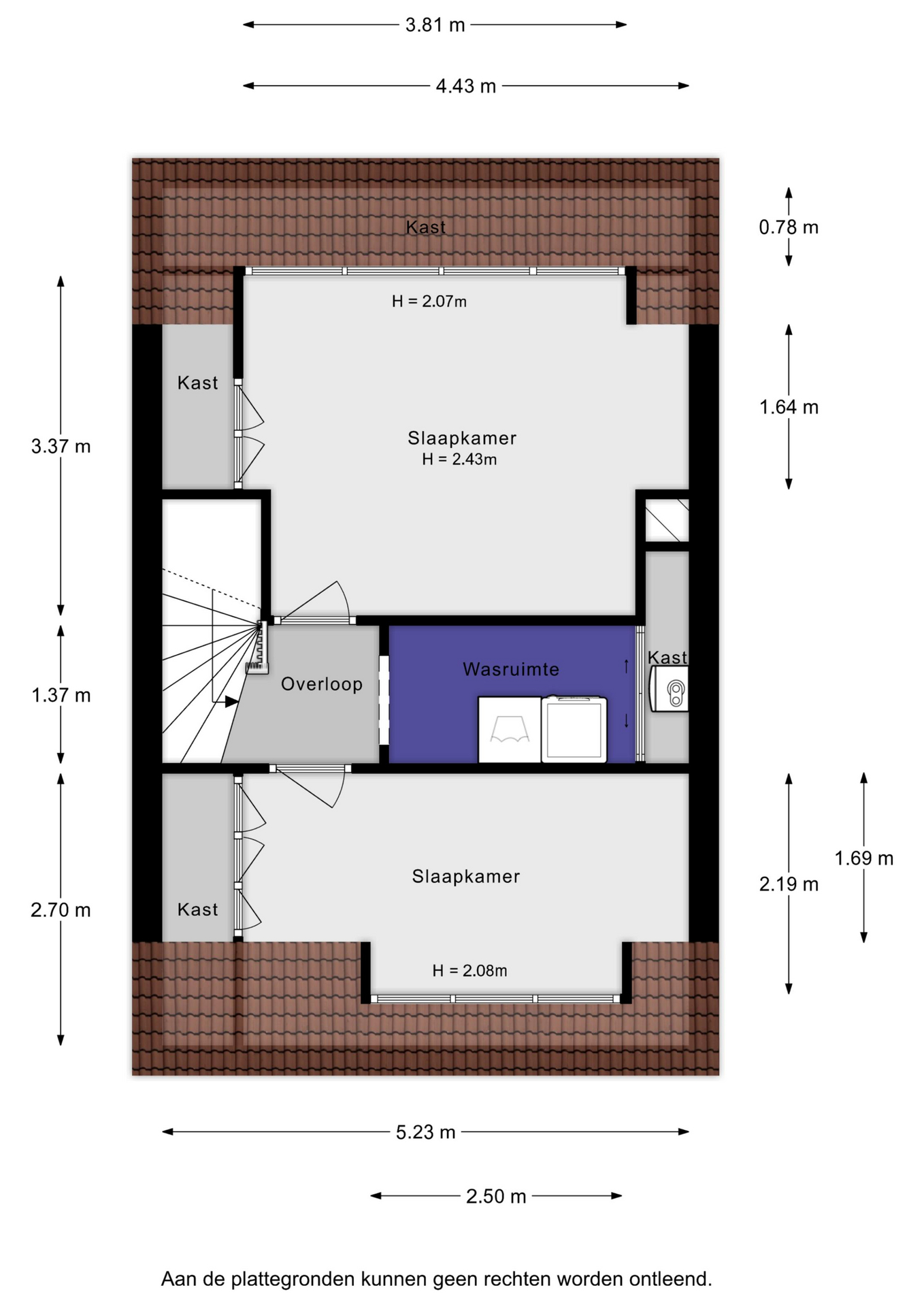
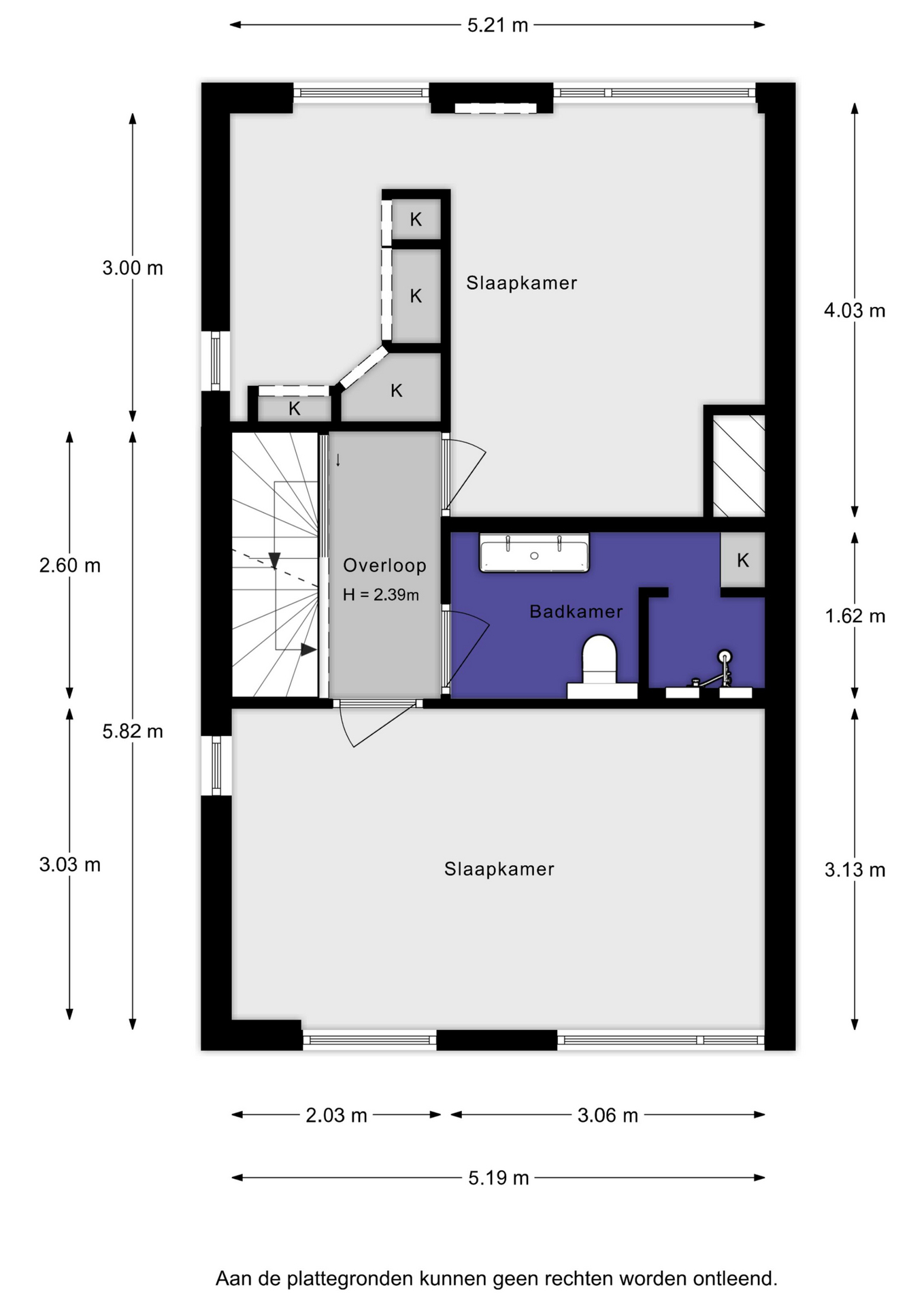
1e verdieping:
– 2 slaapkamers (voorheen 3) met houten vloeren, de hoofdslaapkamer heeft een walk-in closet die achterblijft
– Badkamer met inloopdouche, 2e toilet, wastafelmeubel en design radiator

2e verdieping:
– Overloop met grote was-/berg-/c.v.-ruimte
– 2 Grote slaapkamers, ieder met een dakkapel en laminaatvloeren, er is veel ingebouwde kastruimte aanwezig

De tuin is op het Oosten gesitueerd, heeft een stenen berging en een achterom.

De ligging in de wijk Koningshof:
De woning ligt aan de rand van Koningshof, een rustige en ruim opgezette wijk met veel groen, brede straten en speelplekken voor kinderen. Op loopafstand vind je basisscholen, kinderopvang, sportvelden en speeltuintjes.
De dorpskern van Pijnacker met winkels, horeca en gezellige weekmarkt is binnen enkele minuten bereikbaar.

Met de RandstadRail en uitvalswegen richting Den Haag, Delft en Rotterdam ben je bovendien uitstekend verbonden – ideaal voor wie rustig wil wonen maar toch dichtbij de stad wil blijven. In de directe omgeving vind je ook het Balijbos en de Groenzoom, waar je heerlijk kunt wandelen, fietsen of picknicken met het gezin.

Bijzonderheden:
– Oplevering vanaf eind februari 2026
– Spouwmuur- en vloerisolatie (EPS parels)
– Daken vernieuwd
– C.v. bouwjaar 2013
– Kunststof kozijnen met dubbelglas, keralit gevelbeplating
– Keuken 2024
– Badkamer 2014
– 4 Grote slaapkamers

De Laen makelaardij is de NVM-makelaar van de verkoper. Wij adviseren u uw eigen NVM-makelaar in te schakelen om uw belangen te behartigen bij de aankoop van dit object.
Deze advertentie en de bijbehorende vragenlijst zijn met de grootst mogelijke zorg samengesteld.
Onzerzijds wordt echter geen enkele aansprakelijkheid aanvaard voor enige onvolledigheid, onjuistheid of anderszins, dan wel de gevolgen daarvan.

Heb je vragen? Of wil je even binnenkijken?

Neem vrijblijvend contact met ons op

De Laen
Download de brochure

Bekijk op het gemak de brochure van deze woning

Downloaden

Kenmerken

Overdracht

  • Status Beschikbaar
  • Vraagprijs € 550.000,- Kosten koper
  • Aanvaarding In overleg

Bouwvorm & Onderhoud

  • Soort woonhuis Hoekwoning
  • Soort bouw Bestaande bouw
  • Bouwjaar 1976
  • Soort dak Zadeldak
  • Onderhoud binnen Goed
  • Onderhoud buiten Goed

Oppervlakten & inhoud

  • Gebruiksoppervlakte wonen ca. 130 m2
  • Gebouwgebonden buitenruimte ca. 16m2
  • Externe bergruimte ca. 6m2
  • Overige inpandige ruimte
  • Inhoud ca. 446m3
  • Perceeloppervlakte ca. 194m2

Indeling

  • Aantal kamers 5 kamers
  • Aantal slaapkamers 4
  • Aantal badkamers 1 badkamer
  • Badkamervoorzieningen Toilet, douche, wastafelmeubel
  • Aantal woonlagen 3 woonlagen
  • Voorzieningen Mechanische ventilatie, rolluiken, tv kabel

Energie & Installatie

  • Energielabel C
  • Isolatie Muurisolatie, vloerisolatie, dubbel glas
  • Verwarming Cv ketel
  • Warm water Cv ketel, elektrische boiler eigendom
  • C.v.-ketel type Gas
  • C.v.-ketel bouwjaar 2013
  • Eigendom Eigendom

Tuin & Buitenruimte

  • Ligging In woonwijk
  • Hoofdtuin Achtertuin
  • Oppervlakte hoofdtuin ca. 58m2
  • Ligging hoofdtuin Noordoost
  • Achterom 1
  • Kwaliteit tuin Fraai aangelegd

Bergruimte

  • Schuur / berging Aangebouwd steen
  • Aantal schuren / bergingen 1
  • Voorzieningen Voorzien van elektra

Parkeergelegenheid

  • Parkeerfaciliteiten Op eigen terrein
  • Garage Carport

Wijk statistieken

Burgerlijke staat
  • Gehuwd
  • Ongehuwd
  • Gescheiden
  • Verweduwd
Leeftijd in gemeente
0 - 15 jaar
15 - 25 jaar
25-45 jaar
45 - 65 jaar
65+ jaar
  • 0 - 15 jaar
  • 15 - 25 jaar
  • 25 - 45 jaar
  • 45 - 65 jaar
  • 65+ jaar
Gezinnen met kinderen
Met kinderen
Zonder kinderen
Alleenstaand
  • Met kinderen
  • Zonder kinderen
  • Alleenstaand
Leeftijd buurtbewoners
0 - 15 jaar
15 - 25 jaar
25-45 jaar
45 - 65 jaar
65+ jaar
  • 0 - 15 jaar
  • 15 - 25 jaar
  • 25 - 45 jaar
  • 45 - 65 jaar
  • 65+ jaar
Bewoners in de straat
Man
Vrouw
  • Man
  • Vrouw

Documenten

    Je nieuwe huis vinden we samen

    Neem vrijblijvend contact met ons op

    De Laen