Omschrijving

Welkom aan de Etty Hillesumsingel 10, een fijne gezinswoning in de geliefde wijk Klapwijk. Met een speeltuin recht tegenover de woning, is dit een ideale plek voor jonge gezinnen. De woning beschikt over 3 ruime slaapkamers (4 ook mogelijk), een moderne keuken en een zonnige tuin op het zuidwesten.

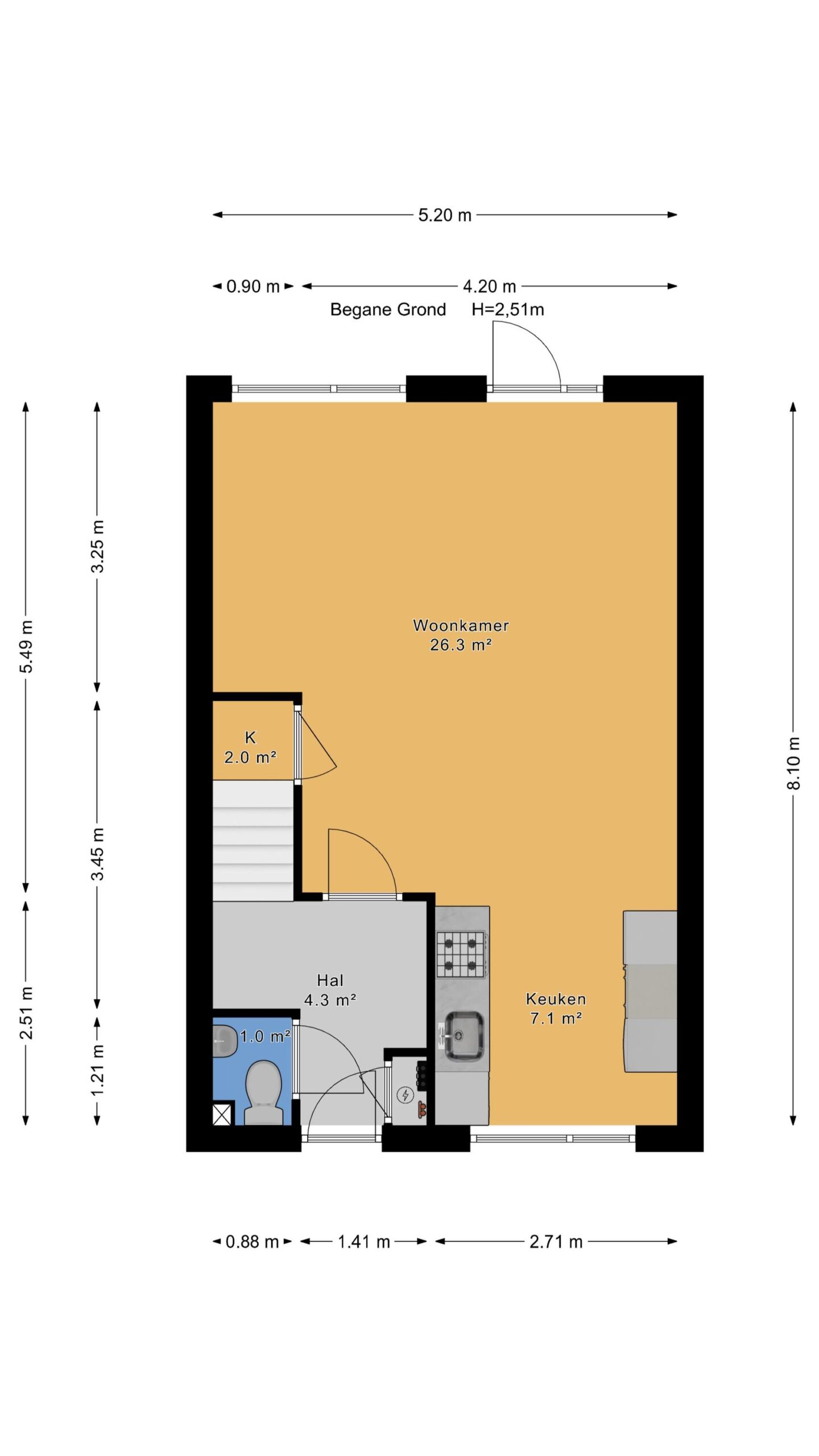
Begane grond:
Bij binnenkomst tref je een lichte woonkamer met zicht op de tuin. De open, moderne keuken aan de voorzijde is van…

Lees meer

Kenmerken

  • Status Beschikbaar
  • Vraagprijs € 475.000,- kosten koper
  • Woonoppervlakte ca. 108 m2
  • Aantal slaapkamers 3
  • Bouwjaar 1992
Meer kenmerken
Heb je vragen? Of wil je even binnenkijken?

Neem vrijblijvend contact met ons op

De Laen
Download de brochure

Bekijk op het gemak de brochure van deze woning

Downloaden

Omschrijving

Welkom aan de Etty Hillesumsingel 10, een fijne gezinswoning in de geliefde wijk Klapwijk. Met een speeltuin recht tegenover de woning, is dit een ideale plek voor jonge gezinnen. De woning beschikt over 3 ruime slaapkamers (4 ook mogelijk), een moderne keuken en een zonnige tuin op het zuidwesten.

Begane grond:
Bij binnenkomst tref je een lichte woonkamer met zicht op de tuin. De open, moderne keuken aan de voorzijde is van alle gemakken voorzien. Vanuit de woonkamer heb je toegang tot de verzorgde tuin met zonnige zuidwest-ligging, leuk aangelegd én met een overkapping, schuur en achterom.

Eerste etage:
Hier bevinden zich 2 ruime slaapkamers (voorheen 3, is weer terug te brengen), en een functionele badkamer voorzien van douche, ligbad, wastafel en 2e toilet.

Tweede etage:
Op de zolder is een royale 3e slaapkamer gerealiseerd, met veel lichtinval dankzij de dakkapel aan de voorzijde met onderhoudsarme kunststof kozijnen. Tevens is hier volop bergruimte en vind je de aansluiting voor de wasmachine en de opstelling van de c.v.-ketel.

Locatie:
Klapwijk is volop in ontwikkeling en wordt steeds mooier. Op dit moment wordt de wijk gerenoveerd met vernieuwde riolering en het ophogen van de straten. Een fijne, rustige buurt met goede voorzieningen, scholen en openbaar vervoer in de nabijheid.

Bijzonderheden:

– Gelegen in een kindvriendelijke straat
– Speeltuin direct voor de deur
– Dakkapel met kunststof kozijnen
– Moderne keuken
– Zonnige tuin op het zuidwesten

Oplevering: in onderling overleg

Heb je vragen? Of wil je even binnenkijken?

Neem vrijblijvend contact met ons op

De Laen
Download de brochure

Bekijk op het gemak de brochure van deze woning

Downloaden

Kenmerken

Overdracht

  • Status Beschikbaar
  • Vraagprijs € 475.000,- Kosten koper
  • Aanvaarding In overleg

Bouwvorm & Onderhoud

  • Soort woonhuis Tussenwoning
  • Soort bouw Bestaande bouw
  • Bouwjaar 1992
  • Soort dak Zadeldak
  • Onderhoud binnen Goed
  • Onderhoud buiten Goed

Oppervlakten & inhoud

  • Gebruiksoppervlakte wonen ca. 108 m2
  • Gebouwgebonden buitenruimte
  • Externe bergruimte ca. 5m2
  • Overige inpandige ruimte
  • Inhoud ca. 372m3
  • Perceeloppervlakte ca. 135m2

Indeling

  • Aantal kamers 4 kamers
  • Aantal slaapkamers 3
  • Aantal badkamers 1 badkamer
  • Badkamervoorzieningen Ligbad, toilet, douche, wastafelmeubel
  • Aantal woonlagen 3 woonlagen
  • Voorzieningen Mechanische ventilatie, tv kabel, buitenzonwering, dakraam

Energie & Installatie

  • Energielabel B
  • Isolatie Volledig geisoleerd
  • Verwarming Cv ketel
  • Warm water Cv ketel
  • C.v.-ketel type Gas
  • C.v.-ketel bouwjaar 2016
  • Eigendom Eigendom

Tuin & Buitenruimte

  • Ligging In woonwijk
  • Hoofdtuin Achtertuin
  • Oppervlakte hoofdtuin ca. 65m2
  • Ligging hoofdtuin Zuidwest
  • Achterom 1
  • Kwaliteit tuin Normaal

Bergruimte

  • Schuur / berging Vrijstaand steen
  • Aantal schuren / bergingen 1
  • Voorzieningen

Parkeergelegenheid

  • Parkeerfaciliteiten Openbaar parkeren
  • Garage Geen garage

Wijk statistieken

Burgerlijke staat
  • Gehuwd
  • Ongehuwd
  • Gescheiden
  • Verweduwd
Leeftijd in gemeente
0 - 15 jaar
15 - 25 jaar
25-45 jaar
45 - 65 jaar
65+ jaar
  • 0 - 15 jaar
  • 15 - 25 jaar
  • 25 - 45 jaar
  • 45 - 65 jaar
  • 65+ jaar
Gezinnen met kinderen
Met kinderen
Zonder kinderen
Alleenstaand
  • Met kinderen
  • Zonder kinderen
  • Alleenstaand
Leeftijd buurtbewoners
0 - 15 jaar
15 - 25 jaar
25-45 jaar
45 - 65 jaar
65+ jaar
  • 0 - 15 jaar
  • 15 - 25 jaar
  • 25 - 45 jaar
  • 45 - 65 jaar
  • 65+ jaar
Bewoners in de straat
Man
Vrouw
  • Man
  • Vrouw

Documenten

    Je nieuwe huis vinden we samen

    Neem vrijblijvend contact met ons op

    De Laen