Omschrijving

Wonen met sfeer en ruimte in het hart van Pijnacker!

Deze charmante tussenwoning met een royale tuin van 17 meter (!), uitgebouwde woonkamer en dakopbouw is gelegen in een kindvriendelijke buurt op loopafstand van het bruisende centrum van Pijnacker.

Indeling:
Begane grond:
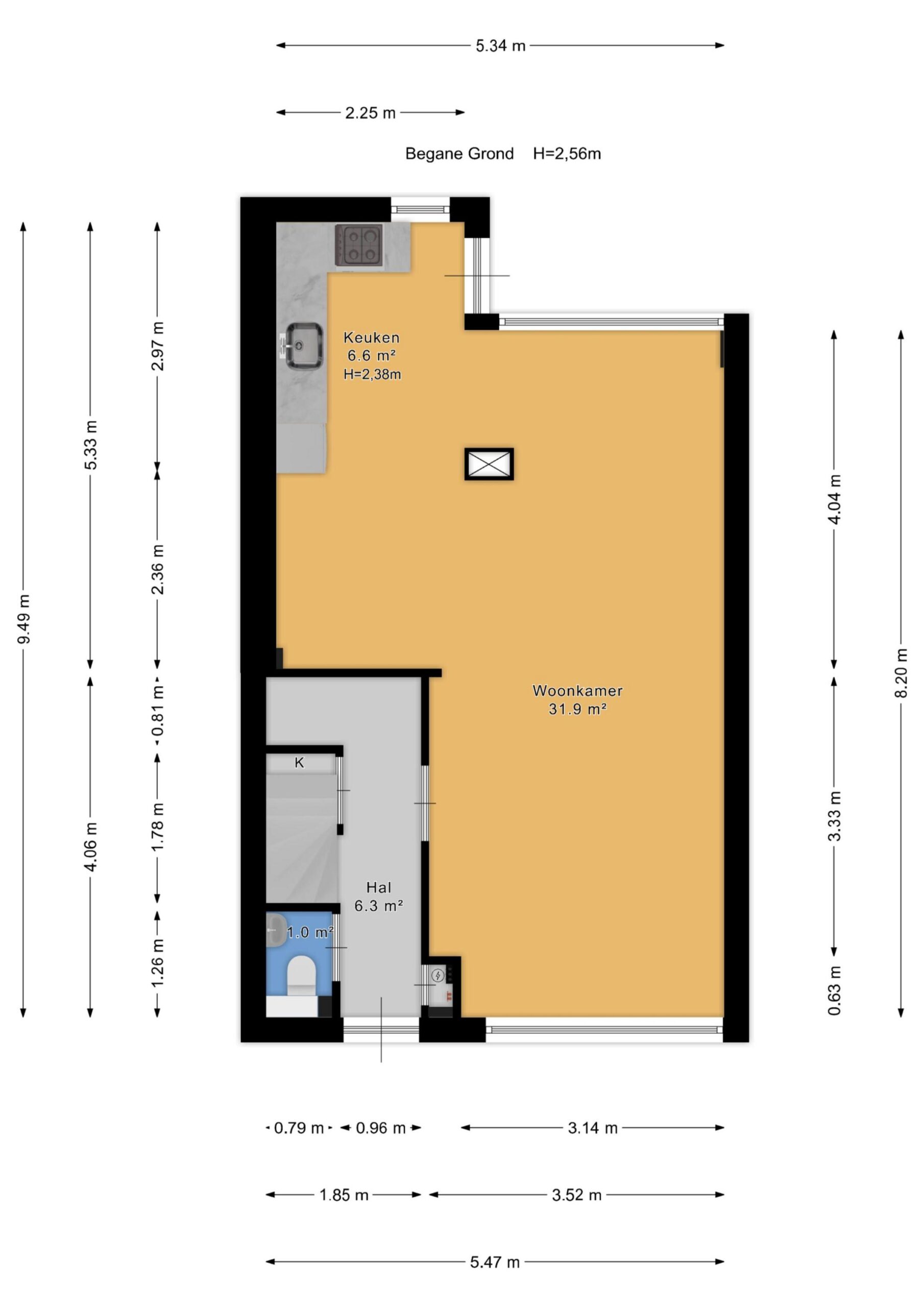
Entree in een nette hal met keurige toiletruimte, trapopgang en trapkast. De uitgebouwde woonkamer biedt aan de voorzijde ruimte voor een…

Lees meer

Kenmerken

  • Status Beschikbaar
  • Vraagprijs € 435.000,- kosten koper
  • Woonoppervlakte ca. 93 m2
  • Aantal slaapkamers 3
  • Bouwjaar 1954
Meer kenmerken
Heb je vragen? Of wil je even binnenkijken?

Neem vrijblijvend contact met ons op

De Laen
Download de brochure

Bekijk op het gemak de brochure van deze woning

Downloaden

Omschrijving

Wonen met sfeer en ruimte in het hart van Pijnacker!

Deze charmante tussenwoning met een royale tuin van 17 meter (!), uitgebouwde woonkamer en dakopbouw is gelegen in een kindvriendelijke buurt op loopafstand van het bruisende centrum van Pijnacker.

Indeling:
Begane grond:
Entree in een nette hal met keurige toiletruimte, trapopgang en trapkast. De uitgebouwde woonkamer biedt aan de voorzijde ruimte voor een gezellige zithoek, terwijl aan de achterzijde de eethoek grenst aan de open keuken. Grote ramen zorgen voor veel lichtinval en een prettige sfeer. De keuken is uitgerust met diverse apparatuur en heeft een deur naar de achtertuin.
De tuin is een waar pluspunt: ruim 17 meter diep, verzorgd aangelegd met sierbestrating en groen, en voorzien van zowel zon- als schaduwplekken. De stenen berging is voorzien van elektra, wateraansluiting en ruimte voor de wasmachine.

1e verdieping:
Twee ruime slaapkamers met veel lichtinval, waarvan één voorzien van een vaste kast. Aan de voorzijde is de voormalige badkamer omgebouwd tot praktische wasruimte, waarbij de oude doucheruimte nog aanwezig is. Aan de achterzijde bevindt zich een nette tweede badkamer met douche, wastafelmeubel en toilet.

2e verdieping:
Een verrassend verdieping dankzij de dakopbouw. Deze kamer is ideaal als extra slaapkamer of werkruimte. Hier is tevens de cv-ketel geplaatst en in de knieschotten is extra bergruimtes gecreëerd.

Locatie:
Gelegen in het idyllische centrumgebied van Pijnacker, met het bruisende centrum op loopafstand. Winkels, speciaalzaken, horeca en de metrohalte liggen binnen handbereik. De omgeving is kindvriendelijk met diverse scholen en speeltuinen in de buurt. Dankzij de gunstige ligging en uitstekende verbindingen via de RandstadRail en uitvalswegen zijn steden als Rotterdam, Den Haag en Delft snel te bereiken.

Bijzonderheden:
– woonoppervlakte van ca. 82,5 m2 excl. 2e verdieping;
– oppervlakte 2e verdieping is ca. 10,4 m2;
– tuin van 17m diep incl. achterpad;
– de begane grond en de slaapkamers op de 1e verdieping zijn voorzien van rolluiken;
– het dak van de berging is vernieuwd (ca. 2021);
– de 2e verdieping is vergroot middels een dakopbouw;
– ouderdoms-, asbest- en ‘verkoper is geen bewoner’- clausule van toepassing.

De Laen makelaardij is de NVM-makelaar van de verkoper. Wij adviseren u uw eigen NVM-makelaar in te schakelen om uw belangen te behartigen bij de aankoop van dit object. 
Deze advertentie en de bijbehorende vragenlijst zijn met de grootst mogelijke zorg samengesteld.
Onzerzijds wordt echter geen enkele aansprakelijkheid aanvaard voor enige onvolledigheid, onjuistheid of anderszins, dan wel de gevolgen daarvan. 
Alle opgegeven maten en oppervlakten zijn indicatief.

Heb je vragen? Of wil je even binnenkijken?

Neem vrijblijvend contact met ons op

De Laen
Download de brochure

Bekijk op het gemak de brochure van deze woning

Downloaden

Kenmerken

Overdracht

  • Status Beschikbaar
  • Vraagprijs € 435.000,- Kosten koper
  • Aanvaarding In overleg

Bouwvorm & Onderhoud

  • Soort woonhuis Tussenwoning
  • Soort bouw Bestaande bouw
  • Bouwjaar 1954
  • Soort dak Zadeldak
  • Onderhoud binnen Goed
  • Onderhoud buiten Goed

Oppervlakten & inhoud

  • Gebruiksoppervlakte wonen ca. 93 m2
  • Gebouwgebonden buitenruimte
  • Externe bergruimte ca. 8m2
  • Overige inpandige ruimte
  • Inhoud ca. 331m3
  • Perceeloppervlakte ca. 154m2

Indeling

  • Aantal kamers 4 kamers
  • Aantal slaapkamers 3
  • Aantal badkamers 2 badkamers
  • Badkamervoorzieningen Toilet, douche, wastafelmeubel, douche, wastafelmeubel, wasmachineaansluiting
  • Aantal woonlagen 3 woonlagen
  • Voorzieningen Rolluiken, buitenzonwering

Energie & Installatie

  • Energielabel
  • Isolatie Grotendeels dubbelglas
  • Verwarming Cv ketel
  • Warm water Cv ketel
  • C.v.-ketel type Gas
  • C.v.-ketel bouwjaar
  • Eigendom Eigendom

Tuin & Buitenruimte

  • Ligging In centrum, in woonwijk
  • Hoofdtuin Achtertuin
  • Oppervlakte hoofdtuin ca. 95m2
  • Ligging hoofdtuin Oost
  • Achterom 1
  • Kwaliteit tuin Normaal

Bergruimte

  • Schuur / berging Aangebouwd steen
  • Aantal schuren / bergingen 1
  • Voorzieningen Voorzien van elektra, voorzien van water

Parkeergelegenheid

  • Parkeerfaciliteiten Openbaar parkeren
  • Garage Geen garage

Wijk statistieken

Burgerlijke staat
  • Gehuwd
  • Ongehuwd
  • Gescheiden
  • Verweduwd
Leeftijd in gemeente
0 - 15 jaar
15 - 25 jaar
25-45 jaar
45 - 65 jaar
65+ jaar
  • 0 - 15 jaar
  • 15 - 25 jaar
  • 25 - 45 jaar
  • 45 - 65 jaar
  • 65+ jaar
Gezinnen met kinderen
Met kinderen
Zonder kinderen
Alleenstaand
  • Met kinderen
  • Zonder kinderen
  • Alleenstaand
Leeftijd buurtbewoners
0 - 15 jaar
15 - 25 jaar
25-45 jaar
45 - 65 jaar
65+ jaar
  • 0 - 15 jaar
  • 15 - 25 jaar
  • 25 - 45 jaar
  • 45 - 65 jaar
  • 65+ jaar
Bewoners in de straat
Man
Vrouw
  • Man
  • Vrouw

Documenten

    Je nieuwe huis vinden we samen

    Neem vrijblijvend contact met ons op

    De Laen