Omschrijving

Wat een ruimte en wat een heerlijke zonnige tuin! Nieuwsgierig? Kom dan eens kijken naar deze ruime, uitgebouwde en goed onderhouden 6 à 7 kamer-woning met grote voor- en zonnige achtertuin.

De woonkamer is maar liefst 2,8 meter uitgebouwd en voorzien van 2 lichtkoepels. Ook de 2e verdieping is uitgebreid door het voormalige dakterras als woonruimte bij de woning te betrekken. En dan de ligging: Aan de voorzijde vrij uitzicht op…

Lees meer

Kenmerken

  • Status Verkocht
  • Vraagprijs € 575.000,- kosten koper
  • Woonoppervlakte ca. 157 m2
  • Aantal slaapkamers 5
  • Bouwjaar 1995
Meer kenmerken
Heb je vragen? Of wil je even binnenkijken?

Neem vrijblijvend contact met ons op

De Laen
Download de brochure

Bekijk op het gemak de brochure van deze woning

Downloaden

Omschrijving

Wat een ruimte en wat een heerlijke zonnige tuin! Nieuwsgierig? Kom dan eens kijken naar deze ruime, uitgebouwde en goed onderhouden 6 à 7 kamer-woning met grote voor- en zonnige achtertuin.

De woonkamer is maar liefst 2,8 meter uitgebouwd en voorzien van 2 lichtkoepels. Ook de 2e verdieping is uitgebreid door het voormalige dakterras als woonruimte bij de woning te betrekken. En dan de ligging: Aan de voorzijde vrij uitzicht op een singel en op loopafstand van basisscholen, halte Randstad Rail, speeltuin en kinderopvang. Daarnaast ook een goede aansluiting op het wegennet (N-470). Qua aanbod winkels kan je uitwijken naar Winkelcentrum Centrum of Keizershof, beiden vanaf de Duikersloot goed te bereiken.

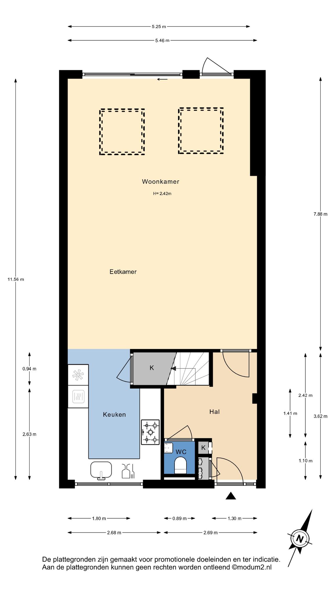
Indeling: Ruime hal/entree met meterkast en toiletruimte. Grote woonkamer, aan achterzijde uitgebouwd (2001) en v.v. twee lichtkoepels. Lekker veel lichtinval, mooie pvc-vloer in houtmotief, op de begane grond ligt vloerverwarming. De keuken is praktisch opgesteld in U-vorm, in lichte kleurtinten en v.v. diverse apparatuur. Grote inloopkast-voorraadkast direct in verbinding met de keuken. Aan achterzijde is de royale tuin toegankelijk, onderhoudsvriendelijk aangelegd, meerdere zitjes met mooie grote terrastegels. Berging met overkapping.

1e verdieping: Overloop met 2 slaapkamers. Oorspronkelijk 3 slaapkamers, de indeling is eenvoudig terug te brengen naar 3 slaapkamers. De hoofdslaapkamer ligt aan de achterzijde met een prettige & praktische indeling naar inloopgarderobe en privé kantoor-/studeerkamer. Moderne badkamer antracietgrijs/wit betegeld en toegerust met een grote inloopdouche, 2e toilet en breed wastafelmeubel met dubbele kraan.

2e verdieping: Deze etage is aanmerkelijk vergroot door de uitbouw aan voorzijde, het erbij betrekken van voormalig dakterras waardoor er op deze etage maar liefst drie slaapkamers zijn gerealiseerd. Ruimtelijk goed ingericht, mede door dakkapel aan achterzijde. Aparte ruimte voor opstelling was-apparatuur en cv installatie.

3e verdieping: Via vaste trap is bergruimte toegankelijk (of fijne speelruimte voor de jongste bewoners).

Wat aanspreekt is de ruimte, het lichtinval, de fijne voor- en achtertuin, de centrale ligging, de onderhoudsstaat van de woning. Kortom heerlijk wonen en zeker een bezichtiging waard.

Heb je vragen? Of wil je even binnenkijken?

Neem vrijblijvend contact met ons op

De Laen
Download de brochure

Bekijk op het gemak de brochure van deze woning

Downloaden

Kenmerken

Overdracht

  • Status Verkocht
  • Vraagprijs € 575.000,- Kosten koper
  • Aanvaarding In overleg

Bouwvorm & Onderhoud

  • Soort woonhuis Tussenwoning
  • Soort bouw Bestaande bouw
  • Bouwjaar 1995
  • Soort dak Lessenaardak
  • Onderhoud binnen Goed
  • Onderhoud buiten Goed

Oppervlakten & inhoud

  • Gebruiksoppervlakte wonen ca. 157 m2
  • Gebouwgebonden buitenruimte
  • Externe bergruimte ca. 9m2
  • Overige inpandige ruimte ca. 8m2
  • Inhoud ca. 542m3
  • Perceeloppervlakte ca. 207m2

Indeling

  • Aantal kamers 6 kamers
  • Aantal slaapkamers 5
  • Aantal badkamers 1 badkamer
  • Badkamervoorzieningen Toilet, dubbele wastafel, inloopdouche
  • Aantal woonlagen 4 woonlagen
  • Voorzieningen Mechanische ventilatie

Energie & Installatie

  • Energielabel A
  • Isolatie Volledig geisoleerd
  • Verwarming Cv ketel, vloerverwarming gedeeltelijk
  • Warm water Cv ketel
  • C.v.-ketel type Gas
  • C.v.-ketel bouwjaar 2012
  • Eigendom Eigendom

Tuin & Buitenruimte

  • Ligging Aan rustige weg, in woonwijk
  • Hoofdtuin Achtertuin
  • Oppervlakte hoofdtuin ca. 76m2
  • Ligging hoofdtuin Noord
  • Achterom
  • Kwaliteit tuin Fraai aangelegd

Bergruimte

  • Schuur / berging Vrijstaand steen
  • Aantal schuren / bergingen
  • Voorzieningen

Parkeergelegenheid

  • Parkeerfaciliteiten Openbaar parkeren
  • Garage Geen garage

Wijk statistieken

Burgerlijke staat
  • Gehuwd
  • Ongehuwd
  • Gescheiden
  • Verweduwd
Leeftijd in gemeente
0 - 15 jaar
15 - 25 jaar
25-45 jaar
45 - 65 jaar
65+ jaar
  • 0 - 15 jaar
  • 15 - 25 jaar
  • 25 - 45 jaar
  • 45 - 65 jaar
  • 65+ jaar
Gezinnen met kinderen
Met kinderen
Zonder kinderen
Alleenstaand
  • Met kinderen
  • Zonder kinderen
  • Alleenstaand
Leeftijd buurtbewoners
0 - 15 jaar
15 - 25 jaar
25-45 jaar
45 - 65 jaar
65+ jaar
  • 0 - 15 jaar
  • 15 - 25 jaar
  • 25 - 45 jaar
  • 45 - 65 jaar
  • 65+ jaar
Bewoners in de straat
Man
Vrouw
  • Man
  • Vrouw

Documenten

    Je nieuwe huis vinden we samen

    Neem vrijblijvend contact met ons op

    De Laen