Omschrijving

Welkom op De Loete 52 – jouw plek van rust, ruimte en luxe.

Stel je voor: je rijdt je eigen oprit op, waar plek is voor 3 auto's. Geen gedoe met parkeren, gewoon thuiskomen. Je stapt uit, kijkt om je heen en voelt het meteen – dit is geen gewoon huis. Dit is jouw droomwoning, gelegen op een prachtig 'eiland'. En dat uitzicht aan de achterkant? Vrij en weids.

Je opent de voordeur en wordt verwelkomd door een ruime hal met…

Lees meer

Kenmerken

  • Status Verkocht
  • Vraagprijs € 1.250.000,- kosten koper
  • Woonoppervlakte ca. 186 m2
  • Aantal slaapkamers 4
  • Bouwjaar 2005
Meer kenmerken
Heb je vragen? Of wil je even binnenkijken?

Neem vrijblijvend contact met ons op

De Laen
Download de brochure

Bekijk op het gemak de brochure van deze woning

Downloaden

Omschrijving

Welkom op De Loete 52 – jouw plek van rust, ruimte en luxe.

Stel je voor: je rijdt je eigen oprit op, waar plek is voor 3 auto’s. Geen gedoe met parkeren, gewoon thuiskomen. Je stapt uit, kijkt om je heen en voelt het meteen – dit is geen gewoon huis. Dit is jouw droomwoning, gelegen op een prachtig ‘eiland’. En dat uitzicht aan de achterkant? Vrij en weids.

Je opent de voordeur en wordt verwelkomd door een ruime hal met daarin de meterkast, het toilet, trapopgang en de deur naar je extra grote garage – ideaal voor je fietsen, oldtimer of misschien wel die langgekoesterde hobbyruimte.

Loop je verder, dan kom je in de royale woonkamer met uitzicht op de tuin. De woonkeuken is recentelijk vernieuwd en van alle gemakken voorzien – hier kook je met plezier. Aan de voorzijde vind je een extra kamer. Werkkamer, atelier, speelruimte? Jij bepaalt. Alles is mogelijk. Op deze verdieping is recentelijk de complete vloer vervangen voor pvc met vloerverwarming.

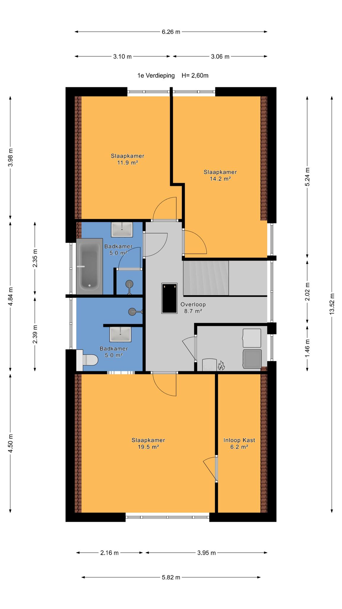
Boven een overzichtelijke verdieping. 3 slaapkamers en 2 badkamers. De grootste slaapkamer is een suite op zich, met een eigen badkamer (inloopdouche, toilet, wastafelmeubel) én een ruime inloopkast voor je kledingcollectie. De 2 slaapkamers aan de achterzijde delen een 2e badkamer met ligbad, douche en wastafelmeubel – perfect voor de kinderen of logees.

En dan de tuin… Wauw! Aangelegd met oog voor detail, direct aan het water. Je hebt een terrasoverkapping voor lange zomeravonden, een vlonderterras voor je ochtendkoffie, en altijd een plekje in de zon of schaduw. Hier kun je buiten leven, het hele jaar door.

De Loete 52 is niet zomaar een huis. Het is een plek waar je thuiskomt, tot rust komt, en volop geniet.

Ben je klaar om ‘eilandbewoner’ te worden?

Bijzonderheden:
– 44 Zonnepanelen;
– Hybride warmtepomp;
– Oplaadpunt elektrische auto;
– Stofzuigsysteem;
– Tuin met beregeningsinstallatie;
– Waterontharder aanwezig;
– Vloerverwarming op begane grond.

Oplevering: in onderling overleg.

De Laen makelaardij is de NVM-makelaar van de verkoper. Wij adviseren u uw eigen NVM-makelaar in te schakelen om uw belangen te behartigen bij de aankoop van dit object.
Deze advertentie en de bijbehorende vragenlijst zijn met de grootst mogelijke zorg samengesteld.
Onzerzijds wordt echter geen enkele aansprakelijkheid aanvaard voor enige onvolledigheid, onjuistheid of anderszins, dan wel de gevolgen daarvan.
Alle opgegeven maten en oppervlakten zijn indicatief.

Heb je vragen? Of wil je even binnenkijken?

Neem vrijblijvend contact met ons op

De Laen
Download de brochure

Bekijk op het gemak de brochure van deze woning

Downloaden

Kenmerken

Overdracht

  • Status Verkocht
  • Vraagprijs € 1.250.000,- Kosten koper
  • Aanvaarding In overleg

Bouwvorm & Onderhoud

  • Soort woonhuis Vrijstaande woning
  • Soort bouw Bestaande bouw
  • Bouwjaar 2005
  • Soort dak Zadeldak
  • Onderhoud binnen Goed
  • Onderhoud buiten Goed

Oppervlakten & inhoud

  • Gebruiksoppervlakte wonen ca. 186 m2
  • Gebouwgebonden buitenruimte ca. 24m2
  • Externe bergruimte
  • Overige inpandige ruimte ca. 54m2
  • Inhoud ca. 867m3
  • Perceeloppervlakte ca. 698m2

Indeling

  • Aantal kamers 5 kamers
  • Aantal slaapkamers 4
  • Aantal badkamers 2 badkamers
  • Badkamervoorzieningen Ligbad, douche, wastafel, toilet, wastafelmeubel, inloopdouche
  • Aantal woonlagen 3 woonlagen
  • Voorzieningen Alarminstallatie, tv kabel, buitenzonwering, glasvezel kabel, zonnepanelen, balansventilatie

Energie & Installatie

  • Energielabel A++
  • Isolatie Volledig geisoleerd
  • Verwarming Cv ketel, vloerverwarming gedeeltelijk, warmtepomp
  • Warm water Cv ketel
  • C.v.-ketel type Gas
  • C.v.-ketel bouwjaar
  • Eigendom Eigendom

Tuin & Buitenruimte

  • Ligging Aan water, in woonwijk, vrij uitzicht
  • Hoofdtuin Tuin rondom
  • Oppervlakte hoofdtuin
  • Ligging hoofdtuin
  • Achterom 1
  • Kwaliteit tuin Fraai aangelegd

Bergruimte

  • Schuur / berging
  • Aantal schuren / bergingen
  • Voorzieningen

Parkeergelegenheid

  • Parkeerfaciliteiten Openbaar parkeren
  • Garage Aangebouwd steen, parkeerplaats, garage met carport

Wijk statistieken

Burgerlijke staat
  • Gehuwd
  • Ongehuwd
  • Gescheiden
  • Verweduwd
Leeftijd in gemeente
0 - 15 jaar
15 - 25 jaar
25-45 jaar
45 - 65 jaar
65+ jaar
  • 0 - 15 jaar
  • 15 - 25 jaar
  • 25 - 45 jaar
  • 45 - 65 jaar
  • 65+ jaar
Gezinnen met kinderen
Met kinderen
Zonder kinderen
Alleenstaand
  • Met kinderen
  • Zonder kinderen
  • Alleenstaand
Leeftijd buurtbewoners
0 - 15 jaar
15 - 25 jaar
25-45 jaar
45 - 65 jaar
65+ jaar
  • 0 - 15 jaar
  • 15 - 25 jaar
  • 25 - 45 jaar
  • 45 - 65 jaar
  • 65+ jaar
Bewoners in de straat
Man
Vrouw
  • Man
  • Vrouw

Documenten

    Je nieuwe huis vinden we samen

    Neem vrijblijvend contact met ons op

    De Laen