Omschrijving

Sfeervol herenhuis, energiezuinig (8 zonnepanelen, energielabel A) én optimaal uitgebouwd. Onder andere voorzien van 5 slaapkamers, een serre en parkeergelegenheid op eigen terrein voor 2 auto's!

Op een prachtige locatie in de geliefde wijk Tolhek staat deze keurig onderhouden hoekwoning, op loopafstand van metrohalte Pijnacker Zuid, natuurgebied de Groenzoom en het sfeervolle wijkpark.

Begane grond
De entree…

Lees meer

Kenmerken

  • Status Beschikbaar
  • Vraagprijs € 625.000,- kosten koper
  • Woonoppervlakte ca. 132 m2
  • Aantal slaapkamers 5
  • Bouwjaar 2005
Meer kenmerken
Heb je vragen? Of wil je even binnenkijken?

Neem vrijblijvend contact met ons op

De Laen
Download de brochure

Bekijk op het gemak de brochure van deze woning

Downloaden

Omschrijving

Sfeervol herenhuis, energiezuinig (8 zonnepanelen, energielabel A) én optimaal uitgebouwd. Onder andere voorzien van 5 slaapkamers, een serre en parkeergelegenheid op eigen terrein voor 2 auto’s!

Op een prachtige locatie in de geliefde wijk Tolhek staat deze keurig onderhouden hoekwoning, op loopafstand van metrohalte Pijnacker Zuid, natuurgebied de Groenzoom en het sfeervolle wijkpark.

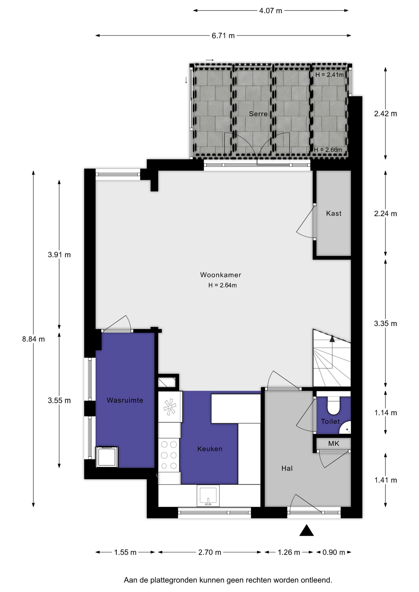
Begane grond
De entree bestaat uit een hal met toiletruimte, meterkast en garderobe. Royale living met een unieke breedte en voorzien van vloerverwarming.
Aan de voorzijde bevindt zich de uitgebreide XL-keuken met schiereiland met 10% extra bergruimte, en voor de échte chef een Boretti fornuis met 6 pitten.
De woonkamer voorzien van een praktische voorraadkast en een, in 2023 aangebouwde, wasruimte, ideaal!
De serre (2024) is een heerlijke plek om ook tijdens regenachtige dagen van het buitenleven te genieten. De tuin is groen en verzorgd, met een houten berging voorzien van elektra en een afdak.

1e verdieping
Op deze verdieping bevinden zich drie ruime slaapkamers. De grote slaapkamer aan de voorzijde beslaat de volledige breedte van de woning.
De badkamer is uitgerust met een ligbad met douche, een toilet en een wastafel.

2e verdieping
Wauw wat een ruimte! Deze verdieping is optimaal uitgebouwd. Aan de achterzijde zorgt het dakkapel voor een ruime en lichte slaapkamer.
Aan de voorzijde bevindt zich de kenmerkende dakopbouw vanuit de bouw.
In 2023 is een unieke dakserre geplaatst, waardoor een zeer ruime en lichte kamer is gecreëerd. Beide kamers beschikken over opbergruimte onder het dak.

De woning ligt in de wijk Tolhek, op een ideale plek vlakbij metrohalte Pijnacker Zuid. Natuurgebied de Groenzoom en het wijkpark liggen letterlijk om de hoek, waardoor zowel rust als recreatie binnen handbereik zijn.
Winkels, scholen en sportvoorzieningen bevinden zich eveneens in de directe omgeving. Liever een bezoek aan de grote steden? Via de uitvalswegen of de Randstadrail zijn steden zoals Rotterdam, Den Haag en Delft snel te bereiken.

Bijzonderheden
• Vloerverwarming op de begane grond (m.u.v. wasruimte en voorraadkast), geplaats in 2017
• Keuken vernieuwd in 2020
• Begane grond uitgebouwd in 2023
• Dakkapel achterzijde geplaatst in 2023
• Dakserre voorzijde geplaatst in 2023
• Serre geplaats in 2024
• Zeer goed onderhouden
• Twee parkeerplaatsen op eigen terrein
• Energielabel A: volledig geïsoleerd en 8 zonnepanelen (2023)

de Laen makelaardij is de NVM-makelaar van de verkoper. Wij adviseren u uw eigen NVM-makelaar in te schakelen om uw belangen te behartigen bij de aankoop van dit object. 
Deze advertentie en de bijbehorende vragenlijst zijn met de grootst mogelijke zorg samengesteld.
Onzerzijds wordt echter geen enkele aansprakelijkheid aanvaard voor enige onvolledigheid, onjuistheid of anderszins, dan wel de gevolgen daarvan. 
Alle opgegeven maten en oppervlakten zijn indicatief.

Heb je vragen? Of wil je even binnenkijken?

Neem vrijblijvend contact met ons op

De Laen
Download de brochure

Bekijk op het gemak de brochure van deze woning

Downloaden

Kenmerken

Overdracht

  • Status Beschikbaar
  • Vraagprijs € 625.000,- Kosten koper
  • Aanvaarding In overleg

Bouwvorm & Onderhoud

  • Soort woonhuis Hoekwoning
  • Soort bouw Bestaande bouw
  • Bouwjaar 2005
  • Soort dak Samengesteld dak
  • Onderhoud binnen Goed
  • Onderhoud buiten Goed

Oppervlakten & inhoud

  • Gebruiksoppervlakte wonen ca. 132 m2
  • Gebouwgebonden buitenruimte ca. 10m2
  • Externe bergruimte ca. 6m2
  • Overige inpandige ruimte
  • Inhoud ca. 522m3
  • Perceeloppervlakte ca. 182m2

Indeling

  • Aantal kamers 6 kamers
  • Aantal slaapkamers 5
  • Aantal badkamers 1 badkamer
  • Badkamervoorzieningen Ligbad, toilet, wastafel
  • Aantal woonlagen 3 woonlagen
  • Voorzieningen Mechanische ventilatie, buitenzonwering, frans balkon, glasvezel kabel, zonnepanelen

Energie & Installatie

  • Energielabel A
  • Isolatie Volledig geisoleerd
  • Verwarming Cv ketel, vloerverwarming gedeeltelijk
  • Warm water Cv ketel
  • C.v.-ketel type Gas
  • C.v.-ketel bouwjaar 2024
  • Eigendom Eigendom

Tuin & Buitenruimte

  • Ligging Aan park, in woonwijk
  • Hoofdtuin Achtertuin
  • Oppervlakte hoofdtuin ca. 65m2
  • Ligging hoofdtuin Zuid
  • Achterom 1
  • Kwaliteit tuin Verzorgd

Bergruimte

  • Schuur / berging Vrijstaand hout
  • Aantal schuren / bergingen 1
  • Voorzieningen Voorzien van elektra

Parkeergelegenheid

  • Parkeerfaciliteiten Openbaar parkeren, op eigen terrein
  • Garage Geen garage

Wijk statistieken

Burgerlijke staat
  • Gehuwd
  • Ongehuwd
  • Gescheiden
  • Verweduwd
Leeftijd in gemeente
0 - 15 jaar
15 - 25 jaar
25-45 jaar
45 - 65 jaar
65+ jaar
  • 0 - 15 jaar
  • 15 - 25 jaar
  • 25 - 45 jaar
  • 45 - 65 jaar
  • 65+ jaar
Gezinnen met kinderen
Met kinderen
Zonder kinderen
Alleenstaand
  • Met kinderen
  • Zonder kinderen
  • Alleenstaand
Leeftijd buurtbewoners
0 - 15 jaar
15 - 25 jaar
25-45 jaar
45 - 65 jaar
65+ jaar
  • 0 - 15 jaar
  • 15 - 25 jaar
  • 25 - 45 jaar
  • 45 - 65 jaar
  • 65+ jaar
Bewoners in de straat
Man
Vrouw
  • Man
  • Vrouw

Documenten

    Je nieuwe huis vinden we samen

    Neem vrijblijvend contact met ons op

    De Laen