Omschrijving

Grote geschakelde hoekwoning met garage in de kindvriendelijke wijk Klapwijk.

De ligging is prettig in de wijk met alle voorzieningen binnen handbereik: (basis)scholen, kinderopvang, winkels en de metro bevindt zich op 7 minuten lopen, ook de A13 en N470 bevinden zich op korte afstand. Er is voldoende parkeergelegenheid in de directe omgeving.
Voor groen en recreatie kun je terecht in het Balijbos, het natuurgebied bij de…

Lees meer

Kenmerken

  • Status Beschikbaar
  • Vraagprijs € 695.000,- kosten koper
  • Woonoppervlakte ca. 163 m2
  • Aantal slaapkamers 4
  • Bouwjaar 1993
Meer kenmerken
Heb je vragen? Of wil je even binnenkijken?

Neem vrijblijvend contact met ons op

De Laen
Download de brochure

Bekijk op het gemak de brochure van deze woning

Downloaden

Omschrijving

Grote geschakelde hoekwoning met garage in de kindvriendelijke wijk Klapwijk.

De ligging is prettig in de wijk met alle voorzieningen binnen handbereik: (basis)scholen, kinderopvang, winkels en de metro bevindt zich op 7 minuten lopen, ook de A13 en N470 bevinden zich op korte afstand. Er is voldoende parkeergelegenheid in de directe omgeving.
Voor groen en recreatie kun je terecht in het Balijbos, het natuurgebied bij de Ackersdijkse Plassen en iets verder het speelbos De Biesbush.

Globale indeling:

Begane grond:
– Hal/entree met meterkast, toilet en trapopgang
– Woonkamer met laminaatvloer
– Half open keuken met apparatuur zoals combi magnetron/oven, 4-pits gaskookplaat, koelkast, vriezer en vaatwasser

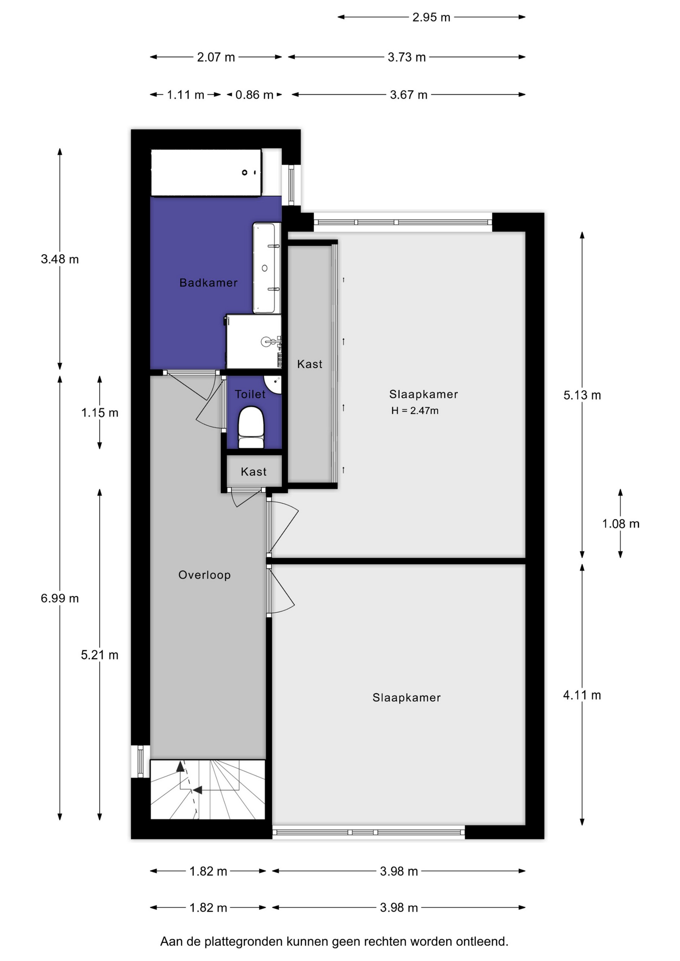
1e Verdieping:
– 2 Slaapkamers met laminaatvloer en vaste kastenwand
– Grote, moderne badkamer met ligbad, douchecabine, wastafelmeubel, design radiator en mechanische ventilatie

2e Verdieping:
– Overloop met Velux-raam en vliering
– Wasruimte
– C.v.-ruimte (2026) met m.v. en omvormer voor de zonnepanelen
– 2 Slaapkamers

Tuin gesitueerd op het Oosten met garage en zij-ingang.
De garage heeft een sectionaldeur en een oprit op eigen terrein.

Bijzonderheden:
– 4 Grote slaapkamers
– Garage
– Energielabel B
– 10 Zonnepanelen
– Oplevering: vanaf juni 2026
– Ouderdomsclausule en asbestclausule van toepassing

De Laen makelaardij is de NVM-makelaar van de verkoper. Wij adviseren u uw eigen NVM-makelaar in te schakelen om uw belangen te behartigen bij de aankoop van dit object. 
Deze advertentie en de bijbehorende vragenlijst zijn met de grootst mogelijke zorg samengesteld.
Onzerzijds wordt echter geen enkele aansprakelijkheid aanvaard voor enige onvolledigheid, onjuistheid of anderszins, dan wel de gevolgen daarvan. 
Alle opgegeven maten en oppervlakten zijn indicatief.

Heb je vragen? Of wil je even binnenkijken?

Neem vrijblijvend contact met ons op

De Laen
Download de brochure

Bekijk op het gemak de brochure van deze woning

Downloaden

Kenmerken

Overdracht

  • Status Beschikbaar
  • Vraagprijs € 695.000,- Kosten koper
  • Aanvaarding In overleg

Bouwvorm & Onderhoud

  • Soort woonhuis Geschakelde woning
  • Soort bouw Bestaande bouw
  • Bouwjaar 1993
  • Soort dak Zadeldak
  • Onderhoud binnen Redelijk tot goed
  • Onderhoud buiten Redelijk tot goed

Oppervlakten & inhoud

  • Gebruiksoppervlakte wonen ca. 163 m2
  • Gebouwgebonden buitenruimte ca. 2m2
  • Externe bergruimte ca. 20m2
  • Overige inpandige ruimte
  • Inhoud ca. 590m3
  • Perceeloppervlakte ca. 273m2

Indeling

  • Aantal kamers 5 kamers
  • Aantal slaapkamers 4
  • Aantal badkamers 1 badkamer
  • Badkamervoorzieningen Ligbad, douche, wastafelmeubel
  • Aantal woonlagen 3 woonlagen
  • Voorzieningen Mechanische ventilatie, tv kabel, buitenzonwering

Energie & Installatie

  • Energielabel B
  • Isolatie Volledig geisoleerd
  • Verwarming Cv ketel
  • Warm water Cv ketel
  • C.v.-ketel type Gas
  • C.v.-ketel bouwjaar 2026
  • Eigendom Eigendom

Tuin & Buitenruimte

  • Ligging Aan rustige weg, in woonwijk
  • Hoofdtuin Achtertuin
  • Oppervlakte hoofdtuin ca. 70m2
  • Ligging hoofdtuin Oost
  • Achterom 1
  • Kwaliteit tuin Normaal

Bergruimte

  • Schuur / berging
  • Aantal schuren / bergingen
  • Voorzieningen

Parkeergelegenheid

  • Parkeerfaciliteiten Openbaar parkeren, op eigen terrein
  • Garage Vrijstaand steen

Wijk statistieken

Burgerlijke staat
  • Gehuwd
  • Ongehuwd
  • Gescheiden
  • Verweduwd
Leeftijd in gemeente
0 - 15 jaar
15 - 25 jaar
25-45 jaar
45 - 65 jaar
65+ jaar
  • 0 - 15 jaar
  • 15 - 25 jaar
  • 25 - 45 jaar
  • 45 - 65 jaar
  • 65+ jaar
Gezinnen met kinderen
Met kinderen
Zonder kinderen
Alleenstaand
  • Met kinderen
  • Zonder kinderen
  • Alleenstaand
Leeftijd buurtbewoners
0 - 15 jaar
15 - 25 jaar
25-45 jaar
45 - 65 jaar
65+ jaar
  • 0 - 15 jaar
  • 15 - 25 jaar
  • 25 - 45 jaar
  • 45 - 65 jaar
  • 65+ jaar
Bewoners in de straat
Man
Vrouw
  • Man
  • Vrouw

Documenten

    Je nieuwe huis vinden we samen

    Neem vrijblijvend contact met ons op

    De Laen