Omschrijving

Een huis dat voelt als thuiskomen! Deze modern afgewerkte hoekwoning biedt volop leefruimte, een zonnige tuin en alle voorzieningen binnen handbereik. Uitgebouwde woonkamer, 2 dakkapellen en een heerlijke tuin op het zuidwesten. De perfecte match voor wie zorgeloos wil wonen in het kindvriendelijk Klapwijk!

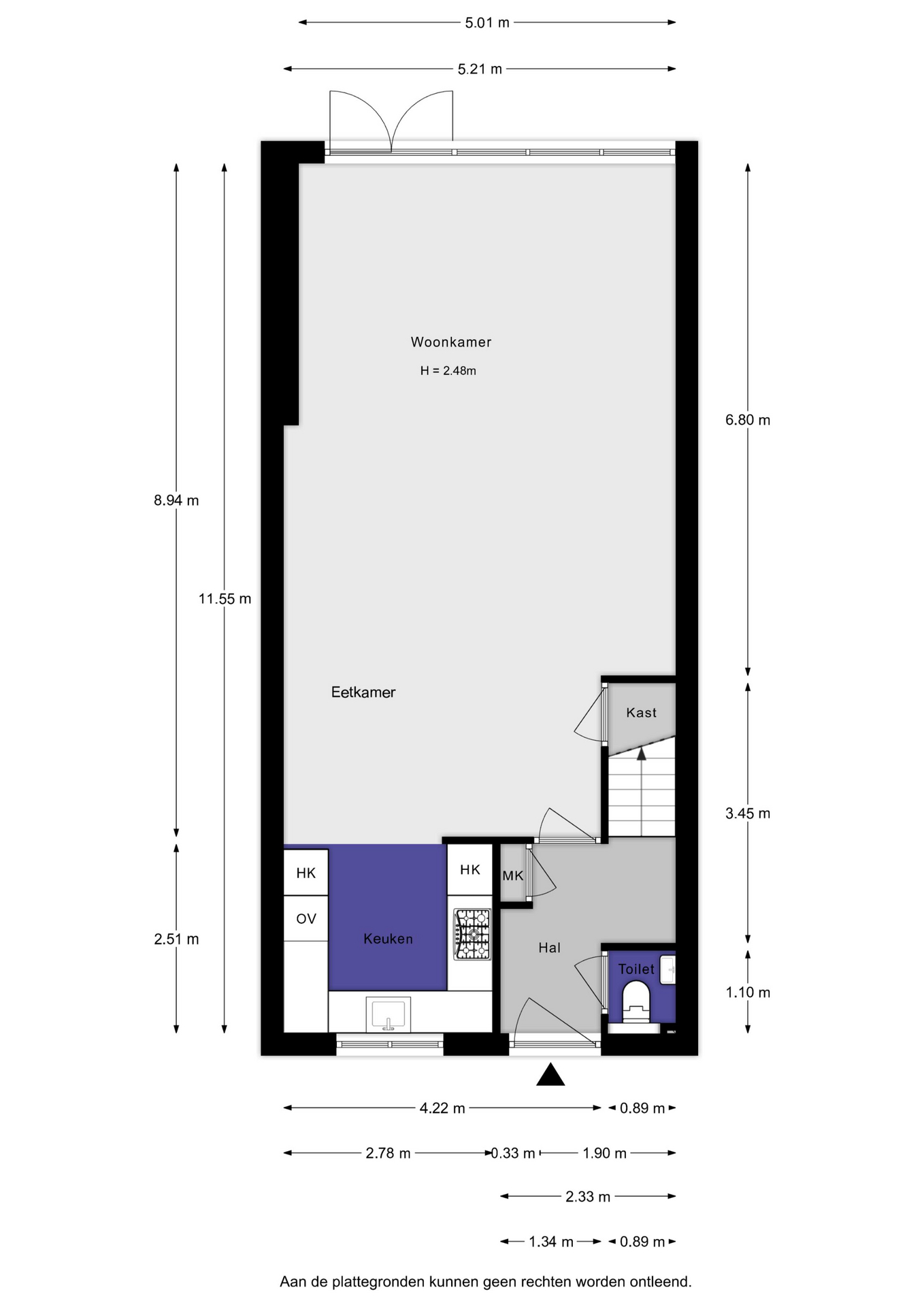
Begane grond: Entree/hal met meterkast en toilet. Ruime uitgebouwde woonkamer met veel lichtinval, een prettige zitopstelling…

Lees meer

Kenmerken

  • Status Beschikbaar
  • Vraagprijs € 569.000,- kosten koper
  • Woonoppervlakte ca. 127 m2
  • Aantal slaapkamers 4
  • Bouwjaar 1991
Meer kenmerken
Heb je vragen? Of wil je even binnenkijken?

Neem vrijblijvend contact met ons op

De Laen
Download de brochure

Bekijk op het gemak de brochure van deze woning

Downloaden

Omschrijving

Een huis dat voelt als thuiskomen! Deze modern afgewerkte hoekwoning biedt volop leefruimte, een zonnige tuin en alle voorzieningen binnen handbereik. Uitgebouwde woonkamer, 2 dakkapellen en een heerlijke tuin op het zuidwesten. De perfecte match voor wie zorgeloos wil wonen in het kindvriendelijk Klapwijk!

Begane grond: Entree/hal met meterkast en toilet. Ruime uitgebouwde woonkamer met veel lichtinval, een prettige zitopstelling en uitzicht op de zonnige achtertuin. De moderne open keuken is voorzien van diverse inbouwapparatuur en biedt voldoende werk- en kastruimte. In de woonkamer nog een extra trapkast en in de hal de meterkast en het toilet.

1e verdieping: Overloop met toegang tot 2 goed bemeten slaapkamers. De slaapkamer aan de achterzijde is v.v. een inloopkast. Moderne badkamer, uitgerust met inloopdouche, wastafelmeubel, ligbad en 2e toilet.

2e verdieping: Overloop met bergruimte en opstelplaats voor wasapparatuur. Ruime 3e en 4e slaapkamer met 2 dakkapellen, waardoor een volwaardige en lichte verdieping is ontstaan. Separate wasruimte.

Tuin: De achtertuin is op het zuidwesten gesitueerd en beschikt over een onderheid terras, ideaal voor een lounge- of eetopstelling. Achterin de tuin staat een grote schuur, geschikt voor het stallen van bijvoorbeeld een motor of scooter. Uiteraard is er een achterom aanwezig.

Bijzonderheden:
– Onderheid terras, schutting en plantenbakken
– Grote schuur
– 10 zonnepanelen
– CV vernieuwd (2025)
– Speeltuin om de hoek
– Oplevering: in onderling overleg
– Ouderdomsclausule en asbestclausule zijn van toepassing (standaard bij huizen van 25 jaar of ouder)

De Laen makelaardij is de NVM-makelaar van de verkoper. Wij adviseren u uw eigen NVM-makelaar in te schakelen om uw belangen te behartigen bij de aankoop van dit object. 
Deze advertentie en de bijbehorende vragenlijst zijn met de grootst mogelijke zorg samengesteld.
Onzerzijds wordt echter geen enkele aansprakelijkheid aanvaard voor enige onvolledigheid, onjuistheid of anderszins, dan wel de gevolgen daarvan. 
Alle opgegeven maten en oppervlakten zijn indicatief.

Heb je vragen? Of wil je even binnenkijken?

Neem vrijblijvend contact met ons op

De Laen
Download de brochure

Bekijk op het gemak de brochure van deze woning

Downloaden

Kenmerken

Overdracht

  • Status Beschikbaar
  • Vraagprijs € 569.000,- Kosten koper
  • Aanvaarding In overleg

Bouwvorm & Onderhoud

  • Soort woonhuis Hoekwoning
  • Soort bouw Bestaande bouw
  • Bouwjaar 1991
  • Soort dak Zadeldak
  • Onderhoud binnen Goed
  • Onderhoud buiten Goed

Oppervlakten & inhoud

  • Gebruiksoppervlakte wonen ca. 127 m2
  • Gebouwgebonden buitenruimte
  • Externe bergruimte ca. 13m2
  • Overige inpandige ruimte
  • Inhoud ca. 438m3
  • Perceeloppervlakte ca. 170m2

Indeling

  • Aantal kamers 5 kamers
  • Aantal slaapkamers 4
  • Aantal badkamers 1 badkamer
  • Badkamervoorzieningen Ligbad, toilet, wastafel, wastafelmeubel, inloopdouche
  • Aantal woonlagen 3 woonlagen
  • Voorzieningen Mechanische ventilatie, tv kabel, buitenzonwering, zonnepanelen

Energie & Installatie

  • Energielabel A
  • Isolatie Volledig geisoleerd
  • Verwarming Cv ketel
  • Warm water Cv ketel
  • C.v.-ketel type Gas
  • C.v.-ketel bouwjaar 2025
  • Eigendom Eigendom

Tuin & Buitenruimte

  • Ligging In woonwijk
  • Hoofdtuin Achtertuin
  • Oppervlakte hoofdtuin ca. 45m2
  • Ligging hoofdtuin Zuidwest
  • Achterom 1
  • Kwaliteit tuin Verzorgd

Bergruimte

  • Schuur / berging Vrijstaand hout
  • Aantal schuren / bergingen 1
  • Voorzieningen Voorzien van elektra, met vliering

Parkeergelegenheid

  • Parkeerfaciliteiten Openbaar parkeren
  • Garage Geen garage

Wijk statistieken

Burgerlijke staat
  • Gehuwd
  • Ongehuwd
  • Gescheiden
  • Verweduwd
Leeftijd in gemeente
0 - 15 jaar
15 - 25 jaar
25-45 jaar
45 - 65 jaar
65+ jaar
  • 0 - 15 jaar
  • 15 - 25 jaar
  • 25 - 45 jaar
  • 45 - 65 jaar
  • 65+ jaar
Gezinnen met kinderen
Met kinderen
Zonder kinderen
Alleenstaand
  • Met kinderen
  • Zonder kinderen
  • Alleenstaand
Leeftijd buurtbewoners
0 - 15 jaar
15 - 25 jaar
25-45 jaar
45 - 65 jaar
65+ jaar
  • 0 - 15 jaar
  • 15 - 25 jaar
  • 25 - 45 jaar
  • 45 - 65 jaar
  • 65+ jaar
Bewoners in de straat
Man
Vrouw
  • Man
  • Vrouw

Documenten

    Je nieuwe huis vinden we samen

    Neem vrijblijvend contact met ons op

    De Laen