Omschrijving

Je wordt al blij als je de straat inrijdt! Wat een fijne straat met overigens hoofdzakelijk bestemmingsverkeer. Daarnaast zijn de scholen en winkels op loop- of fietsafstand bereikbaar. En binnen 10-15 minuten sta je of in natuurgebied Delftse Hout of in de stad Delft.

Te koop wordt aangeboden deze ruime gezinswoning op een heerlijke plek in de oude kern van Delfgauw.
Deze woning heeft een uitbouw met bijkeuken, 2…

Lees meer

Kenmerken

  • Status Verkocht
  • Vraagprijs € 495.000,- kosten koper
  • Woonoppervlakte ca. 116 m2
  • Aantal slaapkamers 3
  • Bouwjaar 1972
Meer kenmerken
Heb je vragen? Of wil je even binnenkijken?

Neem vrijblijvend contact met ons op

De Laen
Download de brochure

Bekijk op het gemak de brochure van deze woning

Downloaden

Omschrijving

Je wordt al blij als je de straat inrijdt! Wat een fijne straat met overigens hoofdzakelijk bestemmingsverkeer. Daarnaast zijn de scholen en winkels op loop- of fietsafstand bereikbaar. En binnen 10-15 minuten sta je of in natuurgebied Delftse Hout of in de stad Delft.

Te koop wordt aangeboden deze ruime gezinswoning op een heerlijke plek in de oude kern van Delfgauw.
Deze woning heeft een uitbouw met bijkeuken, 2 dakkapellen en een grote berging die ideaal is voor bijv. een scooter of motor.

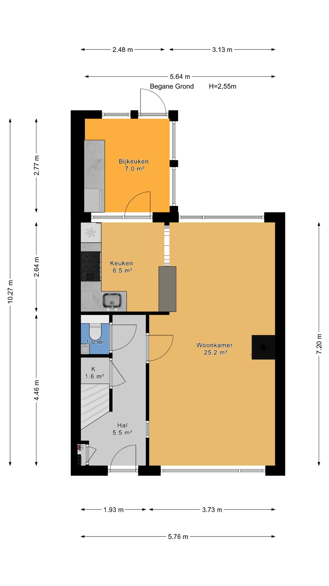
Hal: hal met meterkast, trapopgang, trapkast en toilet. Het toilet is geheel betegeld en v.v. een wandcloset.

Woonkamer: ruime doorzonwoonkamer met het zitgedeelte aan de voorzijde. Door de diepe voortuin van ruim 5 meter is er voldoende privacy. De woonkamer wordt met frisse dagen mede aangenaam verwarmd door een houtkachel. Op de vloer ligt een lamel parketvloer.

Keuken & bijkeuken: de open keuken beschikt over een gaskookplaat, afzuigkap, koelkast en vaatwasser. Vanuit de keuken doorloop naar de bijkeuken. De bijkeuken is praktisch ingedeeld met nog 2 keukenblokken en aansluiting voor de wasapparatuur.

Tuin & berging: de achtertuin is geheel bestraat met een groot terras. De berging is ooit vergroot waardoor deze ideaal is voor bijvoorbeeld motorstalling. De berging is voorzien van elektriciteit en heeft een deur naar het achterpad.

Slaapkamers 1e etage: op deze etage 2 slaapkamers. De enorm grote ouderslaapkamer (voorheen 2 slaapkamers) is overigens op eenvoudige wijze terug te brengen naar 2 slaapkamers. Het deurkozijn is reeds aanwezig. Aan de achterzijde bevindt zich de tweede, kleinere slaapkamer.

Badkamer: de badkamer is een paar jaar geleden gemoderniseerd en voorzien van een inloopdouche met regendouche, wastafelmeubel en handdoekenradiator. De badkamer heeft tevens een raam voor daglicht en natuurlijke ventilatie. Deze etage voorziet tevens in een separaat toilet.

Slaapkamer 2e etage: ruime 3e slaapkamer met twee dakkapellen. In deze slaapkamer tevens extra bergruimte achter de knieschotten.

Overloop 2e etage: op de overloop is de opstelling van de c.v.-combiketel (Nefit 2012) en een bergkast.

Bijzonderheden:
– 3 (mogelijk 4) slaapkamers
– 2 dakkapellen
– Grote berging
– In de oude kern van Delfgauw
– 9 zonnepanelen

Oplevering: in overleg

Heb je vragen? Of wil je even binnenkijken?

Neem vrijblijvend contact met ons op

De Laen
Download de brochure

Bekijk op het gemak de brochure van deze woning

Downloaden

Kenmerken

Overdracht

  • Status Verkocht
  • Vraagprijs € 495.000,- Kosten koper
  • Aanvaarding In overleg

Bouwvorm & Onderhoud

  • Soort woonhuis Tussenwoning
  • Soort bouw Bestaande bouw
  • Bouwjaar 1972
  • Soort dak Zadeldak
  • Onderhoud binnen Goed
  • Onderhoud buiten Goed

Oppervlakten & inhoud

  • Gebruiksoppervlakte wonen ca. 116 m2
  • Gebouwgebonden buitenruimte
  • Externe bergruimte ca. 13m2
  • Overige inpandige ruimte
  • Inhoud ca. 390m3
  • Perceeloppervlakte ca. 140m2

Indeling

  • Aantal kamers 4 kamers
  • Aantal slaapkamers 3
  • Aantal badkamers 1 badkamer
  • Badkamervoorzieningen Douche, wastafel
  • Aantal woonlagen 3 woonlagen
  • Voorzieningen Rookkanaal, zonnepanelen, natuurlijke ventilatie

Energie & Installatie

  • Energielabel C
  • Isolatie Dubbel glas
  • Verwarming Cv ketel, houtkachel
  • Warm water Cv ketel
  • C.v.-ketel type Gas
  • C.v.-ketel bouwjaar 2012
  • Eigendom Eigendom

Tuin & Buitenruimte

  • Ligging Aan rustige weg, in woonwijk, beschutte ligging
  • Hoofdtuin Achtertuin
  • Oppervlakte hoofdtuin ca. 60m2
  • Ligging hoofdtuin Noordoost
  • Achterom 1
  • Kwaliteit tuin Normaal

Bergruimte

  • Schuur / berging Vrijstaand steen
  • Aantal schuren / bergingen 1
  • Voorzieningen

Parkeergelegenheid

  • Parkeerfaciliteiten Openbaar parkeren
  • Garage Geen garage

Wijk statistieken

Burgerlijke staat
  • Gehuwd
  • Ongehuwd
  • Gescheiden
  • Verweduwd
Leeftijd in gemeente
0 - 15 jaar
15 - 25 jaar
25-45 jaar
45 - 65 jaar
65+ jaar
  • 0 - 15 jaar
  • 15 - 25 jaar
  • 25 - 45 jaar
  • 45 - 65 jaar
  • 65+ jaar
Gezinnen met kinderen
Met kinderen
Zonder kinderen
Alleenstaand
  • Met kinderen
  • Zonder kinderen
  • Alleenstaand
Leeftijd buurtbewoners
0 - 15 jaar
15 - 25 jaar
25-45 jaar
45 - 65 jaar
65+ jaar
  • 0 - 15 jaar
  • 15 - 25 jaar
  • 25 - 45 jaar
  • 45 - 65 jaar
  • 65+ jaar
Bewoners in de straat
Man
Vrouw
  • Man
  • Vrouw

In de buurt

    Documenten

      Je nieuwe huis vinden we samen

      Neem vrijblijvend contact met ons op

      De Laen