Omschrijving

Instapklaar te betrekken tussenwoning met een grote WAUW factor.

Op het oude “Veilingterrein” op loopafstand van het gezellige centrum, ligt deze goed onderhouden en recent volledig gemoderniseerde 5-kamer woning met leuk aangelegde tuin. Dichtbij de Randstad Rail, scholen en voorzieningen, maar wel heel rustig aan een verkeersluwe, doodlopend straatje met uitsluitend bestemmingsverkeer.

Hal: Ruime hal met meterkast…

Lees meer

Kenmerken

  • Status Verkocht
  • Vraagprijs € 495.000,- kosten koper
  • Woonoppervlakte ca. 104 m2
  • Aantal slaapkamers 4
  • Bouwjaar 1985
Meer kenmerken
Heb je vragen? Of wil je even binnenkijken?

Neem vrijblijvend contact met ons op

De Laen
Download de brochure

Bekijk op het gemak de brochure van deze woning

Downloaden

Omschrijving

Instapklaar te betrekken tussenwoning met een grote WAUW factor.

Op het oude “Veilingterrein” op loopafstand van het gezellige centrum, ligt deze goed onderhouden en recent volledig gemoderniseerde 5-kamer woning met leuk aangelegde tuin. Dichtbij de Randstad Rail, scholen en voorzieningen, maar wel heel rustig aan een verkeersluwe, doodlopend straatje met uitsluitend bestemmingsverkeer.

Hal: Ruime hal met meterkast (uitgebreid naar 8 groepen). en modern toilet met wandcloset en wasbakje.

Woonkamer: Tuingerichte woonkamer met een gezellige open haard, mooie vloerafwerking, nieuwe binnendeur en veel lichtinval door de grote schuifpui over de gehele breedte.

Keuken: Open aan de voorzijde gerealiseerde keuken met een U-vormige inrichting, in 2022 vernieuwd met een moderne en stoere uitstraling, mooi aanrechtblad en voorzien van diverse inbouwapparatuur.

Tuin: De tuin is leuk aangelegd, onderhoudsarm en aan achterzijde staat een vrijstaande stenen berging en achterom. De tuin ligt op het Oosten. Dat houdt in dat er zomers tot een uur of 17.00 van de zon kan worden genoten, waarna je in de voortuin nog lekker van het zonnetje kunt genieten.

1e Verdieping:

Slaapkamers: 2 Ruime achterslaapkamers en een 3e kleine, maar ook volwaardige slaapkamer, waarbij aan de achterzijde een brede dakkapel is gerealiseerd. Deze etage is voorzien van laminaatvloer met uitzondering van 1 slaapkamer, hier ligt luxe vloerbedekking.
Badkamer: Aan voorzijde gerealiseerd, gemoderniseerd en uitgevoerd met een inloopdouche en wastafelmeubel. Ook fijn is het raampje in de badkamer voor lichtinval en ventilatie/ontluchting.

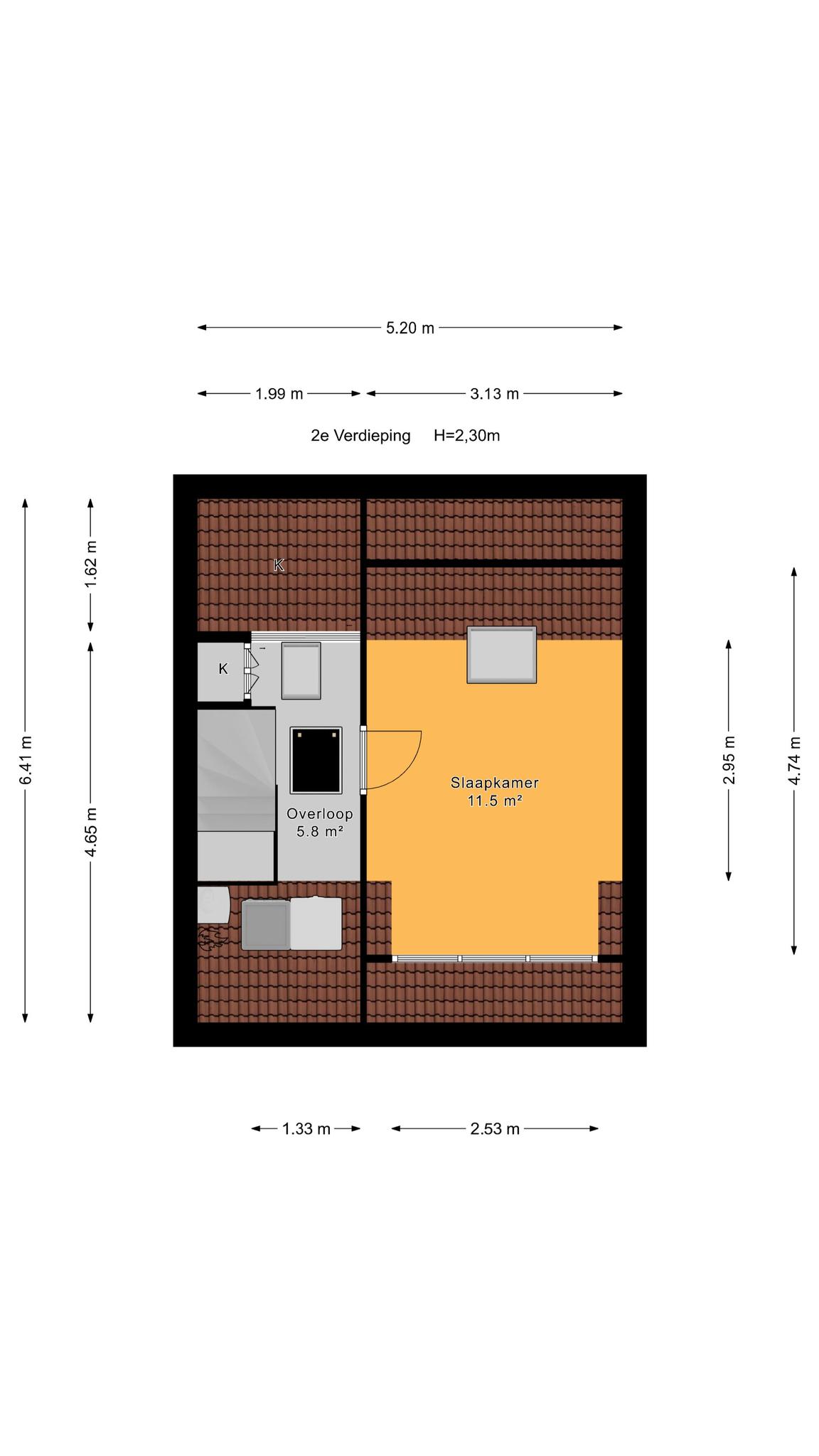
2e Verdieping:

Overloop: Lichte overloop met een Velux dakvenster, bergruimte en opstelplaats voor de wasapparatuur, c.v.-combiketel uit 2019 en vernieuwde unit voor de mechanische ventilatie.
Slaapkamer: 4e leuk afgewerkte, ruime slaapkamer met dakkapel die beschikt over een elektrisch rolluik (2024) met afstandsbediening en 2 extra Velux dakramen.

Bijzonderheden:
– Centrale ligging, dicht bij centrum
– Autoluwe straat, doodlopend
– 2 Dakkapellen
– Na-isolatie vloer 2020
– Sfeervol huis met mooie accenten, zeer goed onderhouden

Oplevering: in overleg

Heb je vragen? Of wil je even binnenkijken?

Neem vrijblijvend contact met ons op

De Laen
Download de brochure

Bekijk op het gemak de brochure van deze woning

Downloaden

Kenmerken

Overdracht

  • Status Verkocht
  • Vraagprijs € 495.000,- Kosten koper
  • Aanvaarding In overleg

Bouwvorm & Onderhoud

  • Soort woonhuis Tussenwoning
  • Soort bouw Bestaande bouw
  • Bouwjaar 1985
  • Soort dak Zadeldak
  • Onderhoud binnen Goed
  • Onderhoud buiten Goed

Oppervlakten & inhoud

  • Gebruiksoppervlakte wonen ca. 104 m2
  • Gebouwgebonden buitenruimte
  • Externe bergruimte ca. 5m2
  • Overige inpandige ruimte
  • Inhoud ca. 365m3
  • Perceeloppervlakte ca. 109m2

Indeling

  • Aantal kamers 5 kamers
  • Aantal slaapkamers 4
  • Aantal badkamers 1 badkamer
  • Badkamervoorzieningen Wastafelmeubel, inloopdouche
  • Aantal woonlagen 3 woonlagen
  • Voorzieningen Mechanische ventilatie, rolluiken, schuifpui, dakraam, natuurlijke ventilatie

Energie & Installatie

  • Energielabel C
  • Isolatie Dakisolatie, vloerisolatie, dubbel glas
  • Verwarming Cv ketel, open haard
  • Warm water Cv ketel
  • C.v.-ketel type Gas
  • C.v.-ketel bouwjaar 2019
  • Eigendom Eigendom

Tuin & Buitenruimte

  • Ligging Aan rustige weg, in woonwijk, beschutte ligging
  • Hoofdtuin Achtertuin
  • Oppervlakte hoofdtuin ca. 45m2
  • Ligging hoofdtuin Oost
  • Achterom 1
  • Kwaliteit tuin Fraai aangelegd

Bergruimte

  • Schuur / berging Vrijstaand steen
  • Aantal schuren / bergingen 1
  • Voorzieningen

Parkeergelegenheid

  • Parkeerfaciliteiten Openbaar parkeren
  • Garage Geen garage

Wijk statistieken

Burgerlijke staat
  • Gehuwd
  • Ongehuwd
  • Gescheiden
  • Verweduwd
Leeftijd in gemeente
0 - 15 jaar
15 - 25 jaar
25-45 jaar
45 - 65 jaar
65+ jaar
  • 0 - 15 jaar
  • 15 - 25 jaar
  • 25 - 45 jaar
  • 45 - 65 jaar
  • 65+ jaar
Gezinnen met kinderen
Met kinderen
Zonder kinderen
Alleenstaand
  • Met kinderen
  • Zonder kinderen
  • Alleenstaand
Leeftijd buurtbewoners
0 - 15 jaar
15 - 25 jaar
25-45 jaar
45 - 65 jaar
65+ jaar
  • 0 - 15 jaar
  • 15 - 25 jaar
  • 25 - 45 jaar
  • 45 - 65 jaar
  • 65+ jaar
Bewoners in de straat
Man
Vrouw
  • Man
  • Vrouw

In de buurt

    Documenten

      Je nieuwe huis vinden we samen

      Neem vrijblijvend contact met ons op

      De Laen